查看完整案例

收藏

下载
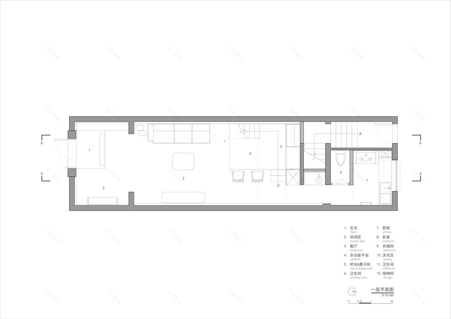
新增楼梯没有选择直达地面,而是落在多功能平台上,并引导动线转换到平台旁的木台阶到达一层。平台的面积足以满足坐卧、冥想、阅读等活动;750mm的高度也能兼顾桌面的功能。结合定制木家具系统,平台上方更整合了吧台、展示、收纳功能,并在下方留出大量储物空间。新增楼梯上半部被吊柜包裹,下半部轻盈的悬挑钢板则展露在外。同时,吊柜内藏暖通设备,创造了无需吊顶的条件,使建筑的百年木梁和楼板得以重见天日。
位于厨房上方的亭子间成为储藏室,通过爬梯连接,同时原有入口被保留以便搬运重物。至此,套内独立动线连接所有空间的目标得以实现。
二层顺应楼梯位置划分出卧室和衣帽间。衣帽间的木家具系统整合了化妆桌、衣柜、洗衣等设备。卫浴空间被隐藏在衣帽间的柜门后。原阳光房与客厅之间的玻璃门被拆除,使空间更完整,自然光得以进入首层深处。该区域利用材质与高差重新划分出玄关和阅读区。
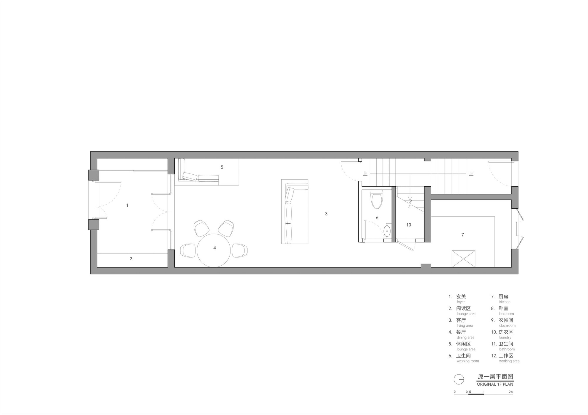
首层火烧面大理石地板为空间增加了自然凹凸肌理的质感,其中的贝壳化石与顶面的百年木构产生了时间的对话。哑光处理的同种石材出现在过道和厨房,呈现出不同质感。定制木家具系统使用了匹配原木梁色调的擦色海洋板。自然的质感和肌理均被保留在各种材料的使用上。
建筑师: cold lab 可设计研究室
面积: 84.2501349m²
项目年份: 2023
摄影师:STUDIO FANG
厂家: Belle Stone, Calvin, NUO+JA, Tsay, Yishuo Lighting
设计团队: 区智维、赖建希、林鸿缔
施工方: 上海桃义建筑装饰设计工程有限公司
功能: 住宅建筑
委托方: N先生
照明顾问: 一硕照明
项目城市: 上海
项目国家: 中国
设计师:cold lab 可设计研究室
客服
消息
收藏
下载
最近


































