查看完整案例

收藏

下载
项目名称:土耳其Next Level混合使用建筑
位置:土耳其
设计公司:布里吉特·韦伯建筑师事务所
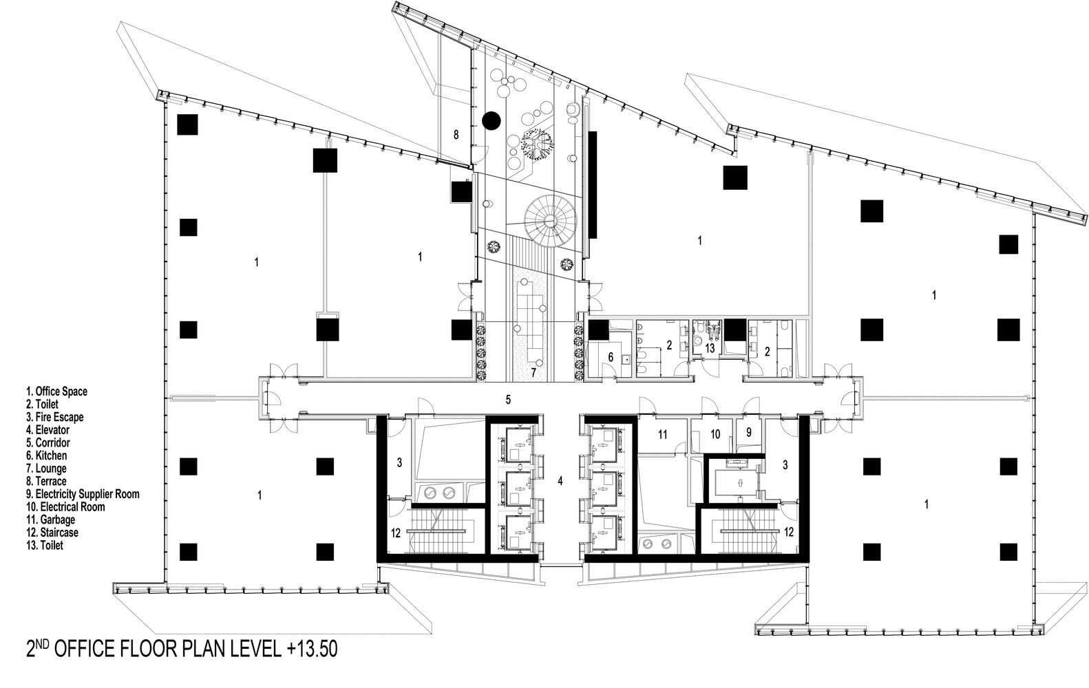
爱斯基摩-科尼亚公路的轴线改变了这一地区安卡拉成为这座城市发展最快最有价值的部分。这个主要交通干线上的南北和东西交汇点同时发展成为一个城市空间,不仅商业世界和社会生活在这个中心交汇,而且作为一个新的时尚居住区吸引着人们。下一层被设计成土耳其首都的第一个混合地产项目,包括办公室、住宅和购物中心。下一层的设计灵感来自其战略位置,并反映了该地区的蓬勃发展和积极的生活在总布局和建筑物的外观。凭借其当代和创新的建筑设计,下一级将有助于安卡拉的现代主义,活跃城市的城市生活。通过其标志性的结构和宏伟的整体形式,办公楼反映了下一个层次的经济潜力,其30层位于购物中心的顶部。下一层办公大楼最与众不同的特征之一是其创造性构思的所有楼层的公共区域,提供日常便利。所有楼层的套房都设计成开放的等候区,并为日常需求提供解决方案。该功能还为办公室所有者提供了额外的工作空间。
另一方面,住宅塔楼通过精心设计的玻璃立面和独特的20层独立居住空间,反映了其设计中的人性化元素。由于其4米的天花板高度,落地玻璃面板和独特的露台,该空间允许其居民充分受益于日光。住宅楼的休息区还提供娱乐设施,如咖啡馆/酒吧、图书馆和露台。这两座塔楼被设计成一个不受周围世界影响的社交场所,坐落在一个具有吸引人的露天概念的平台之上。由150家商店组成的购物中心位于该建筑群的这一部分,同时也是一个公共花园。这个区域还包括一个2.500平方米的电影院,与透明的装饰池和由走道隔开的绿色区域对齐。透明的装饰水池构成了下一层的中心,通过水折射的日光反射照亮购物中心,为游客提供了宁静的氛围。公共和私人生活被封闭在一个7.500平方米的景观区域内,共同转变为一个提供文化、娱乐、商业和社交机会的城市区域。下一级建筑区别于其他项目,所有这些独特的功能,将增加活力和新颖性安卡拉社交生活。
土耳其Next Level混合使用建筑外部实景图
土耳其Next Level混合使用建筑外部实景图
土耳其Next Level混合使用建筑外部实景图
土耳其Next Level混合使用建筑外部实景图
土耳其Next Level混合使用建筑外部实景图
土耳其Next Level混合使用建筑外部实景图
土耳其Next Level混合使用建筑外部实景图
土耳其Next Level混合使用建筑外部实景图
土耳其Next Level混合使用建筑外部实景图
土耳其Next Level混合使用建筑外部实景图
土耳其Next Level混合使用建筑外部实景图
土耳其Next Level混合使用建筑外部实景图
土耳其Next Level混合使用建筑外部实景图
土耳其Next Level混合使用建筑外部实景图
土耳其Next Level混合使用建筑外部实景图
土耳其Next Level混合使用建筑外部实景图
土耳其Next Level混合使用建筑外部实景图
土耳其Next Level混合使用建筑外部实景图
土耳其Next Level混合使用建筑外部实景图
土耳其Next Level混合使用建筑外部实景图
土耳其Next Level混合使用建筑外部实景图
土耳其Next Level混合使用建筑外部实景图
土耳其Next Level混合使用建筑外部实景图
土耳其Next Level混合使用建筑外部实景图
土耳其Next Level混合使用建筑外部实景图
土耳其Next Level混合使用建筑内部实景图
土耳其Next Level混合使用建筑内部实景图
土耳其Next Level混合使用建筑内部实景图
土耳其Next Level混合使用建筑内部实景图
土耳其Next Level混合使用建筑内部实景图
土耳其Next Level混合使用建筑内部实景图
土耳其Next Level混合使用建筑内部实景图
土耳其Next Level混合使用建筑内部实景图
土耳其Next Level混合使用建筑内部实景图
土耳其Next Level混合使用建筑内部实景图
土耳其Next Level混合使用建筑内部实景图
土耳其Next Level混合使用建筑内部实景图
土耳其Next Level混合使用建筑内部实景图
土耳其Next Level混合使用建筑内部实景图
土耳其Next Level混合使用建筑内部实景图
土耳其Next Level混合使用建筑内部实景图
土耳其Next Level混合使用建筑内部实景图
土耳其Next Level混合使用建筑内部实景图
土耳其Next Level混合使用建筑内部实景图
土耳其Next Level混合使用建筑内部实景图
土耳其Next Level混合使用建筑内部实景图
土耳其Next Level混合使用建筑内部实景图
土耳其Next Level混合使用建筑内部实景图
土耳其Next Level混合使用建筑内部实景图
土耳其Next Level混合使用建筑内部实景图
土耳其Next Level混合使用建筑内部实景图
土耳其Next Level混合使用建筑内部实景图
土耳其Next Level混合使用建筑内部实景图
土耳其Next Level混合使用建筑内部实景图
土耳其Next Level混合使用建筑内部实景图
土耳其Next Level混合使用建筑内部实景图
土耳其Next Level混合使用建筑平面图
土耳其Next Level混合使用建筑平面图
土耳其Next Level混合使用建筑平面图
土耳其Next Level混合使用建筑平面图
土耳其Next Level混合使用建筑剖面图
客服
消息
收藏
下载
最近
































































