查看完整案例

收藏

下载
项目名称:美国Deep Ellum多功能混合建筑
位置:美国
设计公司: 5G工作室协作
位于文化丰富的Deep Ellum区,Stack是一个混合使用的建筑,它改变了工作环境,为居住者提供了福祉,并包含了该地区的文化历史。该设计激活了商业街上的一个主要场所,由上下两个体量定义,通过将砖石包层的基座并置在金属包层的办公楼下,转化为讲台上的一个盒子。该建筑由面向街景的店面、停车库和上层的办公空间组成。办公室通过与外界的联系和便利设施空间的多功能性被激活。便利设施层为休息室空间、会议区、室外露台和健身提供便利,可欣赏市中心的迷人景色达拉斯。通过在周边安装玻璃卷帘门,直接通往外部的通道使建筑对可开放区域的要求增加了两倍。仓库砖的丰富纹理包含了该地区工业建筑的历史。设计故意为特里斯坦·伊顿的壁画留出一大片空白,以此向当地哈莱姆文艺复兴艺术家阿隆·道格拉斯、歌手艾瑞卡·巴度和达拉斯第一位黑人建筑师,威廉·西德尼。堆栈结合了当代的工作环境,优先考虑健康和保健与商业,停车解决方案,以及丰富的文化和历史的深埃勒姆。该项目的多功能性和精细化为该地区未来的发展提供了一个创新模式。
美国Deep Ellum多功能混合建筑外部实景图
美国Deep Ellum多功能混合建筑外部实景图
美国Deep Ellum多功能混合建筑内部实景图
美国Deep Ellum多功能混合建筑内部实景图
美国Deep Ellum多功能混合建筑内部实景图
美国Deep Ellum多功能混合建筑内部实景图
美国Deep Ellum多功能混合建筑内部实景图
美国Deep Ellum多功能混合建筑内部实景图
美国Deep Ellum多功能混合建筑内部实景图
美国Deep Ellum多功能混合建筑内部实景图
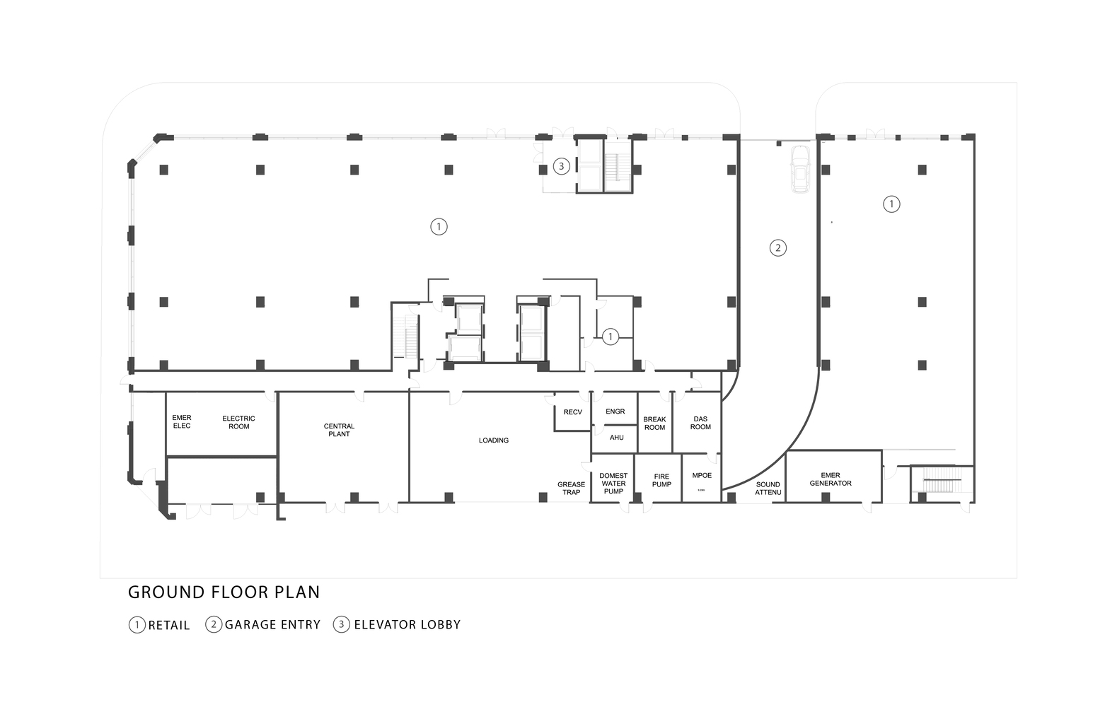
美国Deep Ellum多功能混合建筑平面图
美国Deep Ellum多功能混合建筑平面图
美国Deep Ellum多功能混合建筑平面图
客服
消息
收藏
下载
最近
















