查看完整案例

收藏

下载
项目名称:德国Eiswerk混合使用建筑
位置:德国
照片:诺姆·罗森塔尔/特洛克兰
2017年,GRAFT受托对位于柏林Mitte区Spree和Kö penicker Straß之间的前Eiswerk场地进行重新开发和改造。格拉夫特的建筑集中在以前的冷却室和住宅建筑以及位于施普雷的部分场地的重建上。今天上市的住宅和工业综合体建筑是由Norddeutsche Eiswerke AG(北德国制冰公司)从1909年开始建造的,作为人工冰的生产工厂。在这个地方生产的冰对于食品市场和烹饪来说是至关重要的柏林并促成了这座大都市的工业崛起。在家用和商用电冰箱出现后,冰的产量稳步下降,直到1995年该工厂最终关闭。该设计的核心理念是开放这个异质区域,并提供一个新的公共通道,从penicker Straß通往Spree河,所有新的和现有的建筑都沿着这条通道建造。盘尼克尔大街上的一个新的商业住宅区(Haus B)补充了复兴的建筑存量,该住宅区通过其分级入口,建立了一个通向场地的新通道。除了历史建筑存量中现有的25套公寓之外,这创造了31套新公寓和另外两个商业单元。
中央建筑,以前的冷却室,已经被掏空,翻新,并转化为一个共同工作空间提供商的办公室的商业场所,从而补充了新量的灵活办公单元。朝着狂欢的方向,新的商业建筑(Haus A)沿着河岸创造了一个独特的新地标。水平“切割”成四个偏移的体量,它们的高度来自对面列出的ice works建筑的比例,Haus A形成了ice works的当代对位,其棚屋般的立面占据了历史结构的两层秩序。由此产生的地板和露台创造了一种新的办公建筑,提供了有吸引力的工作环境。
向外开放的狂欢,前院连接各种入口和大堂,会议区,商店,餐厅,并进入文化设施的冰厂和所有建筑物的底层。与Eiswerk一起,GRAFT创建了一个异质的内城区,敏感地补充了具有当代复杂性的历史建筑存量,将旧ice works周围的区域变成了城市和狂欢之间的独特交叉点。
德国Eiswerk混合使用建筑外部实景图
德国Eiswerk混合使用建筑外部实景图
德国Eiswerk混合使用建筑外部实景图
德国Eiswerk混合使用建筑外部实景图
德国Eiswerk混合使用建筑外部实景图4
德国Eiswerk混合使用建筑外部实景图
德国Eiswerk混合使用建筑外部实景图
德国Eiswerk混合使用建筑外部实景图
德国Eiswerk混合使用建筑外部实景图
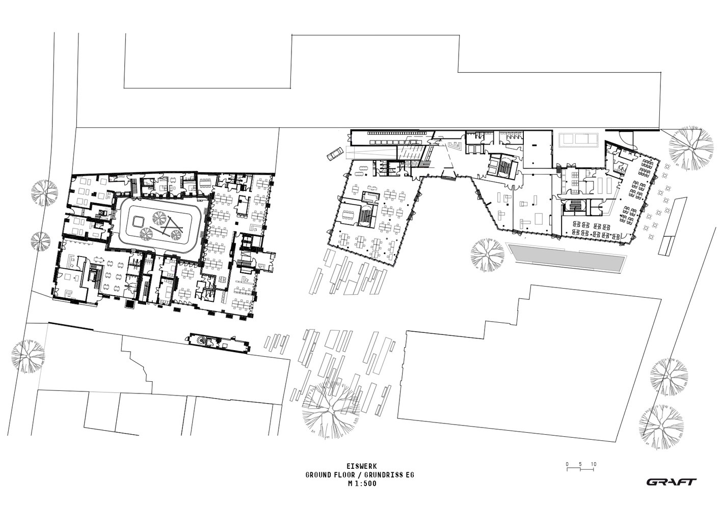
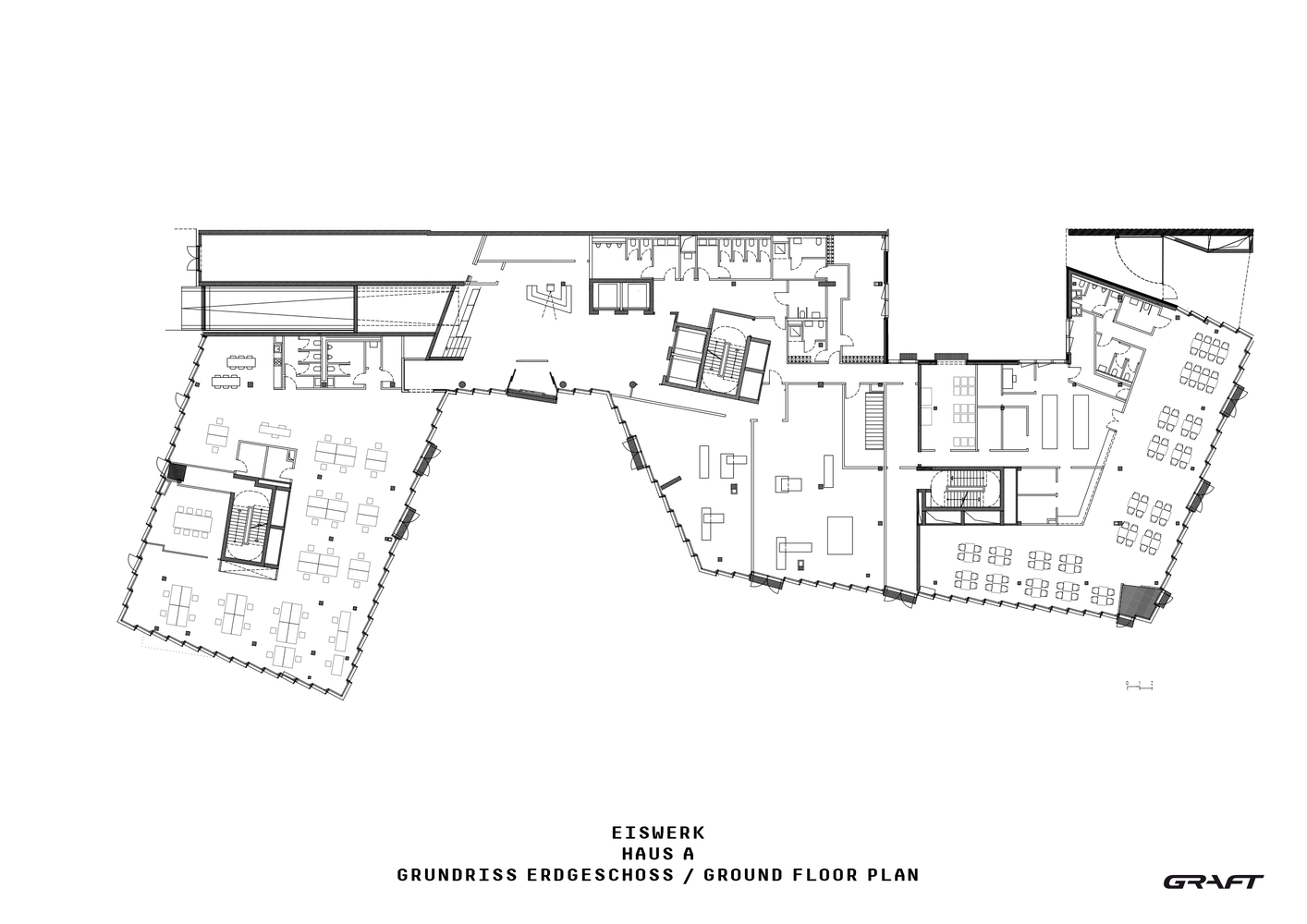
德国Eiswerk混合使用建筑平面图
德国Eiswerk混合使用建筑平面图
德国Eiswerk混合使用建筑平面图
德国Eiswerk混合使用建筑平面图
德国Eiswerk混合使用建筑平面图
德国Eiswerk混合使用建筑剖面图
德国Eiswerk混合使用建筑剖面图
客服
消息
收藏
下载
最近



















