查看完整案例

收藏

下载
项目名称:日本界·由布院温泉<br>位置:日本<br>设计公司:隈研吾建筑都市设计事务所
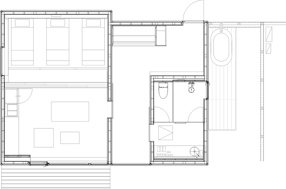
以人性化的街道景观而闻名的日本代表性温泉胜地——由布院温泉,直到昭和中期,这里都是广阔的田野与农户村庄。项目是一家以梯田景观为主要元素的日式客栈,旨在让旅客们切身体验到当地原始的乡村氛围。低矮的深檐坡屋顶建筑分布在梯田景观周围,主要建筑体量周边还规划了一系列木造的偏屋。低层建筑的北侧被橡树林环抱,南侧则可以远眺到清晨雾气弥漫的山谷,从建筑东侧的露天温泉还可看到美丽的玉夫山。深绿色的外墙与分散的建筑形式使建筑消隐在丰富的自然环境中。室内,建筑师参考了传统农舍建筑的空间组织,“たたき”(采用土制地面的前厅)、“板間”(铺设有木制地板的房间)和“座敷”(铺设有榻榻米的日式房间)。“たたき”风格的前厅大堂配置了炉灶风格的前台,“板間”部分采用了竹皮地板,“座敷”部分则被转化为环抱梯田的长廊空间,客人们可坐在七岛蔺草蒲团或坐椅上,饱览梯田景致。
日本界·由布院温泉外部实景图
日本界·由布院温泉外部实景图
日本界·由布院温泉外部实景图
日本界·由布院温泉外部实景图
日本界·由布院温泉外部实景图
日本界·由布院温泉外部实景图
日本界·由布院温泉外部实景图
日本界·由布院温泉外部实景图
日本界·由布院温泉外部实景图
日本界·由布院温泉外部实景图
日本界·由布院温泉外部实景图
日本界·由布院温泉外部实景图。
日本界·由布院温泉外部实景图
日本界·由布院温泉外部实景图
日本界·由布院温泉外部实景图。
日本界·由布院温泉外部实景图
日本界·由布院温泉外部实景图
日本界·由布院温泉外部实景图
日本界·由布院温泉外部实景图
日本界·由布院温泉外部实景图
日本界·由布院温泉外部实景图
日本界·由布院温泉外部实景图
日本界·由布院温泉外部实景图
日本界·由布院温泉外部实景图
日本界·由布院温泉外部实景图
日本界·由布院温泉外部实景图。
日本界·由布院温泉外部实景图
日本界·由布院温泉外部实景图
日本界·由布院温泉外部实景图
日本界·由布院温泉外部实景图
日本界·由布院温泉外部实景图
日本界·由布院温泉外部实景图
日本界·由布院温泉外部实景图
日本界·由布院温泉外部实景图
日本界·由布院温泉外部实景图
日本界·由布院温泉外部实景图
日本界·由布院温泉外部实景图
日本界·由布院温泉外部实景图
日本界·由布院温泉外部实景图
日本界·由布院温泉外部实景图
日本界·由布院温泉外部实景图
日本界·由布院温泉外部实景图
日本界·由布院温泉外部实景图
日本界·由布院温泉外部实景图
日本界·由布院温泉外部实景图
日本界·由布院温泉外部实景图
日本界·由布院温泉外部实景图
日本界·由布院温泉外部实景图
日本界·由布院温泉外部实景图
日本界·由布院温泉外部实景图
日本界·由布院温泉外部实景图
日本界·由布院温泉外部实景图
日本界·由布院温泉外部实景图
日本界·由布院温泉外部实景图。
日本界·由布院温泉外部实景图。
日本界·由布院温泉外部实景图
日本界·由布院温泉外部实景图
日本界·由布院温泉外部实景图
日本界·由布院温泉外部实景图
日本界·由布院温泉外部实景图
日本界·由布院温泉外部实景图
日本界·由布院温泉外部实景图
日本界·由布院温泉外部实景图
日本界·由布院温泉外部实景图
日本界·由布院温泉外部实景图
日本界·由布院温泉外部实景图
日本界·由布院温泉外部实景图
日本界·由布院温泉外部实景图
日本界·由布院温泉外部实景图
日本界·由布院温泉外部实景图
日本界·由布院温泉外部实景图
日本界·由布院温泉外部实景图
日本界·由布院温泉外部实景图
日本界·由布院温泉外部实景图”。
日本界·由布院温泉外部实景图
日本界·由布院温泉外部实景图
日本界·由布院温泉外部实景图
日本界·由布院温泉外部实景图
日本界·由布院温泉外部实景图
日本界·由布院温泉外部实景图
日本界·由布院温泉外部实景图
日本界·由布院温泉外部实景图
日本界·由布院温泉外部实景图
日本界·由布院温泉外部实景图
日本界·由布院温泉外部实景图
日本界·由布院温泉外部实景图
日本界·由布院温泉外部实景图
日本界·由布院温泉外部实景图
日本界·由布院温泉外部实景图
日本界·由布院温泉外部实景图
日本界·由布院温泉外部实景图
日本界·由布院温泉外部实景图
日本界·由布院温泉外部实景图
日本界·由布院温泉外部实景图
日本界·由布院温泉内部实景图
日本界·由布院温泉内部实景图
日本界 · 由布院温泉内部实景图
日本界·由布院温泉内部实景图
日本界·由布院温泉内部实景图
日本界·由布院温泉内部实景图
日本界·由布院温泉内部实景图
日本界·由布院温泉内部实景图
日本界·由布院温泉内部实景图
日本界·由布院温泉内部实景图
日本界·由布院温泉内部实景图
日本界·由布院温泉内部实景图
日本界·由布院温泉内部实景图
日本界·由布院温泉内部实景图
日本界·由布院温泉内部实景图
日本界·由布院温泉内部实景图
日本界·由布院温泉内部实景图
日本界·由布院温泉内部实景图
日本界·由布院温泉内部实景图
日本界·由布院温泉内部实景图
日本界·由布院温泉内部实景图
日本界·由布院温泉内部实景图
日本界·由布院温泉内部实景图
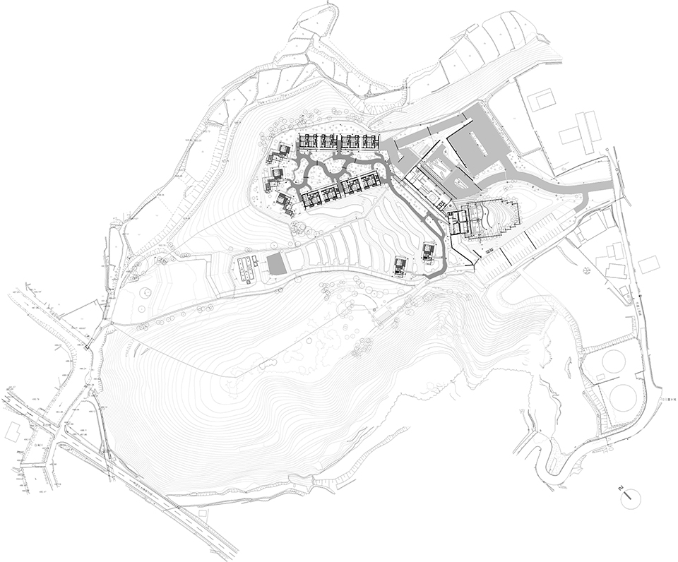
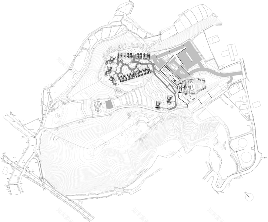
日本界·由布院温泉平面图
日本界·由布院温泉平面图
日本界·由布院温泉平面图
日本界·由布院温泉平面图
日本界·由布院温泉平面图
日本界·由布院温泉平面图
客服
消息
收藏
下载
最近






























































































































