查看完整案例

收藏

下载
项目名称:法国CIRM混合用途建筑
位置:法国
设计公司:AWA Architectes
该项目必须满足几个限制条件:翻新和部分提升“l'annexe”的现有住宿设施以增加酒店的容量,创建一座将“l'annexe”与Bastide连接起来的建筑物,设计一个包含一个会议室、一个工作室和三个办公室的培训中心,并在被占用的场地进行这些工作,更准确地说是继续使用睡眠场所。建筑工地必须围绕这个问题进行管理和组织。 该项目的主要思想是在 CIRM 的两个实体之间建立联系:住宿大楼和 Bastide。该链接采用建筑桥梁的形式承载该站点的培训区域:会议室、工作室和办公室。地中海盆地周围空间的使用传统上基于内部和外部之间的密切关系。 因此,我们将这座桥梁建筑视为一个大型外部走廊,同时服务于有盖的露台和内部空间:工作室、办公室和会议室,这是该项目的关键空间之一,因为它确实是介绍了研究人员的工作结果。 内部/外部边界可以通过滑动聚碳酸酯面板在会议室和办公室之间的有盖露台的水平上进行调节,从而调节所选的保密程度。
这种建筑联系的创建使得通过引入城市和乡土的连贯性来发展这个地方的使用成为可能。这种演变的象征性形象是在桥梁建筑、现有图书馆和CIRM餐厅(该项目也由AWA-P3G执行)之间的交界处创建了一个“乡村广场”。房屋“附件”的标高采用混凝土设计。该项目在底层有一个混凝土核心,以支持桥梁建筑。另一方面,桥梁建设使用三个系统。对于西立面和位于底层混凝土核心垂直连续性的工作室,我们倾向于使用混凝土面纱来稳定整体。对于会议室,选择了一个木框架来减轻甲板上的压缩载荷。人行道是用金属设计的。选择使用完全可见的 WARREN 梁结构,从而有助于作品的阅读。外墙由穿孔的耐候板制成,起到通风和视觉渗透的作用,传统上存在于地中海周围。
法国CIRM混合用途建筑外部实景图
法国CIRM混合用途建筑外部实景图
法国CIRM混合用途建筑外部实景图
法国CIRM混合用途建筑外部实景图
法国CIRM混合用途建筑外部实景图
法国CIRM混合用途建筑外部实景图
法国CIRM混合用途建筑外部实景图
法国CIRM混合用途建筑内部实景图
法国CIRM混合用途建筑内部实景图
法国CIRM混合用途建筑内部实景图
法国CIRM混合用途建筑内部实景图
法国CIRM混合用途建筑内部实景图
法国CIRM混合用途建筑内部实景图
法国CIRM混合用途建筑内部实景图
法国CIRM混合用途建筑内部实景图
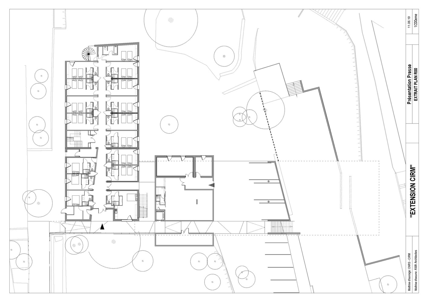
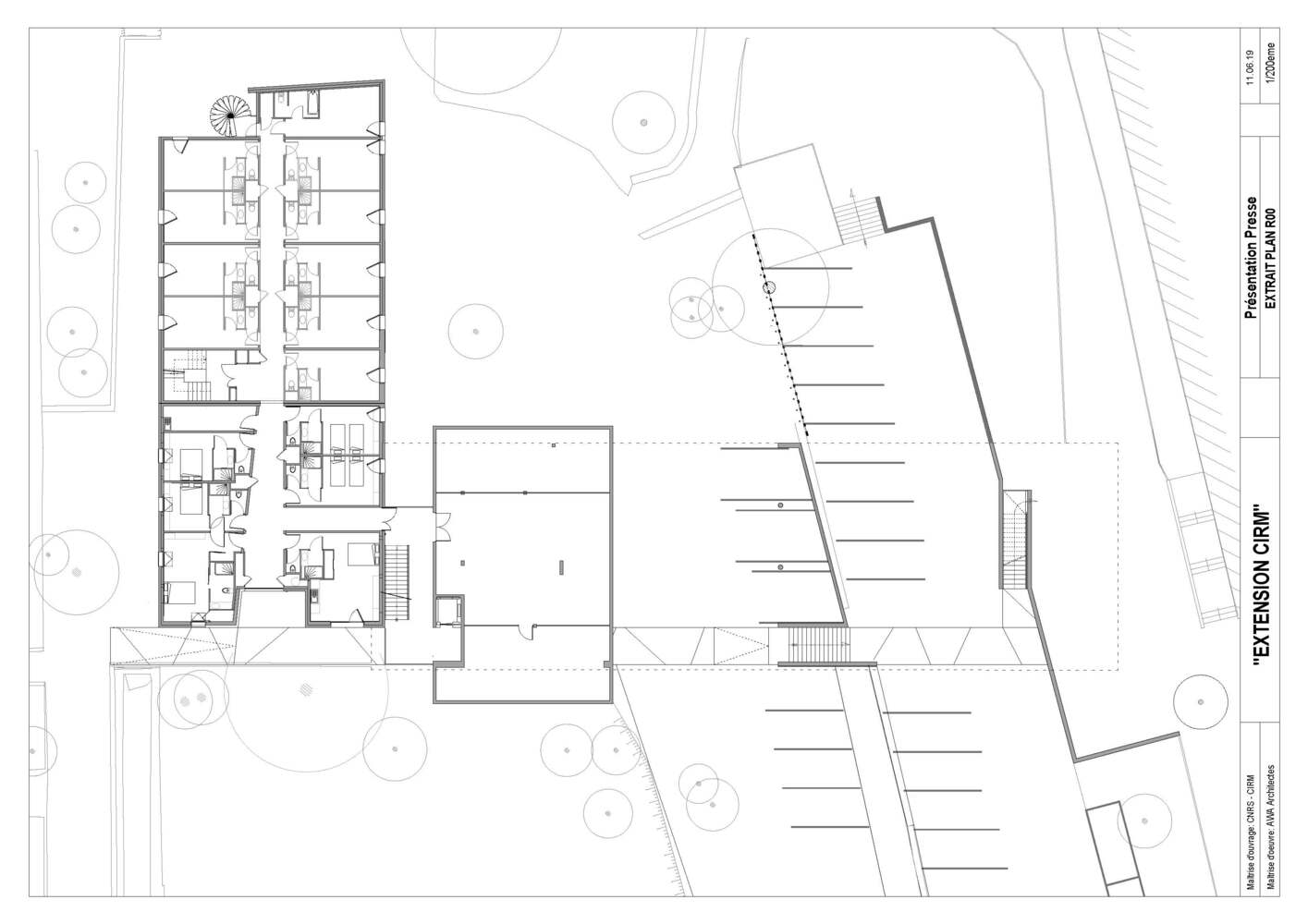
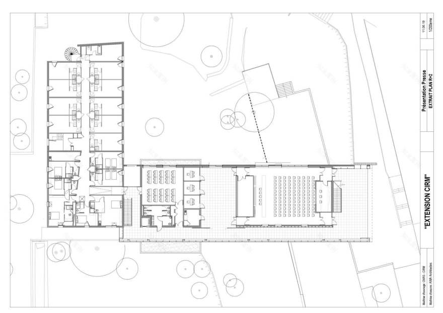
法国CIRM混合用途建筑平面图
法国CIRM混合用途建筑平面图
法国CIRM混合用途建筑平面图
法国CIRM混合用途建筑平面图
法国CIRM混合用途建筑剖面图
法国CIRM混合用途建筑立面图
法国CIRM混合用途建筑立面图
法国CIRM混合用途建筑立面图
客服
消息
收藏
下载
最近


























