查看完整案例

收藏

下载
项目名称:捷克Bořislavka商业中心
位置:捷克
设计公司:Aulík Fišer architekti
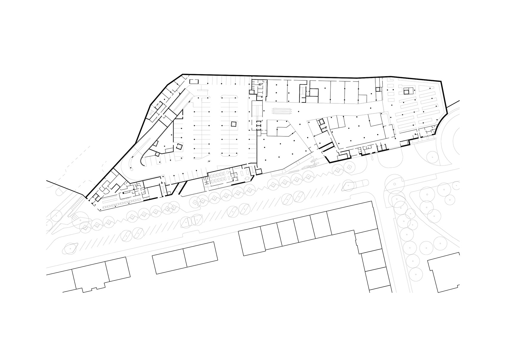
该建筑位于一座地铁站的正上方,并且紧挨着城市的主要放射状道路之一Evropská,后者连接了市中心和机场。项目场地有着7-14米不等的高差,周围分布着多种类型的建筑,包括家庭别墅区、中层公寓楼和更远一些的社会住房。2012年,在意识到该地块的重要性和复杂性之后, KKCG REG公司发起了国际建筑研讨会,旨在为场地开发寻找合适的方案。研讨会提出的主要挑战是如何合理利用大面积的闲置空地——它靠近电车和地铁站,并且在布拉格的城市全景中占据着显眼的位置,拥有朝向布拉格城堡的视野。该项目最终提出的任务是顺应现有地形,在地下层(Kladenská街道层)建造一个小型的当地购物中心(约9000平方米),然后以该平台为基础,在上方建造数个(至少3个)独立的体量,以提供充足的办公空间(约26000平方米)。
设计的范围不仅限于单座建筑的外观和楼层布局的合理性,建筑周围以及建筑之间的空间也得到了同样的重视。四个水晶般的透明体量矗立在一个低矮的双层基座上,后者是为了解决附近街道的高差问题。狭窄的巷道和小型的开放空间穿插在这些“晶体”之间,使人联想到常见于高密度历史城区中心的公共空间。设计中还引入了一个小型露天广场“piazzetta”,其所在的位置原先也是一座类似的历史广场。piazzetta为整个建筑群和地铁站的入口区域提供了无障碍的入口通道。由Federico Díaz创作的雕塑强调了场所背后的价值。建筑内外空间的连通程度堪比蚁穴,为使用者提供了尽可能广阔的行走和活动范围。坚实的双层基座和较为传统的形式表达有助于将建筑与Kladenská街道沿线的城市环境结合起来。
在街道层,以浅色石材包覆的实体墙中间穿插着大型的展示窗口。玻璃幕墙中较为规则和垂直的部分采用了预制的模块化立面,而更加复杂、多角度和立体的部分则采用了杆状系统立面。项目在开发过程中制作了全尺寸的3D打印模型,用以测试最为复杂的结构单元。建筑围护结构的一个特殊部分是延伸于1号和2号楼之间的玻璃天花板,其立体的钢制承重结构包含一个服务性的腔体,用以在钢制型材底部的凸缘进行外围布线。建筑的大多数公共空间均享有充足的日光,并且充分地屏蔽了来自Evropská道路的噪音。每个建筑单体被独立“镶嵌”在阶梯式的绿色花园中,其入口大厅和庭院都种满了葱郁的绿植,还有爬山虎在建筑各处生长。项目中还包含一个专门设计的实验性室内绿化带:与传统的室内绿墙不同,这是一个用粗削的木桩搭建而成的大型立体结构,直立的造型可供生物附着其上。
与之相呼应的是场地东侧的开放式绿色公园,起到了平衡建筑面积与绿色空间的作用。从项目初始,Bořislavka中心的建筑师团队便构想了几个独特的艺术干预方案,作为整体设计概念的一部分。建筑在未来将至少包含两个阶段的艺术品展示,第一组艺术品在建筑完工时安装在预订的位置,例如广场、主入口前方和特定的室内区域。第二组艺术干预方案已被委派给不同艺术家,新的作品将安装在公共开放空间,并且与第一组中的作品一起被挑选和布局以回应既有的空间关系。如今的办公室空间总是充斥着整齐划一的产品。为了提高日常使用的舒适性,设计团队选择了个性化的定制工艺品解决方案,让个性和统一的元素在坚实、自然而稳定的结构中共同发挥作用。原材料的色彩和肌理以及天然的建筑材料也成为了室内设计的重要工具。凭借雨水管理方案、宽阔的绿色屋顶以及建筑能源管理系统(包括电梯能源回收和热转换等),该项目已获得LEED金级认证。
捷克Bořislavka商业中心外部实景图
捷克Bořislavka商业中心外部实景图
捷克Bořislavka商业中心外部实景图
捷克Bořislavka商业中心外部实景图
捷克Bořislavka商业中心外部实景图
捷克Bořislavka商业中心外部实景图
捷克Bořislavka商业中心外部实景图
捷克Bořislavka商业中心外部实景图
捷克Bořislavka商业中心外部实景图
捷克Bořislavka商业中心外部实景图
捷克Bořislavka商业中心外部实景图
捷克Bořislavka商业中心外部实景图
捷克Bořislavka商业中心外部实景图
捷克Bořislavka商业中心外部实景图
捷克Bořislavka商业中心外部实景图
捷克Bořislavka商业中心外部实景图
捷克Bořislavka商业中心外部实景图
捷克Bořislavka商业中心外部实景图
捷克Bořislavka商业中心外部实景图
捷克Bořislavka商业中心外部实景图
捷克Bořislavka商业中心内部实景图
捷克Bořislavka商业中心内部实景图
捷克Bořislavka商业中心内部实景图
捷克Bořislavka商业中心内部实景图
捷克Bořislavka商业中心内部实景图
捷克Bořislavka商业中心内部实景图
捷克Bořislavka商业中心内部实景图
捷克Bořislavka商业中心内部实景图
捷克Bořislavka商业中心内部实景图
捷克Bořislavka商业中心内部实景图
捷克Bořislavka商业中心内部实景图
捷克Bořislavka商业中心内部实景图
捷克Bořislavka商业中心内部实景图
捷克Bořislavka商业中心内部实景图
捷克Bořislavka商业中心内部实景图
捷克Bořislavka商业中心内部实景图
捷克Bořislavka商业中心内部实景图
捷克Bořislavka商业中心内部实景图
捷克Bořislavka商业中心内部实景图
捷克Bořislavka商业中心内部实景图
捷克Bořislavka商业中心内部实景图
捷克Bořislavka商业中心内部实景图
捷克Bořislavka商业中心内部实景图
捷克Bořislavka商业中心内部实景图
捷克Bořislavka商业中心内部实景图
捷克Bořislavka商业中心内部实景图
捷克Bořislavka商业中心内部实景图
捷克Bořislavka商业中心内部实景图
捷克Bořislavka商业中心内部实景图
捷克Bořislavka商业中心内部实景图
捷克Bořislavka商业中心内部实景图
捷克Bořislavka商业中心内部实景图
捷克Bořislavka商业中心内部实景图
捷克Bořislavka商业中心内部实景图
捷克Bořislavka商业中心内部实景图
捷克Bořislavka商业中心内部实景图
捷克Bořislavka商业中心内部实景图
捷克Bořislavka商业中心内部实景图
捷克Bořislavka商业中心内部实景图
捷克Bořislavka商业中心内部实景图
捷克Bořislavka商业中心内部实景图
捷克Bořislavka商业中心内部实景图
捷克Bořislavka商业中心平面图
捷克Bořislavka商业中心平面图
捷克Bořislavka商业中心平面图
捷克Bořislavka商业中心平面图
捷克Bořislavka商业中心剖面图
捷克Bořislavka商业中心剖面图
客服
消息
收藏
下载
最近







































































