查看完整案例

收藏

下载
项目名称:墨西哥锡那罗亚州的住宅区
位置:墨西哥
设计公司:Pedro Gaxiola Estudio+Hermann Tamayo Arquitectos
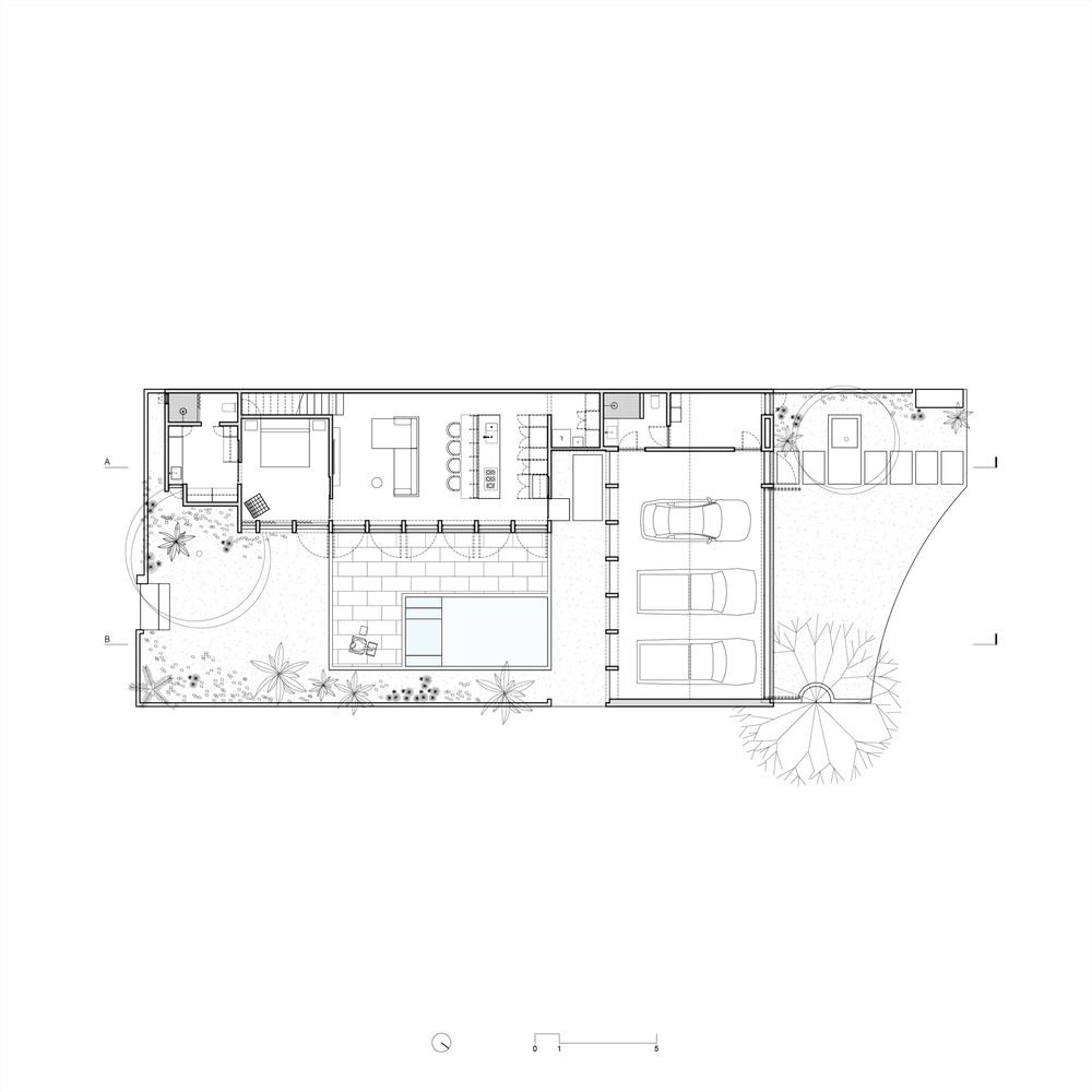
该项目位于锡那罗亚州库利亚坎的一个住宅区,面积为325平方米。它的北部和西部与其他建筑接壤,南部与道路相连,东部有一条林荫步道,是住宅区的一部分,有利于“L”形布局,寻求包含一个大花园,并将项目的视图朝向树木的绿色树冠。该程序分为两个块,每个块由一个矩形体表示,彼此独立。第一个街区以一个大型车库和一些服务空间欢迎游客,而第二个街区包含了一个房子的日常空间,有两个卧室,一个客厅,一个餐厅和一个厨房,都朝东,邀请用户不断与外界互动。作为体量所包含的大花园的一部分,有一个露台,它反过来容纳了一个游泳池,位于项目的中心,暴露在花园和广阔的天空中。混凝土和“gray san andrés”区域石板的材料性,以及其余元素的精选色调,营造出一种有点冷的现代氛围,当与花园的绿色、家具的温暖和自然光相结合时,为使用者营造出一个令人愉快和极度放松的空间。
墨西哥锡那罗亚州的住宅区外部实景图
墨西哥锡那罗亚州的住宅区外部实景图
墨西哥锡那罗亚州的住宅区外部实景图
墨西哥锡那罗亚州的住宅区内部实景图
墨西哥锡那罗亚州的住宅区内部实景图
墨西哥锡那罗亚州的住宅区平面图
墨西哥锡那罗亚州的住宅区平面图
墨西哥锡那罗亚州的住宅区剖面图
墨西哥锡那罗亚州的住宅区剖面图
客服
消息
收藏
下载
最近












