查看完整案例

收藏

下载
随着深圳的快速发展,城市人口迅速膨胀,2021年已达1756万人。同时学位缺口巨大,2020年小一学位全市缺口达4.95万个、初一达1.06万个。城市建设用地的高度集约化,也使得中小学校建设用地十分匮乏。学位缺口和学校建设用地匮乏之间产生尖锐的矛盾。
With the rapid development of Shenzhen, the urban population increased rapidly. It was up to 17.56 million in 2021. At the same time, there is a huge gap of places. The gap of places in Grade 1 of elementary schools in the whole city was 49,500 and that in the first year of junior high school was 10,600 in 2020. The highly intensive urban construction land has also led to a lack of land for the construction of elementary and secondary schools. There is a sharp contradiction between the gap of places and the lack of land for the construction of schools.
▼项目概览,Overall view © 山间影像Inter_mountain
目前深圳“原特区内”建设用地已多年“零增长”甚至“负增长”,宝安、龙岗、光明和坪山等“原特区外”建设用地规模也逐年下降。自2017年起至今,中小学校建设成为社会热点,比如“福田8+1新校园计划”等活动也都在探索上述矛盾之下校园设计新的突破和可能性,龙华区在这个方向上也在探索。
The construction land “in the original special zone” in Shenzhen had “zero growth” or even “negative growth” for many years, while the scale of construction land “outside the original special zone” in Bao’an, Longgang, Guangming, Pingshan, and other places became smaller and smaller year by year. Since 2017, the construction of elementary and secondary schools has become a hot topic in society. For example, in “Futian 8+1 New Campus Program” and other activities, new breakthroughs and possibilities in campus design under the above contradiction were explored. Longhua District is also exploring in this direction.
▼深圳常住人口和人口增长率变化/深圳学位缺口《中小学校建筑“微空间”设计研究——以深圳为例》,analysis diagram © 钟中 幸国涛
项目概况
Project overview
深圳市龙华区福城实验学校(原名“冼屋学校”)位于龙华区观澜办事处冼屋老村北部,北临悦兴路,东、南两侧为规划道路。本案北望狮径一组新村,南面现状为荒地,西面“冼屋大厦”是两栋高层住宅。基地呈矩形,用地范围北侧沿悦兴路有排洪渠,地形北低南高,高差约五米。
▼项目区位,site © Z&Z STUDIO
Fucheng Experimental School of Longhua District, Shenzhen (formerly known as “Xianwu School”) is located in the northern part of Xianwu Old Village, Guanlan Office, Longhua District. It has Yuexing Road to the north and planned roads to the east and south. To the north of this property is Shijing Group 1 New Village. To the south of it is a wasteland. To the west is the “Xianwu Building” consisting of two high-rise residential buildings. The base is rectangular. On the north side of the land, there is the flood discharge channel along Yuexing Road. The terrain is low in the north and high in the south. The height difference is about 5 meters.
▼项目俯瞰,Overlook of the campus © 山间影像Inter_mountain
▼南向鸟瞰,Southward bird’s-eye view © 山间影像Inter_mountain
▼夕阳下的校园,Campus under the sunset © 山间影像Inter_mountain
项目用地面积12192.46㎡,总建筑面积28694.93㎡,容积率1.956,覆盖率 24.40%。其中地上建筑面积17087.41㎡,地下建筑面积11607.52㎡,共设 81个地下停车位和 268个地面自行车位。
The project has a land area of 12,192.46㎡, a total building area of 28,694.93㎡, a plot ratio of 1.956, and a coverage rate of 24.40%. Among them, the above-ground building area is 17,087.41㎡and the underground building area is 11,607.52㎡. There are a total of 81 underground parking spaces and 268 above-ground bicycle parking spaces.
▼东南向透视,Southeastward perspective © 山间影像Inter_mountain
设计理念
Design concept
学校起缘、树下院子
Origin of the school, courtyard under the tree
我国古代有“孔子杏坛讲学”,聚徒授业于杏林。美国建筑大师路易·康也曾提到“学校起源于一个人坐在树下,与一群人讨论他的理解”。本设计引入“大树”和“院子”概念,强调层次丰富的四个院落空间及其围合感,营造有如“岳麓书院”般的传统“书院”气质。
▼学校起缘、树下院子,Origin of the school, courtyard under the tree © Z&Z STUDIO
▼孔子杏坛和岳麓书院,Confucius taught on the Apricot Altar and Yuelu Academy
In ancient times in China, “Confucius taught on the Apricot Altar” and gathered apprentices and taught them in the Apricot Forest. American architect Louis Kahn also mentioned that “schools originated from a person sitting under a tree and discussing about his understanding with a group of people”. In this design, the concepts of “big tree” and “courtyard” are introduced, four courtyard spaces with plentiful layers and their sense of enclosure are emphasized, and the traditional “academy” style similar to that of “Yuelu Academy” is created.
▼外院俯视,Overlook of the outer courtyard © 山间影像Inter_mountain
▼屋顶花园,Roof garden © 山间影像Inter_mountain
▼晴苑,Qingyuan © 山间影像Inter_mountain
▼中苑,Zhongyuan © 山间影像Inter_mountain
▼嘉苑,Jiayuan © 钟中
▼内院仰视,Look up from the inner courtyard © 山间影像Inter_mountain
未来学校、资源共享
Future school and resource sharing
本设计采用“未来学校”的“资源共享”布局模式,利用地形高差形成5.1米高平台,含有专业教室、合班教室、微格教室、图书馆等学术共享功能,形成小学与初中共享的”学术中心”;平台以上是以普教为主的“教学中心”,与“学术中心”上下对接;教职工宿舍高架于“教学中心”北侧,与食堂形成相对独立安静的“生活中心”。体育馆与多功能厅等组成的“文体中心”位于-5.1米标高半地下室,与地面功能垂直连接。四大中心既保持独立性,也实现紧密的“共享”关系。
▼轴测分析图,axo © Z&Z STUDIO
In this design, the layout model of “resource sharing” of “future school” is used. The height difference of the terrain is used to form a platform 5.1 meters high. It has academic sharing functions such as professional classrooms, combined-teaching classrooms, microteaching classrooms, and libraries, forming an “Academic Center” shared between elementary and secondary schools; above the platform is the “Teaching Center” mainly for general education, which is connected to the “Academic Center”; and the faculty dormitory is elevated on the north side of the “Teaching Center”, forming a relatively independent and quiet “living center” with the canteen. The “Cultural and Sports Center” consisting of a gymnasium, a multifunctional hall, and others is located in a semi-basement at an elevation of -5.1 meters and vertically connected to the functions on the ground. The 4 centers maintain independence and have a close “sharing” relationship.
▼教工宿舍,Faculty dormitory © 山间影像Inter_mountain
▼西北透视,Northwestward perspective © 山间影像Inter_mountain
▼东北透视,Northeastward perspective © 山间影像Inter_mountain
▼学生食堂,Student canteen © 山间影像Inter_mountain
▼图书馆大台阶,Big steps of the library © 山间影像Inter_mountain
组团教学,就近活动
Group teaching and activity in the neighborhood
项目为 27班九年一贯制学校,我们的平面排布以每年级3个班为一组团,每层容纳三个组团。其中初中组团位于南侧,小学组团结合部分专教围绕北部两个院落展开,其余专教沿北侧和东西侧呈“S”形布置穿行于三个组团,小学和初中可以就近使用。分散布局的大小活动平台便于课间就近活动而不必上下楼栋。
▼组团分析图,analysis © Z&Z STUDIO
The project is a nine-year system school with 27 classes. Our layout is as follows. A group consists of 3 classes in each grade. There are three groups on each floor. Among them, the junior high school group is located on the south side, while the elementary school group combined with some professional classrooms is in two courtyards in the north. The remaining professional classrooms are arranged in three groups in an “S” shape along the north, east, and west sides. Elementary and junior high school can use the nearby professional classrooms. On the scattered big and small activity platforms, students can carry out breaktime activities in the neighborhood without going upstairs and downstairs.
▼运动场,Sports field © 山间影像Inter_mountain
▼外廊的活动,Activities in the outer corridor © 钟中
▼架空层的活动,Activity of the open floor © 钟中
▼宽大的走廊,Wide corridor © 山间影像Inter_mountain
▼放学的少年,Teenagers after school © 钟中
文体开放、服务社区
Open cultural and sports space serves the community
体育馆、游泳馆、多功能厅、图书馆、德育展厅等功能,设置在-5.1米标高,形成集中独立的“文体中心”。其中体育设施位于东北侧,在北入口设置独立门厅,便于周末节假日对社区开放。而文化设施位于西南侧,便于与“教学中心”上下连接。
▼分析图,analysis © Z&Z STUDIO
The functions such as indoor stadium, swimming pool, multifunctional hall, library, and moral education exhibition hall are set at an elevation of -5.1 meters, forming a centralized and independent “Cultural and Sports Center”. Among them, the sports facilities are located on the northeast side. An independent entrance hall is set at the north entrance so that it is convenient to be open to the community on weekends and holidays. The cultural facilities are located on the southwest side, making it easy to connect to the “Teaching Center”.
▼大屋盖,Big roof © 山间影像Inter_mountain
▼树状柱,Tree-shaped column © 山间影像Inter_mountain
▼雨棚,Canopy © 山间影像Inter_mountain
▼遮阳,Sunshade © 山间影像Inter_mountain
院落开合、退台成趣
Courtyards are open and closed and steps are interesting
四个院落可分为“内院”与“外院”,内院服务于教学空间,营造丰富、活跃的环境,外院则直面公园绿地和运动场地、打通景观视线。结合院落布置的层层退台和楼梯,最大限度引入周边景观,给孩子提供充满乐趣的活动平台。
▼院落分析图,Courtyards analysis © Z&Z STUDIO
The 4 courtyards can be divided into “inner courtyard” and “outer courtyard”. The inner courtyard serves the teaching space, creating a rich and active environment. The outer courtyard faces the green space in the park and sports field, providing the line of sight of the landscape. Combined with the steps and stairs arranged in the courtyard, the surrounding landscape is introduced to the greatest extent, providing children with an interesting activity platform.
▼外院,Outer courtyard © 山间影像Inter_mountain
▼外院天桥,Overpass of the outer courtyard © 山间影像Inter_mountain
遮阳避雨,岭南风尚
Shelter from the sun and rain, Lingnan style
连通全校的架空层连接5.1米标高南入口广场,位于“学术中心”和“教学中心”上下之间,为师生提供适应南方湿热多雨气候的遮阳避雨场所。外廊布局、底层架空、大板挑檐、庭院围合恰当地回应了岭南气候;灰白主色调点缀彩色墙面,彰显了青春跳跃的校园风尚。
The open floor connecting the whole school connects to the South Entrance Square with an elevation of 5.1 meters and is located between the “Academic Center” and “Teaching Center”, providing teachers and students with shelter from the sun and rain suitable for the hot, humid, and rainy climate in the south. The layout of the outer corridor, elevated ground floor, large overhanging eaves, and courtyard enclosure appropriately respond to the climate of Lingnan; and the pallid dominant tone decorates the colorful wall, showing the young and bouncing campus style.
▼夜览,Night view © 山间影像Inter_mountain
▼总平面图,masterplan © Z&Z STUDIO
▼负二层平面图,-2F plan © Z&Z STUDIO
▼负一层平面图,-1F plan © Z&Z STUDIO
▼一层平面图,1F plan © Z&Z STUDIO
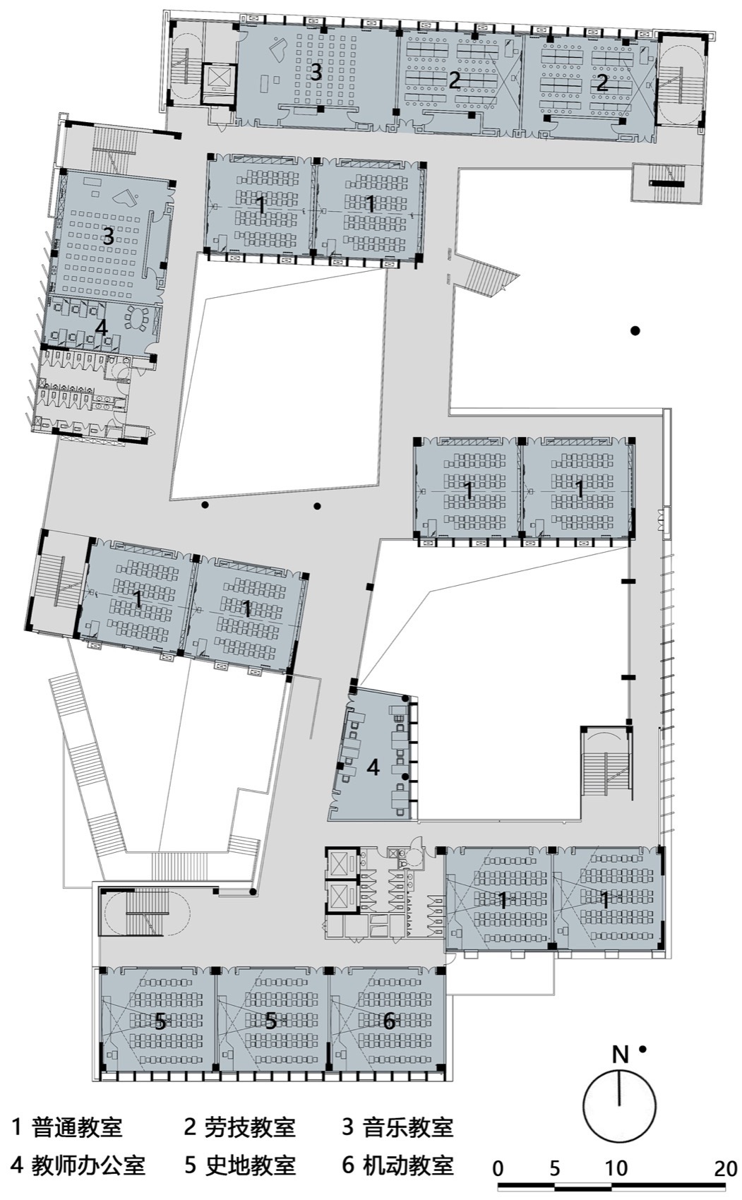
▼二层平面图,2F plan © Z&Z STUDIO
▼三层平面图,3F plan © Z&Z STUDIO
▼四层平面图,4F plan © Z&Z STUDIO
▼五层平面图,5F plan © Z&Z STUDIO
▼六层平面图,6F plan © Z&Z STUDIO
▼七-十层平面图,7-10 floor plan © Z&Z STUDIO
▼剖面图,section © Z&Z STUDIO
客服
消息
收藏
下载
最近



















































