查看完整案例

收藏

下载
项目名称:现代 Premium Outlet SPACE1 Cube商业建筑
位置:江苏 扬州
设计师:Betwin Space Design
摄影师:崔勇俊
现代Premium Outlet Space 1在京畿道南杨州市茶山新城开业。它是韩国第一家画廊式奥特莱斯,并增加了艺术画廊和公园等文化艺术元素。它的名字“SPACE 1”也取了“Shopping、Play、Art、Culture、Experience”的首字母,加上了“1”的意思。整体设计方向也是“每个人的假期”,确立了“每个人的假期”的身份。一个值得注意的空间是连接室内和室外的象征性立方体。它在空间内创造了各种表达和景观,每个区域通过“配对城市”的设计理念重叠和连接。这形成了一个三维立面,并提供了一种有趣的空间感。此外,通过模糊品牌边界,让游客体验自然连接购物区和休息区的各种移动线路。一楼的空间通过外部地板材料的图案设计,作为连接室外花园和室内商店的传递空间。户外遮阳结构与CUBE相结合,让吊顶设计显得格外出众。餐厅、面包店、咖啡馆、生活方式品牌齐聚一堂,让游客体验到明亮而充满活力的空间感。位于一楼前侧的高级餐厅“H”餐厅设有开放式厨房,游客可以在那里看到烹饪过程。
“天井中的花园”的设计理念让游客体验在户外花园中用餐,温室天花板上的彩色玻璃和中心的植物。休息区位于二楼的空隙,让参观者同时感受到垂直的空间感和开放性,同时体验CUBE的质量。在CUBE中,人们首先遇到了一个与CUBE相协调并引入造型元素的配饰多店,以不同的方式表达各种配饰产品。意在通过“Altered Chord”的设计理念来表达一种可以将各种元素组合在一起的设计语言,设计团队利用玻璃钢、亚克力、金属、切片单板、混凝土和砖瓦。此外,在从外面很显眼的四楼天花板上,灯光是借用CUBE精致的网格形状创造的。内部的所有体量都用粗糙的特殊材料表现出巨大的空间感和细腻的质感。CUBE随着时间和自然的变化每天都在发生着独特的变化,CUBE是一个温暖自然的空间,不会太久停留。在这里度过时光的同时,游客们将为他们的日常生活增添平静。
现代 Premium Outlet SPACE1 Cube商业建筑外部实景图
现代 Premium Outlet SPACE1 Cube商业建筑外部实景图
现代 Premium Outlet SPACE1 Cube商业建筑内部实景图
现代 Premium Outlet SPACE1 Cube商业建筑内部实景图
现代 Premium Outlet SPACE1 Cube商业建筑内部实景图
现代 Premium Outlet SPACE1 Cube商业建筑内部实景图
现代 Premium Outlet SPACE1 Cube商业建筑内部实景图
现代 Premium Outlet SPACE1 Cube商业建筑内部实景图
现代 Premium Outlet SPACE1 Cube商业建筑内部实景图
现代 Premium Outlet SPACE1 Cube商业建筑内部实景图
现代 Premium Outlet SPACE1 Cube商业建筑内部实景图
现代 Premium Outlet SPACE1 Cube商业建筑内部实景图
现代 Premium Outlet SPACE1 Cube商业建筑内部实景图
现代 Premium Outlet SPACE1 Cube商业建筑内部实景图
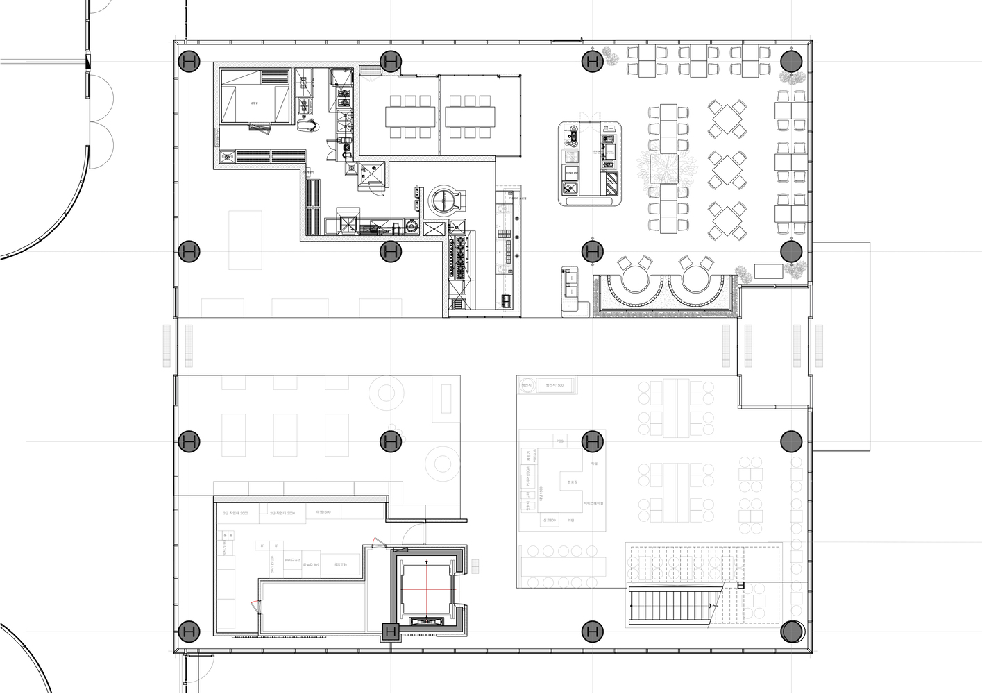
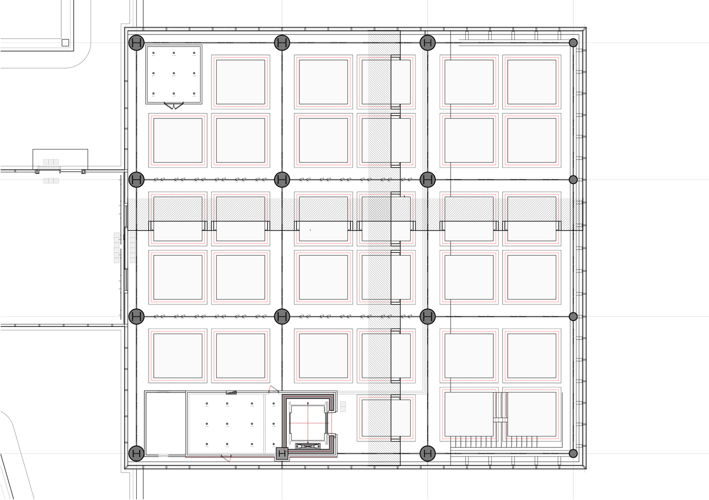
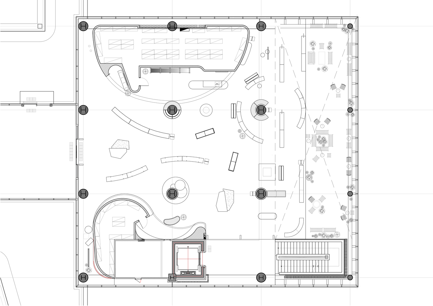
现代 Premium Outlet SPACE1 Cube商业建筑平面图
现代 Premium Outlet SPACE1 Cube商业建筑平面图
现代 Premium Outlet SPACE1 Cube商业建筑平面图
客服
消息
收藏
下载
最近




















