查看完整案例

收藏

下载
项目名称:瑞士K118 Kopfbau Halle 118商业建筑
位置:瑞士
设计公司:haubüro in situ
摄影师:马丁·泽勒
前苏尔寿工厂位于温特图尔,瑞士养老基金“Stiftung Abendrot”为气候友好和可持续建筑建造了一座灯塔,在其重复使用的金属板中闪烁着红色。12个工作室智库的118号馆主楼的扩建,以及一楼的修补匠实验室,主要是用旧建筑材料建造的。“所有已经存在的东西,加上木头、稻草和粘土”。从根本上说,这些是唯一可用于气候友好型施工方法的材料。由于建筑运营的巨大进步,建筑现在占建筑生命周期排放量的四分之三。对于 K.118,重点是减少这种隐含能源:与新建筑部件相比,可以节省 60% 的温室气体排放和 500 吨主要材料。试点项目很快表明,循环构建意味着循环思考。当从可用的建筑组件开始时,规划过程会发生转变:它随着机会的出现而跟随,并从寻找材料开始。选择之后是编目。为了重新安装组件,我们需要信息以及对要求和安装选项的准确了解。通过这种方式,设计与通常的规划阶段一起在评估、检查和决定的持续过程中创建。曾经支撑巴塞尔 Lysbüchel 站点的配送中心的钢骨架构成了支撑结构。混凝土仅在必要时使用,并且仅在由于静态原因或隔音和防火而不可避免的地方使用:在楼板、房间隔音支架和地基中。建在大厅顶部的三层新楼层可通过拆除的苏黎世猎户座办公楼的钢制外部楼梯进入。这个楼梯的平台决定了楼层的高度。
花岗岩外墙,在厨房、卫生间和阳台凉亭上被改造成板,大部分铝制隔热窗户也来自猎户座大楼。来自温特图尔的窗户和周围的红色外墙金属板可以抵御天气影响,并定义了建筑物的外观和温特图尔的城市景观。由于材料和项目元素在几何上不相关,因此必须创造必要的回旋余地:一旦元素和功能分层解耦,它们就可以重叠并遵循自己的规则。K.118 中的缩放立面和可见的支撑结构说明了这一点。用适应性材料围绕重复使用的元素是克服几何困难的另一种方式:在预制的木制外墙元素中,由稻草包制成的无废物隔间绝缘材料和由当地挖掘粘土制成的室内石膏填充了重复使用的窗户周围的空间。以最少的能量输入加工,这些天然“贫瘠的材料”保持可堆肥,并提供舒适的室内气候。由木头制成的内墙可容纳重复使用的门和舞台施工中重复使用的三层面板。胶合木材料和元件应该重新使用,因为它们的气候影响远没有人们对木材的预期那么积极,因为粘合剂。虽然施工中的二氧化碳排放量减少了一半以上,但成本仍然在类似新建筑的预期成本范围内。不同的是,绝大多数费用是用于所涉及的工匠的劳动。廉价的再利用材料在安装之前需要一定的体力劳动和专业知识。当地经济的可持续性也是如此。
瑞士K118 Kopfbau Halle 118商业建筑外部实景图
瑞士K118 Kopfbau Halle 118商业建筑内部实景图
瑞士K118 Kopfbau Halle 118商业建筑内部实景图
瑞士K118 Kopfbau Halle 118商业建筑内部实景图
瑞士K118 Kopfbau Halle 118商业建筑内部实景图
瑞士K118 Kopfbau Halle 118商业建筑内部实景图
瑞士K118 Kopfbau Halle 118商业建筑内部实景图
瑞士K118 Kopfbau Halle 118商业建筑内部实景图
瑞士K118 Kopfbau Halle 118商业建筑内部实景图
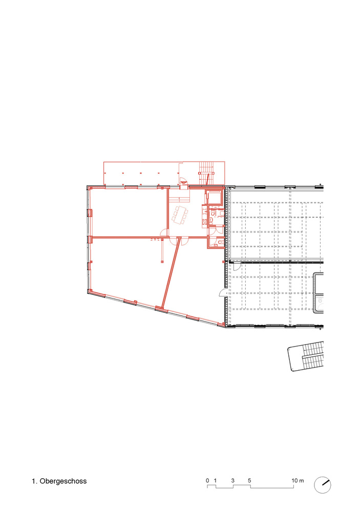
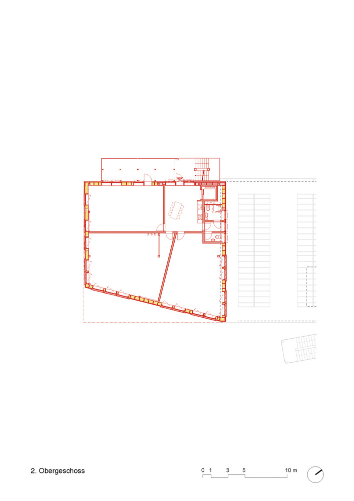
瑞士K118 Kopfbau Halle 118商业建筑平面图
瑞士K118 Kopfbau Halle 118商业建筑平面图
瑞士K118 Kopfbau Halle 118商业建筑平面图
瑞士K118 Kopfbau Halle 118商业建筑平面图
瑞士K118 Kopfbau Halle 118商业建筑剖面图
瑞士K118 Kopfbau Halle 118商业建筑剖面图
瑞士K118 Kopfbau Halle 118商业建筑立面图
瑞士K118 Kopfbau Halle 118商业建筑立面图
客服
消息
收藏
下载
最近




















