查看完整案例

收藏

下载
项目名称:印度尼西亚DipoMuria商业中心
位置:印度尼西亚
设计公司:SHAU Indonesia
摄影师:安德烈斯维迪
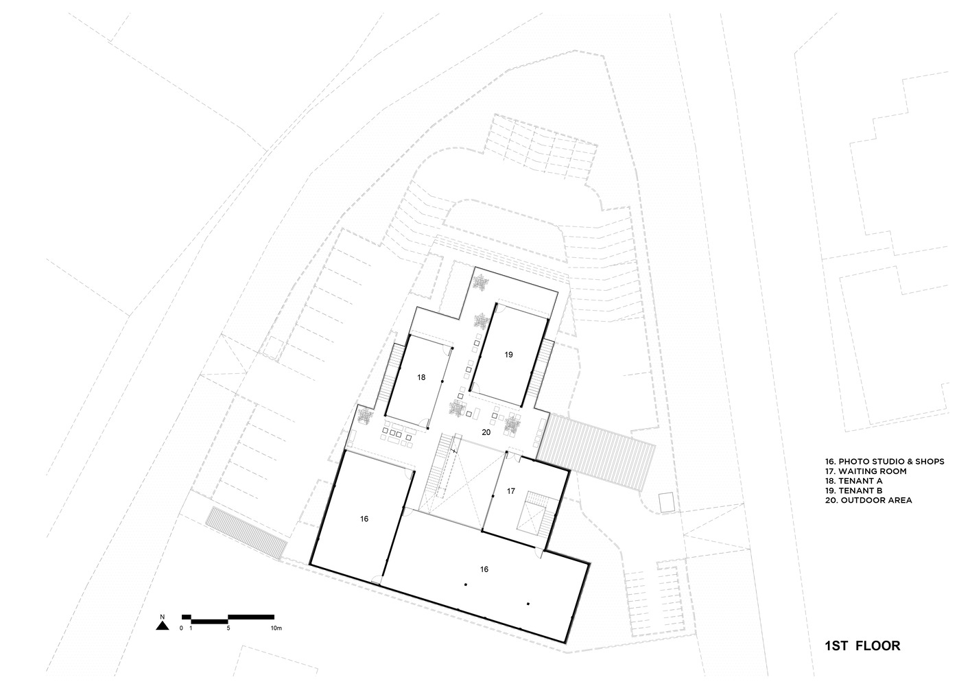
位于印度尼西亚中爪哇省三宝垄的DipoMuria 商业中心设有照相馆、餐厅、咖啡馆和零售店,并以城中村类型为模型。一方面,这使得设计更适合低层和小规模的住宅区,另一方面,也提供了玩弄体量的可能性,并提供更多体验性的中间空间序列来探索和闲逛.这些体量围绕一个中央庭院分组,这是整个建筑群的核心,与外部相连,但也与二楼的露台相连。庭院设有供孩子们玩耍的滑梯,但也可用作动作和合影拍摄的背景。村庄般的体量通过材料和颜色的变化水平分割,具有更接地的底座水平,包含所有外部楼梯,由粗糙的灰泥和更光滑且反射性的聚碳酸酯外墙覆层形式实现的上层。大多数较大的玻璃幕墙开口面向南北方向,并被悬垂遮蔽,而东西立面则更加封闭,开口位于聚碳酸酯外墙的后面。窗墙比也保持在最低水平,以减少不必要的热量增加。户外区域提供充足的休息区。巴西蕨树细长的外观强调了组合的最小特征,并在一天中的某些时间以金银丝叶子投射的阴影形式在外墙上提供额外的纹理。 在印度尼西亚语境中设计和实现建筑需要高水平的承诺和与其他任何人不同的软沟通技巧——这个项目也不例外。尽管预算有限,SHAU 实现了优雅精致的外观,营造出与文化建筑而非商业建筑更相关的氛围。
印度尼西亚DipoMuria商业中心外部实景图
印度尼西亚DipoMuria商业中心外部实景图
印度尼西亚DipoMuria商业中心外部实景图
印度尼西亚DipoMuria商业中心外部实景图
印度尼西亚DipoMuria商业中心外部实景图
印度尼西亚DipoMuria商业中心外部实景图
印度尼西亚DipoMuria商业中心外部实景图
印度尼西亚DipoMuria商业中心外部实景图
印度尼西亚DipoMuria商业中心平面图
印度尼西亚DipoMuria商业中心平面图
印度尼西亚DipoMuria商业中心立面图
客服
消息
收藏
下载
最近














