查看完整案例

收藏

下载
项目名称:韩国D-Auto Mall多功能混合建筑
位置:韩国
设计公司:KARO Architects
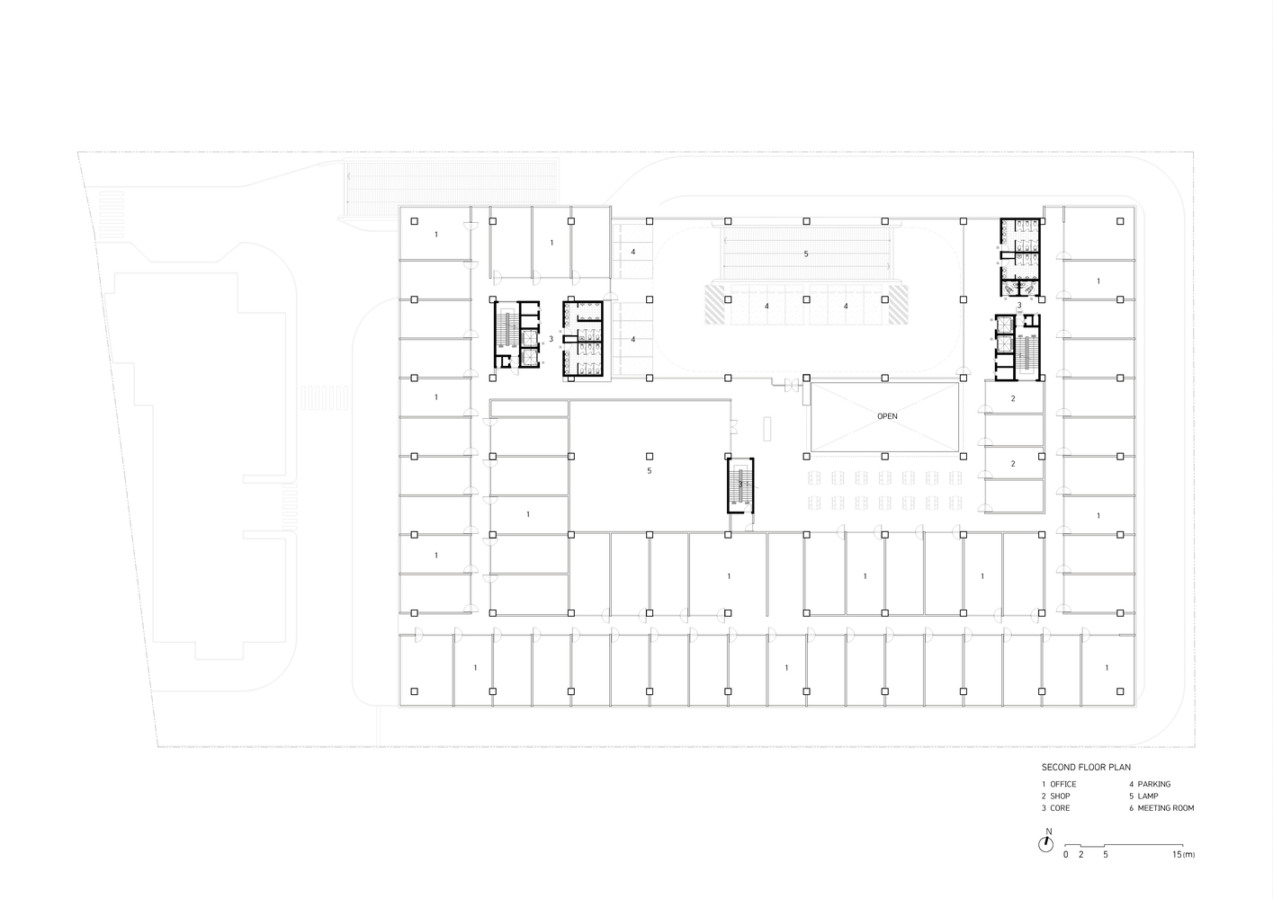
该地块位于湖南高速公路从北向南延伸的支线东侧。场地南侧有一条小溪流过,那边是一片平坦的土地,因此建筑物内的许多人都可以看到它。此外,东侧对附近的公寓大楼有开阔的视野,因此计划给公寓的居民一个舒适的视野。在北侧,一座两层长的建筑物建在两层高的挡土墙上,因此建筑物的大部分都会被覆盖。而这块地的平面形成比高速公路低一层。由于具有这种水平汽车的土地面向高速公路,因此我们需要考虑如何在设计中反映主要从快速移动的汽车中看到的场景。它将容纳 100 家二手车经销商。每个商人都需要一个办公室和一个停车空间,以及可以停放 40 辆汽车的马刺。二手车销售中心的特点是停车和车展是同一个概念。可以说是在一定程度上决定了建筑物的大小,特别是面积和形状的一个因素。对于每个维修空间,都需要超过一定尺寸的大面积,并且必须确保可用的工作空间。最重要的是,我们试图通过合理的计划配置来反映上述要求并在架构上解决它们。
地下层和3-6层必须在程序布局方面有系统地组织良好。因此,我们在餐厅位于认证汽车展厅和邻里生活设施之间的一楼和营业员办公室所在的二楼规划了一个专门用于该建筑设计的空间。计划从南前门到北餐厅购物中心建造一条 20m 宽的街道,并通过在紧急情况下开放展示汽车的可能性来容纳各种活动。这条内街的中心安装了一个自动扶梯,在空间和视觉上与开放空间相连,将一楼和二楼连接起来。在立面规划中,面向公路一侧的西立面最为重要。当您从高速公路的南侧开车接近时,看到的南立面是下一个重要的因素。而且由于当时有D-Auto Mall的二次开发计划,本来以为到时候东立面会被大面积覆盖。我们考虑了一个有深度的高程,以创建一个高程,它可以有效地响应远处的景色和具有速度感的汽车。南面和北面的立面设计深度较小。尤其是两侧相交的拐角设计,被设计成空间立面。
韩国D-Auto Mall多功能混合建筑外部实景图
韩国D-Auto Mall多功能混合建筑外部实景图
韩国D-Auto Mall多功能混合建筑外部实景图
韩国D-Auto Mall多功能混合建筑外部实景图
韩国D-Auto Mall多功能混合建筑外部实景图
韩国D-Auto Mall多功能混合建筑外部实景图
韩国D-Auto Mall多功能混合建筑外部实景图
韩国D-Auto Mall多功能混合建筑外部实景图
韩国D-Auto Mall多功能混合建筑内部实景图
韩国D-Auto Mall多功能混合建筑平面图
韩国D-Auto Mall多功能混合建筑平面图
韩国D-Auto Mall多功能混合建筑平面图
韩国D-Auto Mall多功能混合建筑平面图
韩国D-Auto Mall多功能混合建筑平面图
韩国D-Auto Mall多功能混合建筑平面图
韩国D-Auto Mall多功能混合建筑平面图
韩国D-Auto Mall多功能混合建筑剖面图
韩国D-Auto Mall多功能混合建筑剖面图
韩国D-Auto Mall多功能混合建筑剖面图
韩国D-Auto Mall多功能混合建筑立面图
韩国D-Auto Mall多功能混合建筑立面图
韩国D-Auto Mall多功能混合建筑立面图
韩国D-Auto Mall多功能混合建筑立面图
客服
消息
收藏
下载
最近


























