查看完整案例

收藏

下载
项目名称:日本多功能混合建筑
位置:日本
建筑师:塔塔建筑师
摄影师:中山裕康
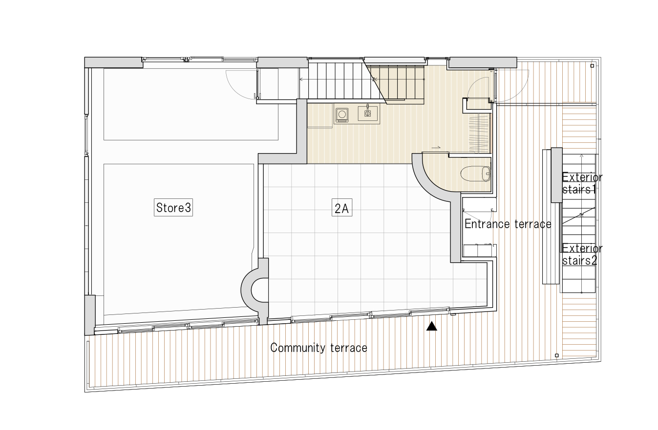
该建筑物是人口老龄化的浅草寺西北部的奥浅草地区的一处商店和公寓大楼,在不占用建筑面积的情况下建造了四层楼的电梯成本私人区域。目的是通过吸引年轻人居住和存储,在该地区创建一个新的活动中心。我们想到的设计是从Okuasakusa的典型小屋檐演变而来的,其结构可以改变车厢。结果,我们决定采用壁架式RC结构,其中两个楼梯彼此垂直重叠。通过减少混凝土框架的数量,该建筑变得更轻巧,并且基础直接,没有任何桩子,从而成功降低了成本。室内设计偶尔会弯曲的混凝土墙承受东西向的墙壁体积,而干式ALC和雪松的垂直原木墙则创造了有墙居住的生活体验,而不是传统的在公寓建筑中墙与墙之间生活的空间体验。面对十字路口和商业和住宅空间相交的公共区域的楼梯显示在街道上,并且楼梯的坡度在中间发生了变化,因此人们可以轻松地坐在平缓的斜坡上。楼梯的坡度跨越私人和公共区域,使阳光柔和并在夜间照亮城市。这些努力的结果是,我们旨在创建一种混合建筑,以模糊共享商店和私人住宅之间的边界。
日本多功能混合建筑外部实景图
日本多功能混合建筑外部实景图
日本多功能混合建筑外部实景图
日本多功能混合建筑外部实景图
日本多功能混合建筑外部实景图
日本多功能混合建筑外部实景图
日本多功能混合建筑外部实景图
日本多功能混合建筑外部实景图
日本多功能混合建筑外部实景图
日本多功能混合建筑内部实景图
日本多功能混合建筑内部实景图
日本多功能混合建筑内部实景图
日本多功能混合建筑内部实景图
日本多功能混合建筑内部实景图
日本多功能混合建筑内部实景图
日本多功能混合建筑内部实景图
日本多功能混合建筑内部实景图
日本多功能混合建筑内部实景图
日本多功能混合建筑平面图
日本多功能混合建筑平面图
日本多功能混合建筑平面图
日本多功能混合建筑平面图
日本多功能混合建筑平面图
客服
消息
收藏
下载
最近


























