查看完整案例

收藏

下载
项目名称:北京CYBER PLANTS商店
位置:北京
设计公司:KLC
项目摄影:北京瑞景摄影
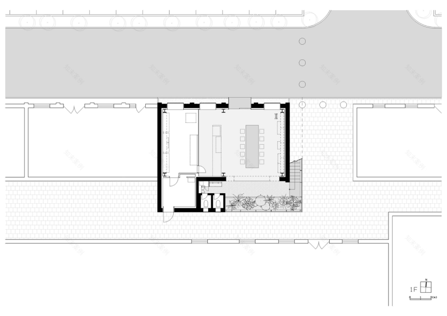
该基地位于中国北京和北京五环附近,位于市中心和郊区之间的特殊边界地区。这也是一个工业街区,有大量的红砖仓库,在1960年代支持旋转时代。它正在进行新的商业区的各种翻新,我们的项目是翻新其中的一个。客户已经在市中心拥有一家相对较小的商店,该商店仅出售有机植物制成的饮料。他们的业务正在扩展,不仅销售饮料,而且销售各种健康食品,因此他们购买了其中一个红砖仓库作为主要的Studio + Food Bar,并要求我们进行设计。要求有两层楼的建筑,包括食品实验室,就餐空间,销售空间,工作区,供团队工作的艺术家使用的画廊,办公区和温室。受客户对自然生态系统(包括温室中的许多植物)的浓厚兴趣的启发,我们尝试将室外空间积极引入室内空间。作为零售区的一部分,重要的是要在内部展现受欢迎和忙碌的氛围,以便从外面看到以吸引更多客人。因此,我们根据以下8条规则设计了项目。所有这些规则都具有多重视角,因此所产生的空间尽可能地令人激动。 考虑到各种功能的布局,设计了优化的空间质量以与外部环境协调。
预计将吸引日常客户的实验室和零售空间位于一楼平面图的北侧。从街道或室内都可以从视觉上识别它们。为了获得足够的阳光,将暖房(必须认真考虑日光照射和土壤管理)布置在南侧。陈列在画廊中的艺术品与玻璃一起放置在二楼北侧的街道旁,避免阳光直射。在二楼的西南侧,设置了一个私人聚会的工作空间。主要的内部交通流线设计成连续不断的书法笔画,将所有功能空间连接在一起。通常,交通流线是紧凑的,并且以最小的距离连接空间,从而将最大的地板面积用作商业空间。在这种情况下,客户流程线会在各种类型的空间之间延伸,以确保在有限的车间面积内获得最多样化的空间体验。室内空间没有设计门,试图将三层楼的空间与气味和声音连接起来。没有严格的空间使用规则,使空间变得灵活而模糊。客户甚至可以坐在交通流线的中间。
同时,可以从建筑物内的任何方向感受到自然光,从而形成3维螺旋状的空间,像植物一样向上生长。该建筑也是尝试研究混合宣传和隐私状况的实验。客户的流量从外部空间到内部空间融合在一起,从而在宣传和隐私之间实现了转换。沿着上升的楼梯,走到顶部的露台,北京的摩天大楼的景观为郊区区域的建筑营造出城市环境的感觉。通过插入一个不同的元素,即。在稠密的城市环境中的自然环境下,人们相信个人的私人精神运动获得了被释放和释放的机会。设计和施工监督完全在线完成。由于电晕大流行,东京的定期实地考察都被取消。在建筑竣工前后无法进行现场确认。即使有多个因素推迟了建设,但由于客户的努力和所有数字通信技术的影响,建设顺利完成,现已开始营业。
北京CYBER PLANTS商店外部实景图
北京CYBER PLANTS商店外部实景图
北京CYBER PLANTS商店外部实景图
北京CYBER PLANTS商店外部实景图
北京CYBER PLANTS商店外部实景图
北京CYBER PLANTS商店外部实景图
北京CYBER PLANTS商店外部实景图
北京CYBER PLANTS商店外部实景图
北京CYBER PLANTS商店外部实景图
北京CYBER PLANTS商店内部实景图
北京CYBER PLANTS商店内部实景图
北京CYBER PLANTS商店内部实景图
北京CYBER PLANTS商店内部实景图
北京CYBER PLANTS商店内部实景图
北京CYBER PLANTS商店内部实景图
北京CYBER PLANTS商店内部实景图
北京CYBER PLANTS商店内部实景图
北京CYBER PLANTS商店内部实景图
北京CYBER PLANTS商店内部实景图
北京CYBER PLANTS商店平面图
北京CYBER PLANTS商店平面图
北京CYBER PLANTS商店平面图
北京CYBER PLANTS商店剖面图
北京CYBER PLANTS商店立面图
北京CYBER PLANTS商店立面图
客服
消息
收藏
下载
最近




























