查看完整案例

收藏

下载
项目名称:日本学园前的商店和房屋
位置:日本
设计公司:FujiwaraMuro Architects
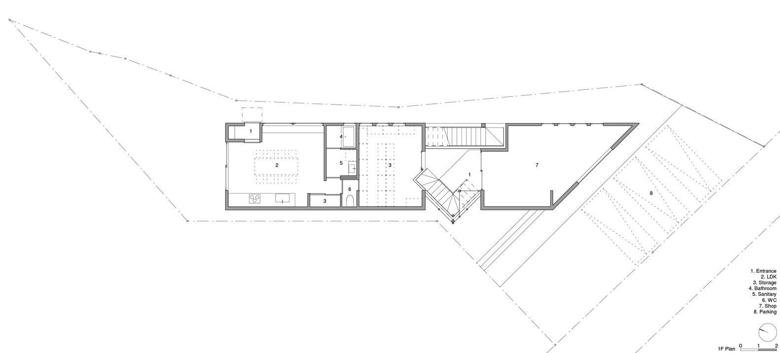
这家商店和住宅的结合体位于一个倾斜,形状不规则的地段,面对繁忙的道路。客户要求商店和住宅的流通路径分开,并且设计不强调住宅,以营造商业建筑的外观。由于它位于住宅区,因此我们面临的挑战是避免过分特质的颜色和形状,但仍要想出一种设计,以使商店在过往的车辆中引人注目。为了使比例尺适合居住区,我们将建筑物分为三个街区:一个街区包含商店,另一个街区中心包含楼梯间和入口大厅,第三个街区包含居民区。通过使用相同的材料完成前挡块和后挡块,我们产生了这样一种错觉:从道路上看时,商店的面积是实际大小的三倍。入口和楼梯间设计为这两个容积之间的玻璃盒。此框从内部开始显示建筑框架,而从外部将正面和背面的块分开,以确保建筑物不感到压抑,同时在三个块的链之间建立连接。此框从内部开始显示建筑框架,而从外部将正面和背面的块分开,以确保建筑物不感到压抑,同时在三个块的链之间建立连接。
日本学园前的商店和房屋外部实景图
日本学园前的商店和房屋外部实景图
日本学园前的商店和房屋外部实景图
日本学园前的商店和房屋外部实景图
日本学园前的商店和房屋内部部实景图
日本学园前的商店和房屋内部实景图
日本学园前的商店和房屋内部实景图
日本学园前的商店和房屋内部实景图
日本学园前的商店和房屋内部实景图
日本学园前的商店和房屋内部实景图
日本学园前的商店和房屋内部实景图
日本学园前的商店和房屋内部实景图
日本学园前的商店和房屋内部实景图
日本学园前的商店和房屋内部实景图
日本学园前的商店和房屋平面图
客服
消息
收藏
下载
最近


















