查看完整案例

收藏

下载
项目名称:上海上汽通用五菱前瞻中心
位置:上海
设计公司:mage Design
2020年注定是不平凡的一年,然而有这么一家汽车企业却在这特殊的开年方式中收获不一样的大众关注:国民口罩,地摊神车、网红螺蛳粉,以及最新落成的创作中心——上汽通用五菱前瞻中心。毫无疑问,办公空间正在经历一场变革,这场彻底的变革映射出时代的变迁。当生活与工作越来越难以划清界限的同时,人们对办公空间的要求也更加多元。作为设计方,我们也在思考如何通过全新的办公空间激发员工创造力,让创意可视化共享化,让员工在工作之余收获团队归属感。项目位于上海浦东新区,场址前身是由工业厂房改造的办公产业园区。作为整个园区入口的形象建筑,外立面改造以业主汽车品牌的“星际几何”概念融入设计理念,对建筑进行外立面形象升级。入口区域局部裸露出原有立面具有工业感的灰色波纹板,折叠上翻的深色金属雨棚打造年轻向上的力量感,结合线性发光带元素和LOGO设计,以点线面结合的方式形成清晰的新旧体量关系,提升建筑形象。针对长达近70m的办公区域,我们主张在保持原有建筑立面开窗的情况下,横向划分以创造出视觉稳定感,将这些横向延伸的银白色穿孔金属板进行规律性的翻折并模数化控制,形成具有律动感的立面效果。
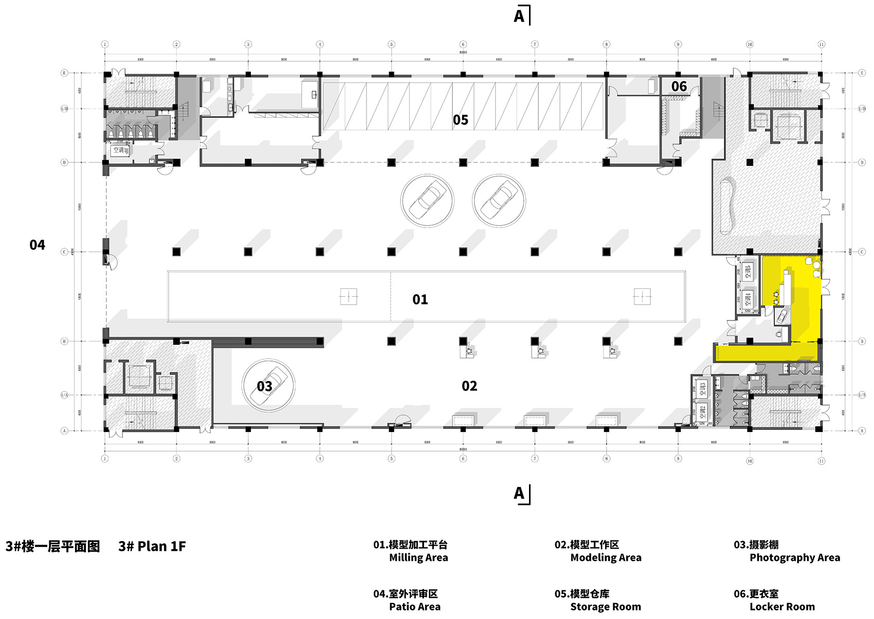
灵活可移动的家具和大面积展示墙面让未来汽车设计师在这里接受并学习前沿的汽车工业知识和技能。台阶式类影院的超4K高清VR评审室可以为设计人员在没有实物模型的情况下进行方案评审。聚酯纤维吸音板折面结合线光源点光源的布置再次呼应“星际几何”的品牌理念。独立于办公楼之外的油泥工作室是整个前瞻中心的核心主体,承担着保密性要求最高的造型研发功能。与办公区入口前厅的动感元素不同,油泥工作室的前厅更多体现的是汽车工业的严谨与秩序。连接前厅和油泥工作区的是一条狭长的廊道,这是一条通往未来的时空光廊,白色烤漆玻璃墙上记录着五菱企业大事年表。根据原有厂房柱网,利用通高的大空间高度布置核心油泥作业区和平层观察区,局部设置油泥车储藏和夹层办公空间,加建楼板空间也为夹层办公人员提供良好的观察视角。油泥作业区以条形灯带强化空间的纵向性,大面积干净的灯膜吊顶为观测区提供良好的照明,线面元素的灯光设计结合黑白灰墙面奠定了简约理性的工业设计基调。局部空间以警示色橙色结合标识引导体系点缀,使整体油泥作业空间不失生动活泼。未来是设计的本质属性之一,设计必须依靠对未来的期待或梦想,才可以描绘出未来的远景。设计创造未来生产力,未来SGMW的发展在国潮文化的助力下必将更加注重设计的价值。
上海上汽通用五菱前瞻中心外部实景图
上海上汽通用五菱前瞻中心外部实景图
上海上汽通用五菱前瞻中心外部实景图
上海上汽通用五菱前瞻中心外部实景图
上海上汽通用五菱前瞻中心外部实景图
上海上汽通用五菱前瞻中心内部实景图
上海上汽通用五菱前瞻中心内部实景图
上海上汽通用五菱前瞻中心内部实景图
上海上汽通用五菱前瞻中心内部实景图
上海上汽通用五菱前瞻中心内部实景图
上海上汽通用五菱前瞻中心内部实景图
上海上汽通用五菱前瞻中心内部实景图
上海上汽通用五菱前瞻中心内部实景图
上海上汽通用五菱前瞻中心内部实景图
上海上汽通用五菱前瞻中心内部实景图
上海上汽通用五菱前瞻中心内部实景图
上海上汽通用五菱前瞻中心内部实景图
上海上汽通用五菱前瞻中心内部实景图
上海上汽通用五菱前瞻中心内部实景图
上海上汽通用五菱前瞻中心内部实景图
上海上汽通用五菱前瞻中心内部实景图
上海上汽通用五菱前瞻中心内部实景图
上海上汽通用五菱前瞻中心内部实景图
上海上汽通用五菱前瞻中心内部实景图
上海上汽通用五菱前瞻中心内部实景图
上海上汽通用五菱前瞻中心内部实景图
上海上汽通用五菱前瞻中心内部实景图
上海上汽通用五菱前瞻中心内部实景图
上海上汽通用五菱前瞻中心平面图
上海上汽通用五菱前瞻中心平面图
上海上汽通用五菱前瞻中心平面图
上海上汽通用五菱前瞻中心平面图
上海上汽通用五菱前瞻中心平面图
上海上汽通用五菱前瞻中心剖透视图
上海上汽通用五菱前瞻中心立面图
客服
消息
收藏
下载
最近






































