查看完整案例

收藏

下载
项目名称:韩国La Cucina建筑
位置:韩国
设计公司:Choon Choi Architects
La Cucina / Myeongborang位于南山南侧汉南区的最高点,从汉江到北塔楼,可以一览城市全景。尽管位于该著名地点的以前的建筑Bing Gallery Bing以其整体的晶体形式统治了周围的环境,但是由于其遮盖和反射的表面在光学上模糊并瓦解了建筑物,因此新建筑物似乎消失在其柔和而宁静的氛围中。如果将旧画廊看作是白天和黑夜从外面观看的信标,那么新餐厅主要是白天从内部观看城市的镜头,而夜晚则像星星一样闪闪发光。La Cucina的起源可以追溯到Myeongborang,这是一家于1975年在明洞开业的精品店/画廊,并通过精心策划的展览很快确立了自己的地位,成为展示金属工艺领域最杰出艺术人才的场所。这些展览中展示的物体图像是La Cucina Namsan新设计的视觉目录。新大楼既是高档餐厅又是精品珠宝,通过拓扑策略将明博朗和La Cucina这两个品牌的标识融合在一起,通过将二维表面折叠成各种形状和大小的体积来组织整个建筑物。水平基准线之间的间隔在更高的水平上更远,以使建筑物看起来更高,并针对阴影和视角校准垂直分隔。接缝处用挤压的铝百叶窗勾勒出轮廓,每个模块都是锥形和波纹状的,以产生光学效果。银色和香槟金色的成对阴影代表每个品牌的不同和独立的特征,而波纹表面的拓扑连续性则象征着两个相反的形而上学的统一。最终的立面是形式和表面,亲密和透明以及新旧之间的微妙平衡。
韩国La Cucina建筑外部实景图
韩国La Cucina建筑外部实景图
韩国La Cucina建筑外部实景图
韩国La Cucina建筑外部夜景实景图
韩国La Cucina建筑外部夜景实景图
韩国La Cucina建筑外部夜景实景图
韩国La Cucina建筑外部夜景实景图
韩国La Cucina建筑外部夜景实景图
韩国La Cucina建筑内部实景图
韩国La Cucina建筑内部实景图
韩国La Cucina建筑剖面图
韩国La Cucina建筑剖面图
韩国La Cucina建筑轴测图
韩国La Cucina建筑立面图
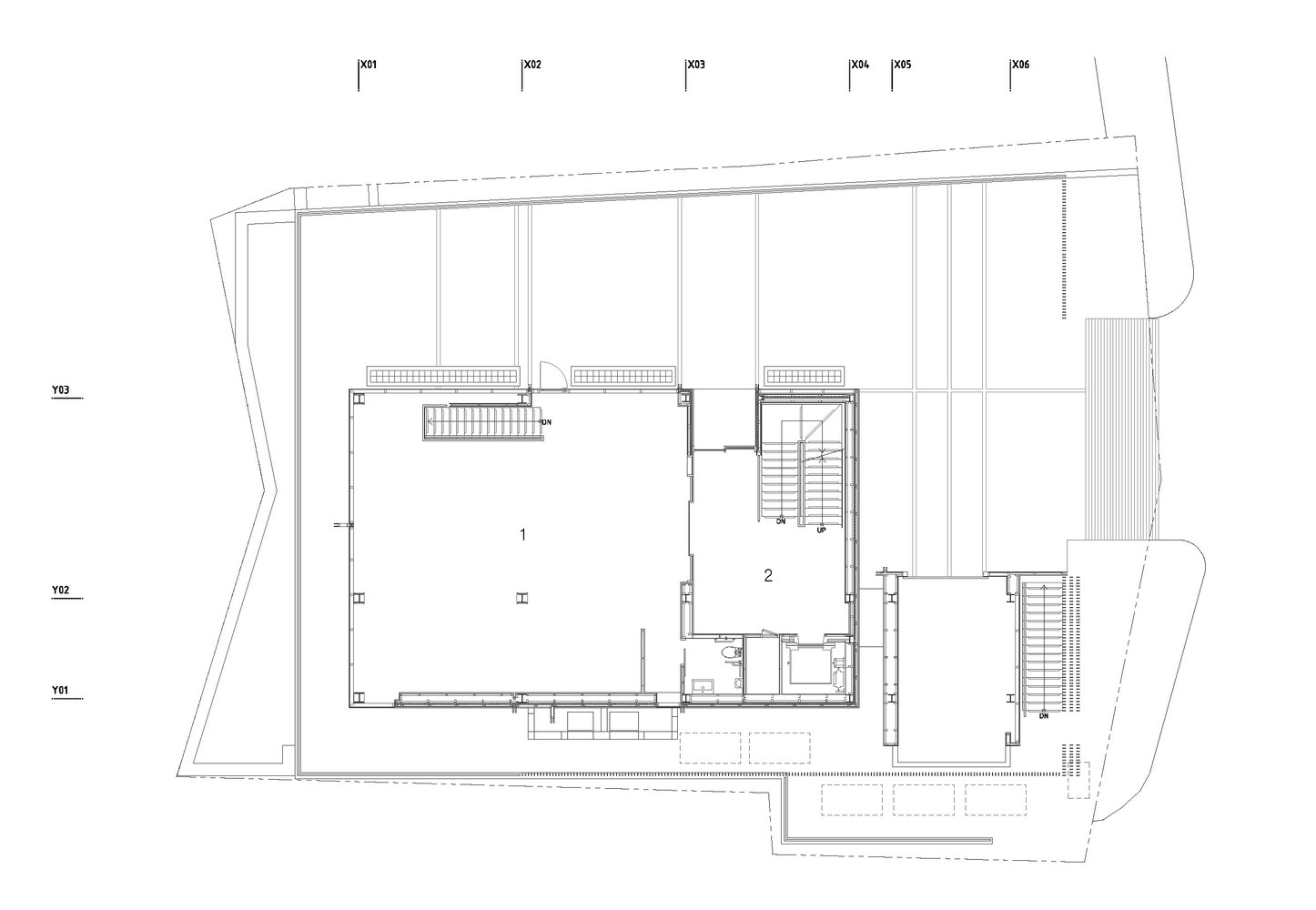
韩国La Cucina建筑平面图
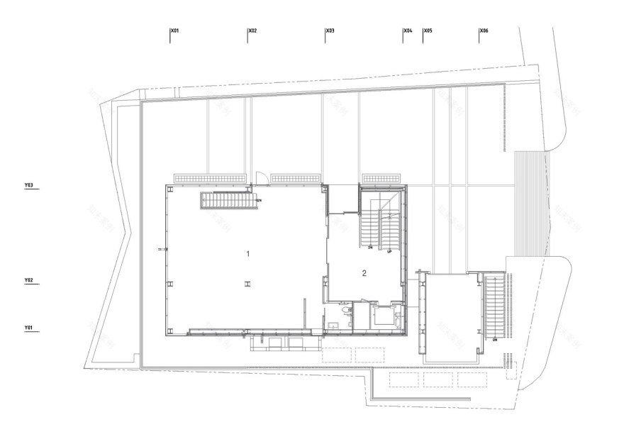
韩国La Cucina建筑平面图
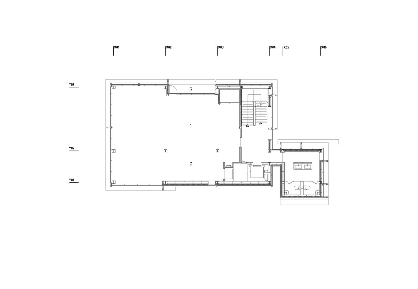
韩国La Cucina建筑平面图
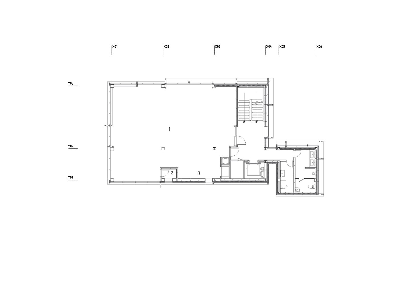
韩国La Cucina建筑平面图
韩国La Cucina建筑平面图
客服
消息
收藏
下载
最近






















