查看完整案例


收藏

下载
坐标上海,北静安,这里曾经是协新毛纺织厂的厂房,随着城市快速扩张,大空间的厂房经过适应性改造,分隔为一间间尺度更加宜人的办公空间。翻新后的建筑立面保持了工业厂房的冷峻。前排高大的厂房挡住了南向的阳光。过了午后,阳光终于从建筑的缝隙里穿出,照射在巷道上,照射进房间里。
With the rapid development of the city, a lot of old factory buildings in Shanghai have been adaptively reused, including original Xiexin Wool Textile Factory located in North Jing’an, which is now home to many small creative companies. The cement vestibule is like an abandoned corner of a factory building when the lights are off. Blocked by the tall building to the south, the sunlight can only show up after 1pm through the gap between the buildings, lighten up the alley, and illuminate the room.
▼项目外观,appearance of the project © Momente Design
▼项目主入口,main entrance © Momente Design
水泥墙、T5灯管、不锈钢扩张网,三种冷调材料组成的“三明治”构造,包裹着Bwzy Lab的玄关,形成与工业调性相一致的冷静界面。当灯光关闭时,水泥玄关好似厂房的废墟;而当灯光打开,穿过扩张网喷薄而出时,就再也挡不住它的光芒,成为路人经过时都要不禁“WOW”的一个时刻。这就是年轻人的主张,不要低调,拒绝平庸,要的是彰显自我。
The sandwich composed by cement, LED tubes and extended metal mesh wrapped the vestibule of Bwzy Lab from wall to ceiling, forming a cool interface consistent with the renovated building façade in terms of industrial look. However, when the light matrix is activated, a “WOW” moment is created that can never be ignored as people pass by. This is a manifest of young generation’s opinion – NO low-key, NO mediocrity, but SHOW YOURSELF.
▼水泥墙、T5灯管、不锈钢扩张网组成玄关,the entrance is composed by cement, LED tubes and extended metal mesh © Momente Design
▼不锈钢大门上,太空舱门形状的窗洞,capsule window on the stainless steel door © Momente Design
不锈钢大门上,太空舱门形状的窗洞,将阳光引入玄关。随着太阳角度的推移,投射在玄关的色彩与形状,也产生戏剧性的变化。玄关从此打破了冷静,开启了光与色的游戏。
Dramatic lighting effect is dancing on either side of the door when sunlight penetrates through the holographic film of the capsule window. The calm looking of the vestibule is totally replaced by the playfulness of light and color.
▼太阳投射在玄关开启了光与色的游戏,Dramatic lighting effect of the entrance © Momente Design
▼由玄关看室内,viewing the interior from the entrance © Momente Design
通长的钴蓝色背景墙,与勃艮第红色钢梁、消防管道形成鲜明对比,跃然于浅灰地面上的红缸砖,再次强调了红与蓝的冲撞,奠定了空间的色调。室内的丰富色彩,成为平白冷淡的工业立面上,一格鲜亮的点缀。
The full-length cobalt blue wall contrasts with the burgundy red steel beams and fire-fighting pipes. The red clinker bricks pop-up from the pale gray floor also emphasize the contrast between red and blue, which form the basic tone of the space. Colorful interior becomes glittering decoration on the plain white industrial facade.
▼项目概览,overall of the project © Momente Design
▼钴蓝色背景墙,与勃艮第红色钢梁、消防管道形成鲜明对比,The full-length cobalt blue wall contrasts with the burgundy red steel beams and fire-fighting pipes © Momente Design
当阳光将生有铁锈的窗框,投射在可移动的白板上,红灰相间的地砖上,工厂立面反之成为了室内的光影装饰。带有滑轮的隔断,一面是磁性白板,一面是毛毡,可以肆意挥洒无限创意。
When the sunlight casts shadows on the mobile partitions and the floor tiles through the original rusty window frames, the industrial facade then becomes decoration inside the room. The partitions on-wheel with magnetic whiteboard on one side and felt on the other encourage unlimited inspiration.
▼铁锈的窗框与红灰相间的地砖,Rusty window frames and red-and-gray floor tiles © Momente Design
▼带有滑轮的隔断,一面是磁性白板,一面是毛毡,the partitions on-wheel with magnetic whiteboard on one side and felt on the other © Momente Design
游戏,在光与色之外继续。秉持“work / play”的理念,办公空间结合娱乐设施,激发员工更大的创造力。固定在钢梁上的滑轨,安装了几个可移动吊钩,可以吊挂拳击水袋、TRX训练带、秋千椅等等,根据活动需求灵活变化。椅子用瑜伽球作椅面,可以做瑜伽,或是弹跳坐卧各种玩法。
Games continue beyond light and color. In believe of the idea of “work /play”, the office space is combined with recreational facilities to inspire greater creativity of employees. Several hooks are installed on the sliding rail for hanging sandbag, TRX training rope, swing chairs and etc., which can switch flexibly as program changes. A wooden yoga ball chair can be used for yoga, or just an alternative fun seat.
▼办公空间结合娱乐设施,the office space is combined with recreational facilities © Momente Design
欧松板和多层板打造的多功能工作台,可以在此办公、讨论、就餐,闲暇时也可以用来玩乒乓球,桌面足球等桌面游戏。
The multi-purpose table made of OSB and plywood can be used for working, discussion or dining, as well as table tennis, table football and other table games in leisure time.
▼会议室与工作区间用玻璃隔开,The meeting room is separated from the working area by glass © Momente Design
▼多功能工作台,multi-purpose table made of OSB and plywood © Momente Design
▼会议桌,meeting area © Momente Design
金属,作为连接工业时代和信息时代的材料,在室内反复出现。从天花板和线管,到不锈钢门与门框,从不锈钢挂杆,到会议室吊顶的扩张网和格栅灯盘,都为空间增添了光泽感。用于家庭厨房的不锈钢成品货架和铝箔纸,材料自身的粗糙感与蓝色背景墙冲撞,显得原始却又时尚。
Metal, a material that connects the industrial age and the information age, repeat in the interior, from ceiling and conduits, to stainless steel door and frame, from hanging rods, to the expansion mesh ceiling with recessed louver fittings, all of which add luster to the space. As to the stainless-steel shelves and patterned aluminum foils that commonly used in home kitchen, the roughness of materials contracts with the blue wall, to make it raw but fashionable.
▼光与色的游戏,A Play on Light and Color © Momente Design
设计采用了廉价而耐用的基本建筑和装饰材料,通过光与色的游戏,打造出绚丽变幻的空间,使得旧工业厂房熠熠生辉,成为年轻人喜欢驻足停留的场所。
By applying low-cost and durable materials and products in an unconventional way, and addressing play on light and color, a nice space is created to attract young people to stay, which illuminates the industrial heritage of the site.
▼家具细部,details of the furniture © Momente Design
▼分析图,diagram © BWZY
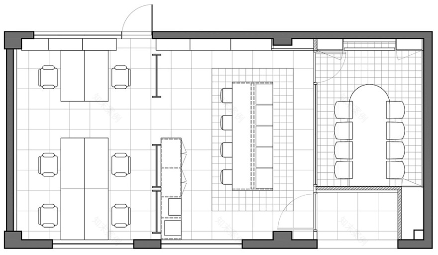
▼平面图,plan © BWZY
客服
消息
收藏
下载
最近

























