查看完整案例

收藏

下载
项目名称:张家港职工文体中心
位置:江苏
设计公司:上海实现建筑设计事务所
摄影师:吴清山
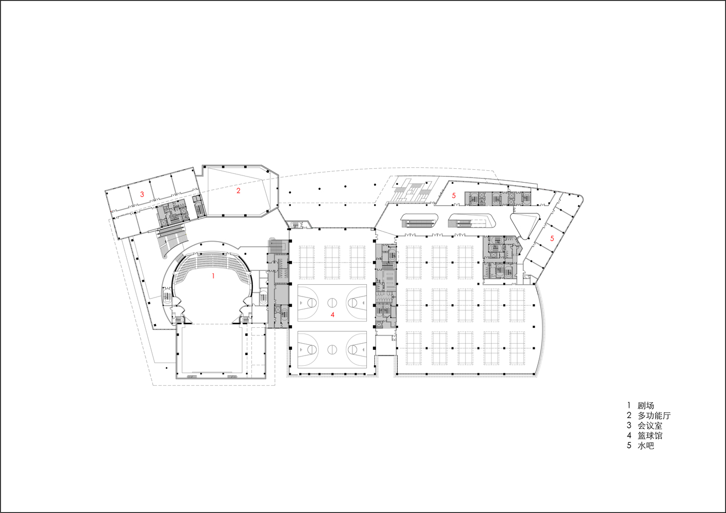
文体中心项目位于张家港市城北新区的核心地段,承载着文艺汇演和体育活动两大主要功能,内容包括大剧院、小剧场、会议中心,50米游泳池,室内羽毛球场、篮球馆和电影院,以及图书室、咖啡厅和健身房,包罗万象,希望在一个综合体的屋顶下,最大限度的实现市民业余生活的多样性。常常都说文体不分家,其实观看话剧演出,和参加羽毛球锻炼,完全是两种不同的行为活动。人们的着装礼仪、社交方式和场景氛围,有着很大的差别。因此,设计的策略是安排两个广场,分别位于地块的东西两个端头,各自独立,互不干扰。一个负责文艺清新,一个表现活力动感,既方便各种人群的组织疏散,更利于塑造不同的空间场景。西广场是文化广场,包括一个综合性的演艺会议中心,核心功能是1200座的大剧院,同时承接着地方政府各类会议的任务。广场占地约3000平方米,景观层次丰富,视线敞朗,满足大型文艺观演的集散要求。立面法度严谨,线条平直优雅,门廊高敞,布局端庄。饰面主材选用暖灰色的莱姆石,色彩沉着,肌理柔和,衬以精致的拉锁玻璃幕墙,塑造了具有仪式感的空间序列,共同形成了安静内敛的文化氛围。
东广场是体育广场,包括游泳、篮球、舞蹈等多种类型的体育场馆,主要服务于城北新区的居民。不同于西广场端庄优雅的仪式感,这边强调的是大众健身的日常性与运动感。相应的,建筑呈现出另外一种姿态,立面表情变的活泼灵动,透明轻盈。形体对比强烈,直面与弧线,金属锐度和光滑玻璃,渲染着体育的冲击力和力量感。其中,绿色是一个具有标签性的色彩,喻示着生命与自然,传递着时尚健康的气息。主材选用打孔铝板获得透明感,运用三种不同深度的绿色,蓝绿、中绿和草绿,整体色调上深下浅,色块间次有机排布;局部单元饰以铝板实面,或是斜锲,或是凹入,获得斑驳的楔状阴影。阳光穿过幕墙的孔隙,各种绿色相互叠加,仿佛早春晨间的树林,透明朦胧而生机盎然, 这一特征性的表皮肌理,很好的诠释了空间场景的主题——运动和活力。
近年以来,综合体的概念越来越宽泛,有商业综合体、教育综合体、文化综合体、产业综合体……这反映了建筑功能复合化的大趋势,鼓励不同的人群聚集活动,提升空间使用的频次和效率,强调空间表情的丰富性和差异化。与此同时,场景的差异化和建筑风格的统一性产生了分化和矛盾,功能越复合,场景越丰富,矛盾越突出。对应于丰富的场景要求,外部的建筑风格很难处理的灵活百变,立面语言通常是严格的保持统一;相对而言,在室内更容易实现场景的差异化。美式商业综合体是一个很好的例子,它们的外型大都很炫酷,常常采用同一种肌理包裹形体,如同一个神秘的百宝箱,打开后万千世界,五彩缤纷。这是商业推广的标准套路,盒子获得大尺度的城市标志性,在室内实现小尺度的场景丰富性。造型的归造型,室内的归室内,非常实用,也很高效,但应该不是唯一的思路。某种程度上,它的高效是忽略了场景的差异性,放弃了室内外场景的连续性,同时将场景营造的任务,基本拱手让位给了室内设计。
基于不同的使用场景,运用不同的立面表情,是另一种思路,也是一个大胆的尝试。在职工文体中心的项目上,存在着演艺和健身两种不同的行为,存在着仪式感和日常性的差异,存在着政府会议期间局部封闭管理的要求,这些都成为两个广场、两种表情的前提,成为一体两面实验的逻辑基础。显而易见的,两种手法的并置带来了意外活力,同时带来了对比和碰撞。如何将冲突转化为节奏,统一两者的调性,是接着必须处理的任务。场景差异带来的问题,只能是回到场景/活动本身去解决。任何一种活动都带有基本的社交属性——活动各有各的精彩,交往却是普遍的出发点和需求。一直以来,强调公共空间的融合与交流,促使各种不同场景有机协调的共存,都是建筑师的不二法门。理想的是,如果公共空间能和基地特征发生某种紧密的联系,往往意味着更鲜明的个性,更强的统率力,更能将不同的场景融为一体。
张家港职工文体中心外部实景图
张家港职工文体中心外部实景图
张家港职工文体中心外部实景图
张家港职工文体中心外部实景图
张家港职工文体中心外部实景图
张家港职工文体中心外部实景图
张家港职工文体中心外部实景图
张家港职工文体中心外部实景图
张家港职工文体中心外部实景图
张家港职工文体中心外部实景图
张家港职工文体中心外部夜景实景图
张家港职工文体中心内部实景图
张家港职工文体中心内部实景图
张家港职工文体中心平面图
张家港职工文体中心平面图
张家港职工文体中心平面图
张家港职工文体中心平面图
张家港职工文体中心平面图
张家港职工文体中心平面图
张家港职工文体中心剖面图
张家港职工文体中心剖面图
张家港职工文体中心立面图
张家港职工文体中心立面图
客服
消息
收藏
下载
最近


























