查看完整案例

收藏

下载
项目名称:德国木结构谷仓住宅和会议建筑
位置:德国
设计公司:leupold Brown Goldbach Architekten
这个项目是对1773年建造的一个谷仓进行修复的结果,这个谷仓由数百个木材构件组成,这些构件已经被拆卸、堆放和储存了40多年。这一艰苦的过程需要重建它的木材加工者的巨大勇气和精湛工艺。谷仓最初是一座农业建筑,用来存放设备。原则上,室内是一个连贯的空间体,没有分区,比如隔墙,甚至是地板天花板。美丽的木结构网格是一个开放的结构,内部附有木板。它是开放式通风的,仅用于防雨、防雪和防晒,而不是作为隔热层。室内原本不需要日光,导致空间相当黑暗和不祥。挑战在于将这个美丽的贝壳转变成一个住宅和会议空间,而不破坏历史工艺的魔力。为了分隔历史上的开放空间,一个由房间大小的木制立方体组成的三层建筑干预被巧妙地放置在木结构内。这些立方体,随着它们一个接一个的堆叠而移动,创造了一个三维雕塑的印象,它填满了谷仓的空间,直到它的屋顶。立方体均质的银冷杉表面与木结构的网格形成对比,用现代干预来补充历史建筑。
穿过谷仓的两条具有历史特色的通道被称为" tennen ",它们没有被阻挡,只有上层的轻型桥梁横跨其间。最初的双仓门早已失传,但它们被透明的大玻璃门所取代。这使得内部和外部作为一条路径直接从底层通向风景如画的相邻湖泊。在谷仓上层格子结构的内部,安装了玻璃窗,以保证透明,同时形成一个隔热层。因此,日光会渗透到室内,而美丽的历史建筑也可以从里到外感受到。底层砖石建筑中原本很小的开口被更大的开口所取代。这些“不准确”表现为现代的变化,具有对比的格式和简约的细节。景观美化是用符合乡村环境的自然材料完成的。前面是一个狭长的外屋,里面有技术空间、储藏室和车库,构成了入口区域的框架,并与谷仓形成了一个庭院。
由于智能能源和气候的概念,被动措施是用来实现健康的生活和工作条件与最低限度的能源消耗。屋顶挑檐和集成的外部防晒装置减少了进入建筑的阳光。在夏天,建筑可以完全自然通风。打谷场上的大屋顶窗户通过有效的夜间通风来降温。集成在木材结构中的石膏纤维板作为热质,即使在较高的室外温度下也能产生令人愉快的室温。在冬季,通过受控的生活空间通风和有效的热回收,建筑物充分供应无通风新鲜空气。热量通过地板下的低温面板加热带入室内。热量由邻近仓库的颗粒锅炉提供,也作为其他建筑的局部供暖网络。通过使用可再生的原材料木材,二氧化碳的排放量减少到最低限度。
德国木结构谷仓住宅和会议建筑外部实景图
德国木结构谷仓住宅和会议建筑外部实景图
德国木结构谷仓住宅和会议建筑外部实景图
德国木结构谷仓住宅和会议建筑外部实景图
德国木结构谷仓住宅和会议建筑外部实景图
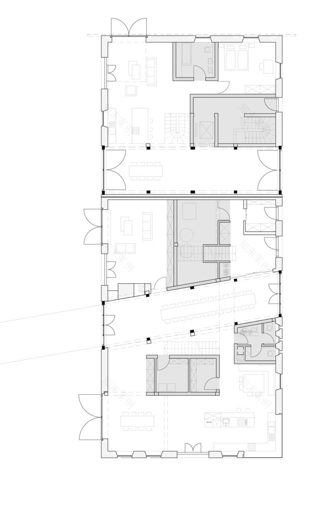
德国木结构谷仓住宅和会议建筑平面图
德国木结构谷仓住宅和会议建筑平面图
德国木结构谷仓住宅和会议建筑平面图
德国木结构谷仓住宅和会议建筑立面图
德国木结构谷仓住宅和会议建筑立面图
德国木结构谷仓住宅和会议建筑立面图
德国木结构谷仓住宅和会议建筑立面图
客服
消息
收藏
下载
最近















