查看完整案例

收藏

下载
项目名称:葡萄牙B&B Famalicão酒店
位置:葡萄牙
设计公司:Jorge Domingues Arquitetos
Famalicão B&B 酒店位于葡萄牙Famalicão市的中心地带,共有八层,内含98 间客房。项目建筑和周围建筑的高度相符,建筑师运用比例尺寸设计了一栋主立面面向东侧广场的高层建筑。该建筑的外立面采用了混凝土预制板和窗框相结合的结构方案,既突出了建筑的垂直感,又营造出错落有致的动感节奏。横向和纵向元素的使用贯穿了所有外墙,使整个建筑浑然一体,和谐统一。项目共分八层。一楼是入口和休息区,与外面的广场有直接的视觉联系,因此外墙采用了玻璃基座,一直延伸到一楼房间的水平面。它还包括服务区,可通过西侧立面上的入口进入,使所有所需服务的功能维护不受干扰。上层的客房依靠一条中央走廊,从这里可以进入每层的 14 个房间,一半朝东,一半朝西。走廊的室内装饰采用深色材料,营造出光线微弱、私密的环境,通往宽敞明亮的房间,房间的设计采用简洁、轻盈的材料,营造出宁静、放松的氛围。
葡萄牙B&B Famalicão酒店外部实景图
葡萄牙B&B Famalicão酒店外部实景图
葡萄牙B&B Famalicão酒店外部实景图
葡萄牙B&B Famalicão酒店外部实景图
葡萄牙B&B Famalicão酒店外部实景图
葡萄牙B&B Famalicão酒店外部实景图
葡萄牙B&B Famalicão酒店外部实景图
葡萄牙B&B Famalicão酒店外部实景图
葡萄牙B&B Famalicão酒店外部实景图
葡萄牙B&B Famalicão酒店外部实景图
葡萄牙B&B Famalicão酒店外部实景图
葡萄牙B&B Famalicão酒店外部实景图
葡萄牙B&B Famalicão酒店外部实景图
葡萄牙B&B Famalicão酒店外部实景图
葡萄牙B&B Famalicão酒店外部实景图
葡萄牙B&B Famalicão酒店外部实景图
葡萄牙B&B Famalicão酒店外部实景图
葡萄牙B&B Famalicão酒店外部实景图
葡萄牙B&B Famalicão酒店外部实景图
葡萄牙B&B Famalicão酒店外部实景图
葡萄牙B&B Famalicão酒店外部实景图
葡萄牙B&B Famalicão酒店外部实景图
葡萄牙B&B Famalicão酒店外部实景图
葡萄牙B&B Famalicão酒店外部实景图
葡萄牙B&B Famalicão酒店内部实景图
葡萄牙B&B Famalicão酒店内部实景图
葡萄牙B&B Famalicão酒店内部实景图
葡萄牙B&B Famalicão酒店内部实景图
葡萄牙B&B Famalicão酒店内部实景图
葡萄牙B&B Famalicão酒店内部实景图
葡萄牙B&B Famalicão酒店内部实景图
葡萄牙B&B Famalicão酒店内部实景图
葡萄牙B&B Famalicão酒店内部实景图
葡萄牙B&B Famalicão酒店内部实景图
葡萄牙B&B Famalicão酒店内部实景图
葡萄牙B&B Famalicão酒店内部实景图
葡萄牙B&B Famalicão酒店内部实景图
葡萄牙B&B Famalicão酒店内部实景图
葡萄牙B&B Famalicão酒店内部实景图
葡萄牙B&B Famalicão酒店内部实景图
葡萄牙B&B Famalicão酒店内部实景图
葡萄牙B&B Famalicão酒店内部实景图
葡萄牙B&B Famalicão酒店内部实景图
葡萄牙B&B Famalicão酒店内部实景图
葡萄牙B&B Famalicão酒店内部实景图
葡萄牙B&B Famalicão酒店内部实景图
葡萄牙B&B Famalicão酒店内部实景图
葡萄牙B&B Famalicão酒店内部实景图
葡萄牙B&B Famalicão酒店内部实景图
葡萄牙B&B Famalicão酒店内部实景图
葡萄牙B&B Famalicão酒店内部实景图
葡萄牙B&B Famalicão酒店内部实景图
葡萄牙B&B Famalicão酒店内部实景图
葡萄牙B&B Famalicão酒店内部实景图
葡萄牙B&B Famalicão酒店内部实景图
葡萄牙B&B Famalicão酒店内部实景图
葡萄牙B&B Famalicão酒店内部实景图
葡萄牙B&B Famalicão酒店内部实景图
葡萄牙B&B Famalicão酒店内部实景图
葡萄牙B&B Famalicão酒店内部实景图
葡萄牙B&B Famalicão酒店内部实景图
葡萄牙B&B Famalicão酒店内部实景图
葡萄牙B&B Famalicão酒店内部实景图
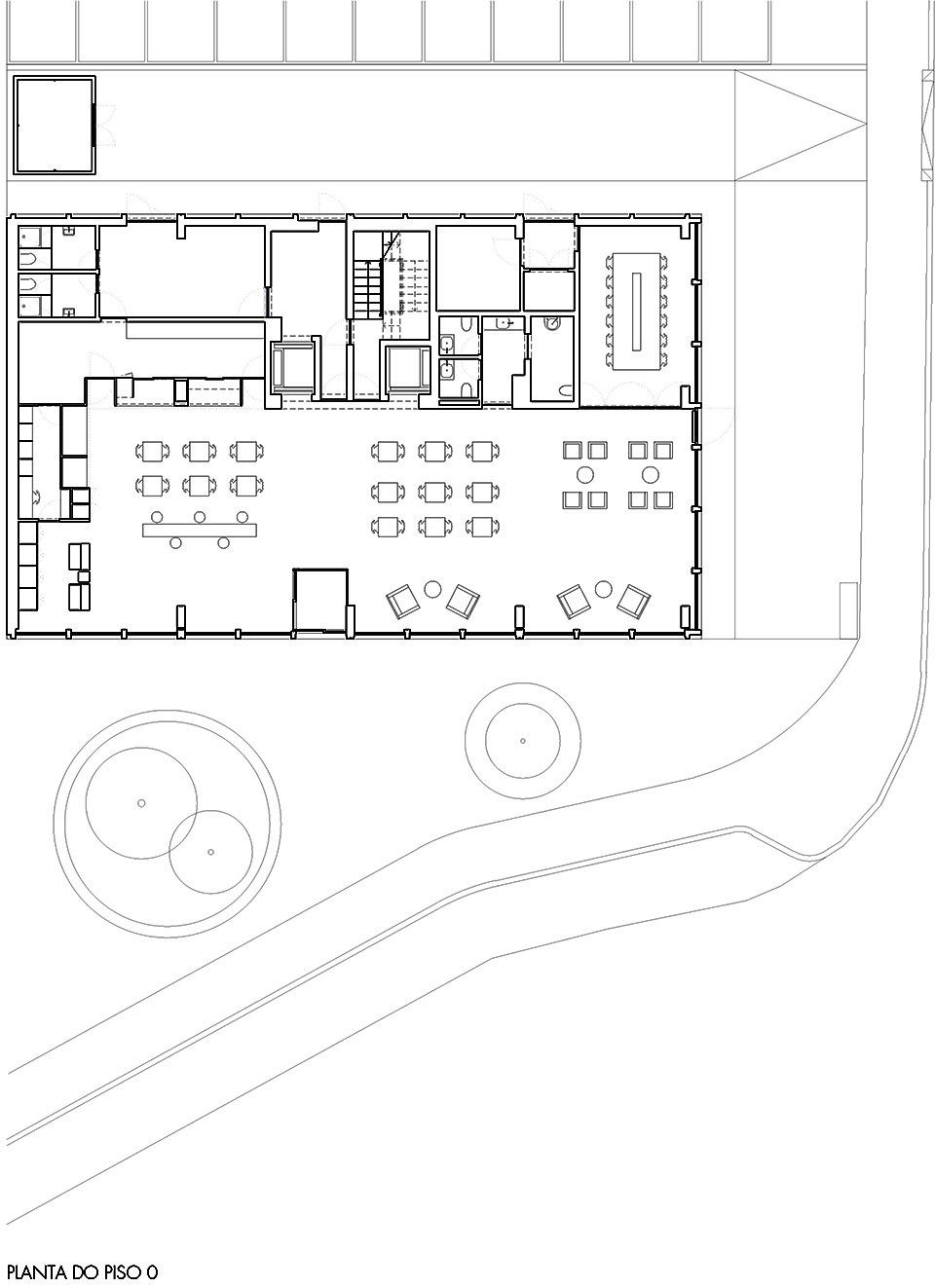
葡萄牙B&B Famalicão酒店平面图
葡萄牙B&B Famalicão酒店平面图
葡萄牙B&B Famalicão酒店剖面图
葡萄牙B&B Famalicão酒店立面图
客服
消息
收藏
下载
最近






































































