查看完整案例

收藏

下载
项目名称:荷兰MFA湖边建筑Brielle酒店
位置:荷兰
靠近历史城堡城镇布里埃尔,MFA湖边位于布赖尔湖(Brielle Lake)。MFA作为商店、餐厅、酒店房间和自行车租赁设施,支持建筑所在的同名休闲公园和周边地区的服务,如儿童保育和会议空间。这座非凡的建筑拥有当代建筑风格,证明了传统与创新的完美融合。现代多功能设施是建筑表现的融合,现代优雅与城市丰富的历史魅力优雅交织。坐落在郁郁葱葱的绿色之中,亭子般的结构具有圆滑的线条和玻璃立面,与附近的百年建筑形成了优雅的对比。这种多功能的住宿跨越两层楼,底层深思熟虑地嵌入郁郁葱葱的绿色山丘中,让人想起布里埃尔的历史城堡墙。这一建筑元素不仅赋予了住宿独特的个性,也加强了其与城市历史的联系。
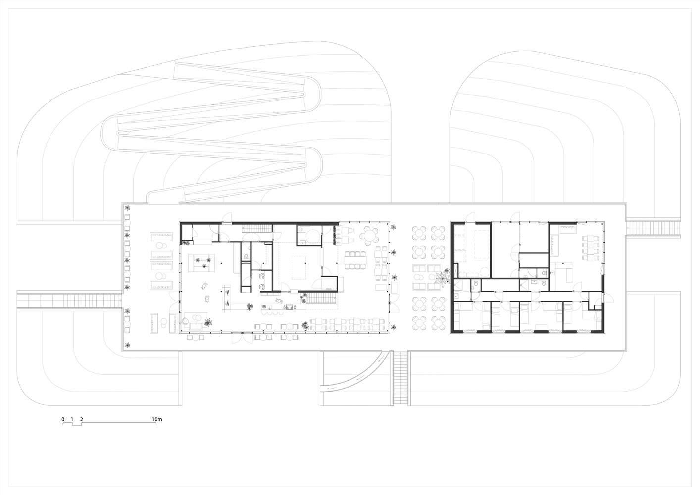
这个MFA提供了一系列灵活的空间,适合会议、婚礼和特殊场合。使这些空间与众不同的是它们的多功能性,允许它们在一天中被调整和转换以服务于不同的目的。MFA的布局是清晰的,并且由于其紧凑的结构,路径是短的。餐厅的入口特意设在一楼,以提供该地区的概况。有一个供残疾人使用的坡道,它像一条优雅的山路一样蜿蜒越过山丘,通向一楼的露台。宽敞的屋顶增强了建筑的视觉吸引力。屋顶用黑色木板装饰,与二楼的玻璃和木头立面形成了鲜明的对比。此外,屋顶上的垂直黑色木板整天都在与阳光和阴影玩耍,创造了一个充满活力和迷人的室外环境。屋顶充当了一楼两个类似亭子的体量和各种室外空间之间的连接元素。屋顶本身就像它自己的生态系统。
它被当地植被覆盖,有自己的水管理系统。这确保了屋顶增加了该地区的生物多样性。住宿的所有玻璃外墙都可以完全打开,在室内和室外之间创造一个无缝的互动。游客可以欣赏到令人叹为观止的全景布里埃尔湖,而周围的舒适的住宿。一楼的项目与周围环境融为一体,而一楼的项目则提供宁静和祥和。在第一层,山丘上的四个凹槽清楚地表明了不同的入口。这种设计消除了各种用户和功能之间的冲突。这种住宿是可持续发展和环境意识的灯塔。凭借其木质结构和绿色屋顶,它有助于保护该地区的自然美。此外,该建筑是能源中性的,产生的能量与消耗的一样多,大大减少了其生态足迹。
荷兰MFA湖边建筑Brielle酒店外部实景图
荷兰MFA湖边建筑Brielle酒店外部实景图
荷兰MFA湖边建筑Brielle酒店外部实景图
荷兰MFA湖边建筑Brielle酒店外部实景图
荷兰MFA湖边建筑Brielle酒店外部实景图
荷兰MFA湖边建筑Brielle酒店外部实景图
荷兰MFA湖边建筑Brielle酒店平面图
荷兰MFA湖边建筑Brielle酒店平面图
荷兰MFA湖边建筑Brielle酒店平面图
客服
消息
收藏
下载
最近












