查看完整案例

收藏

下载
项目名称:江西吉安结庐半间精品民宿
位置:江西
设计公司:白岛营造设计工作室
结庐半间民宿是一个乡村生态文旅项目的一部分,位于江西省吉安市郊的一片丘陵之中,距离吉安中心城区约有20KM的车程。项目的业主是一位出生成长于当地乡村并且一直工作生活在当地的青年企业家,对家乡和乡村有着深切的热爱。这个项目可以说是其复兴乡村,重建乡村精神家园梦想的一部分。生于斯长于斯,对于人居环境,尤其是乡村人居环境,业主有着非常深刻的思考和认识,很多方面的理念和诉求跟我们的乡建实践经验不谋而合,这也是项目得以顺利展开并落地的一个重要原因。作为一个乡建项目,我们一开始就要思考它要以怎样的姿态呈现。基地周围不远处就是一个传统村落,保留有大量传统民居,只不过大都人去房空,凋敝不堪,让人唏嘘。迅猛的城市化进程使得乡村人口流失严重,传统乡村聚落形态也已经几近消亡,取而代之的一栋栋钢筋混凝土的小洋楼。
在当代,什么样的乡村人居环境是好的,什么样的乡村建筑是适宜的,这是我们一直思考的问题,也是我们在实践中试图去回答的问题。我们希望我们的设计可以创造一个当代乡村的生活场景,也能唤起人们对过往乡村生活的回忆,引发人们对于当代人的生活方式的思考和探索。我们也尝试用在地的方式在生态和节能的层面做一些探索,因此,我们希望在这个项目中,建筑是带有一定的传统聚落意向的,但又仍然是当代的。项目基地位于一片丘陵间的小盆地中,经由一条乡道进入,路过一片片山林和果园,一片宽阔的水面在眼前徐徐展开,建筑基地就在远处这片水面岸边。场地西侧和北侧高,东侧和南侧低,地形高差较为丰富。场地西侧为一条乡道,与乡道一路之隔是一片开阔的草坪,东侧紧邻水面,景观视野非常开阔。
占据场地中间的是一片原生树林,树种构成以松树和毛竹为主,树木生长状态自然,良好。当我们第一次踏勘场地的时候,业主和我们就一致决定要保留场地中间的树林,它们是这里的“原住民”,是场地的记忆和最重要的特征。西侧开阔水面的风景吸引着我们将部分建筑临水而设,与水亲近,因而,以树林为中心,将建筑沿场地边缘布局就成了非常自然的选择,树林自然而然成为建筑群“内院”的核心景观。其实,一开始我们就有将建筑以小体量分散布局,以营造村落意向的想法,而场地恰恰为我们提供了这样的绝佳条件,场地在不同方向上的丰富高差又进一步增加了空间的多样性和趣味性。为保证内院与外界空气的足够对流,我们以形体脱开,切削洞口,设置架空体量等等多种手法对建筑形态进行处理,同时为保证雨雪天气各分散功能之间的便利联结,我们在不同建筑体量之间设置了连廊,这在措施在客观上又使得建筑的空间和形态更为有机和丰富。
土木建造体系,是中国民间非常常见的传统建造体系,这里的土,指的是生土。生土,指以原状生土为主要原料,无需焙烧仅需简单加工便可用于房屋建造的建筑材料,其传统形式包括夯土、土坯、泥砖、草泥、屋面覆土等。其中,以夯土强度最高,建造工艺最精细,也最能适应现代建筑的使用要求。经实地踏勘,我们发现场地周边的村庄仍旧保留有大量木构土砖或木构夯土墙的民居。对于我国当下尤其是广大农村地区而言,夯土建筑无论从历史文脉、生态价值、舒适度还有经济层面而言,夯土都有大力推广的价值。因而,我们在这个项目中尝试着选择了夯土作为主要维护结构和表现材料。根据功能和希望达到的空间效果,我们采用了钢筋混凝土结构+夯土,木结构+夯土和钢结构+夯土三种组合方式。
南方丘陵地带的红壤在色彩和质感上有极其丰富的表现力,我们通过对不同色彩的土壤的比例的调配来调节夯土墙的颜色,同时通过在夯土中夯入砂石,或是夯土和混凝土或红砖等材料共同使用来增强材料的整体丰富性。在我们以往的项目中,我们一直在追求建筑,室内,景观的一体化营造,我们认为,室内和景观分别是建筑的内延和外延,他们是建筑不可分割的整体,一个项目的各部分之间应该是有机的,是有整体感的。在这个项目中,我们尽量少的使用装修的做法去处理室内完成面,而尽量多的让受力结构和维护结构去表现自身。尤其是,夯土这种材料本身有着非常强烈的表现力,夯土墙的暖色调,不规则的柔和的纹理和表面的颗粒质感,给人以厚重,朴素和亲切的感觉,非常适合用在室内,因此我们的室内完成面即是围护结构夯土墙,不加任何修饰。
而木结构本身也有着非常强的表现力,木构件之间的穿插连接有着一种很强烈的建造逻辑美感,并且往往使人联想到传统的建筑,而木材料本身又给人以亲切温暖的感觉。同样,钢结构和混凝土结构也有着自身独特的表现力。在景观的处理上,我们完全保留了原有的树林,把它作为内院的核心景观,并且尽量少的去对树林的地面进行干预。我们保留了场地的大部分原始高差,让建筑地坪跟随场地起伏,结合高差,设计景观踏步,连廊,步道,庭院,通过这些来消解建筑和场地的界限,我们在建筑的各个部位设计了很多天井和内嵌的微“庭院”,在其中布置景观植物和构件,让景观植入建筑之中。在景观植物的选择上,我们使用了很多乡土植物,我们希望景观和建筑一样,是在地的。
江西吉安结庐半间精品民宿外部实景图
江西吉安结庐半间精品民宿外部实景图
江西吉安结庐半间精品民宿外部实景图
江西吉安结庐半间精品民宿外部实景图
江西吉安结庐半间精品民宿外部实景图
江西吉安结庐半间精品民宿外部实景图
江西吉安结庐半间精品民宿外部实景图
江西吉安结庐半间精品民宿外部实景图
江西吉安结庐半间精品民宿外部实景图
江西吉安结庐半间精品民宿外部实景图
江西吉安结庐半间精品民宿外部实景图
江西吉安结庐半间精品民宿外部实景图
江西吉安结庐半间精品民宿外部实景图
江西吉安结庐半间精品民宿外部实景图
江西吉安结庐半间精品民宿外部实景图
江西吉安结庐半间精品民宿外部实景图
江西吉安结庐半间精品民宿外部实景图
江西吉安结庐半间精品民宿外部实景图
江西吉安结庐半间精品民宿外部实景图
江西吉安结庐半间精品民宿外部实景图
江西吉安结庐半间精品民宿内部实景图
江西吉安结庐半间精品民宿内部实景图
江西吉安结庐半间精品民宿内部实景图
江西吉安结庐半间精品民宿内部实景图
江西吉安结庐半间精品民宿内部实景图
江西吉安结庐半间精品民宿内部实景图
江西吉安结庐半间精品民宿内部实景图
江西吉安结庐半间精品民宿内部实景图
江西吉安结庐半间精品民宿内部实景图
江西吉安结庐半间精品民宿内部实景图
江西吉安结庐半间精品民宿内部实景图
江西吉安结庐半间精品民宿内部实景图
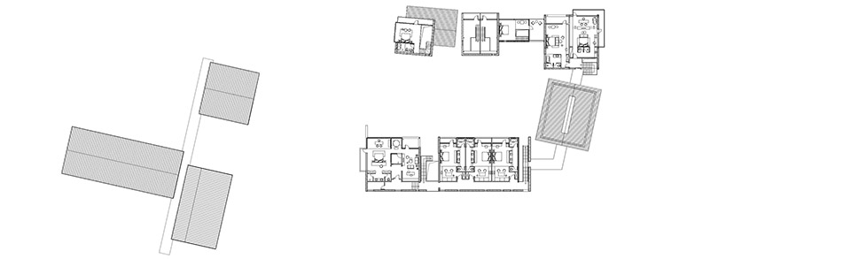
江西吉安结庐半间精品民宿平面图
江西吉安结庐半间精品民宿平面图1.jpg
江西吉安结庐半间精品民宿平面图
江西吉安结庐半间精品民宿平面图
江西吉安结庐半间精品民宿剖面图
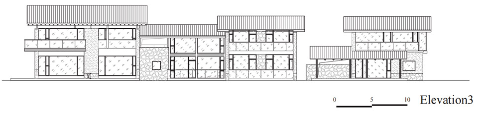
江西吉安结庐半间精品民宿立面图
江西吉安结庐半间精品民宿立面图
江西吉安结庐半间精品民宿立面图
江西吉安结庐半间精品民宿立面图
客服
消息
收藏
下载
最近












































