查看完整案例

收藏

下载
项目名称:法国公寓式酒店和公寓
位置:法国
建筑师:Taillandier建筑师协会
Aparté项目由两个主要部分组成,一个公寓酒店和一个集体住宅区。位于市中心的图卢兹(法国奥西塔尼大区)。这个多用途项目位于布劳德尔-欧洲运营城市规划项目的区域内。该简介包括两个主要部分,一个公寓酒店,和一个集体住宅区。在一楼,公寓酒店的公共区域,以及住宅区的主厅,通过大窗户可以看到风景如画的内院,有助于恢复Béarnais街的活力。街道侧立面的平衡和中性设计在街道的现有立面和新开发的社区之间创造了一个过渡。建筑布局采用梳子形状,在rue du Béarnais形成一个连续的城市立面,同时将酒店和公寓开放到景观花园中。这两个功能单元在设计上是完全不同的,特别是在它们的用途和与公共空间的关系上。该项目通过其材料和体积设计,试图展示一个统一和低调的形象。
沿着街道的主要建筑上升到地面以上四层,完成了城市立面,顶层的凹进部分减少了建筑的规模。立面设计非常规则,参考了典型的奥斯曼大街的税务大楼图卢兹。立面上窗台的连续性创造了一种节奏,打破了窗户的重复性。底层成为街道公共空间和住宅私人空间之间的过渡空间,包含公寓酒店的公共空间、住宅区的主厅以及通往地下停车场的通道。因此,底层很大程度上是玻璃的,以方便识别这些空间,但也通过向街道开放这些空间来更新和重振街景。两个垂直于街道和主楼的侧翼是内花园。北翼由所有的双面公寓组成,而南翼包含额外的酒店公寓。所有的生活区都通过大面积的窗户向花园敞开。主楼的山墙两端交错排列,使项目在街景中清晰可见。
底层的公共区域很大程度上是自动上釉的,而技术空间由相同比例的百叶窗板封闭。建筑的基础是用预制的灰色混凝土柱和过梁建造的,这是一种特别好的持久材料,在重复的图案和细节中提供了理想的美学和纯粹的简单性。虽然底层的大窗户镶板是谨慎的,扩大了立面的空间和比例,但上层的窗户是白色的,与预制混凝土的浅灰色相联系。向内打开的传统平开窗为立面增添了家居特色,同时宽大的窗户允许从房间向外开放,给人一种阳台的印象,并通过降低的窗台和垂直扶手栏杆得到加强。建筑的结构是用壁柱和各种砌砖模式的砖包层来表达的。交错的山墙末端还覆盖有装饰砖,从Béarnais街的入口处看,增加了动态设计,同时也为标志和街景的焦点创造了背景。因此,该项目发现自己牢牢扎根于砖城图卢兹。
法国公寓式酒店和公寓外部实景图
法国公寓式酒店和公寓外部实景图
法国公寓式酒店和公寓外部实景图
法国公寓式酒店和公寓外部实景图
法国公寓式酒店和公寓外部实景图
法国公寓式酒店和公寓外部实景图g
法国公寓式酒店和公寓外部实景图
法国公寓式酒店和公寓外部实景图
法国公寓式酒店和公寓外部实景图
法国公寓式酒店和公寓外部实景图
法国公寓式酒店和公寓外部实景图
法国公寓式酒店和公寓内部实景图
法国公寓式酒店和公寓内部实景图
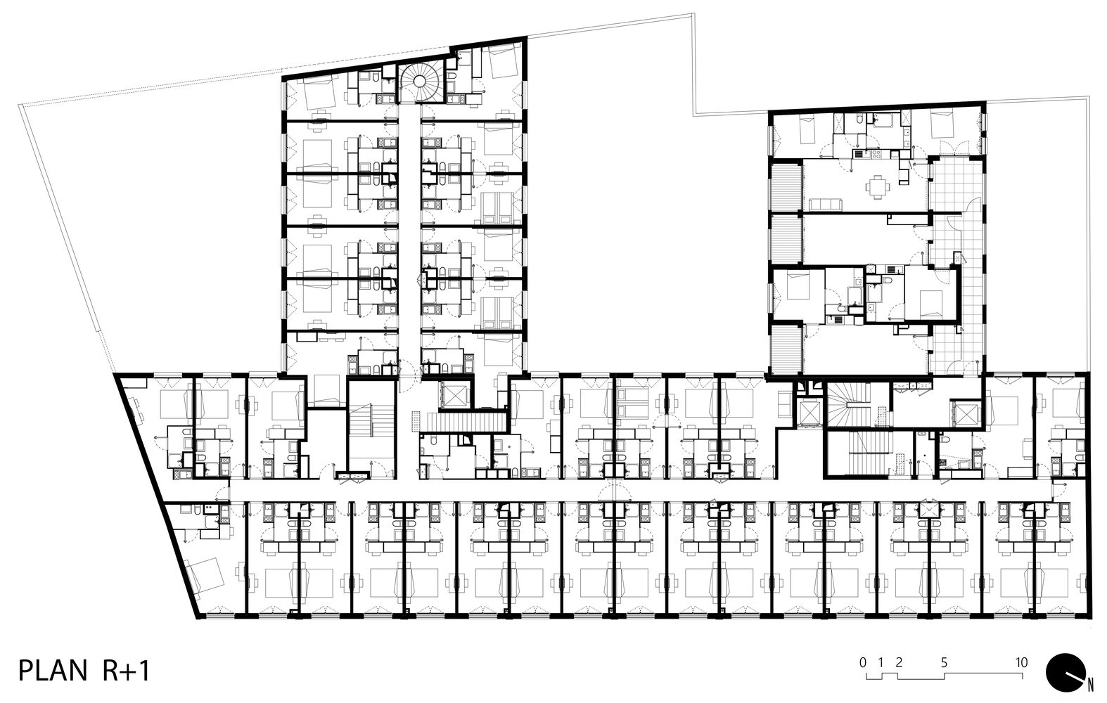
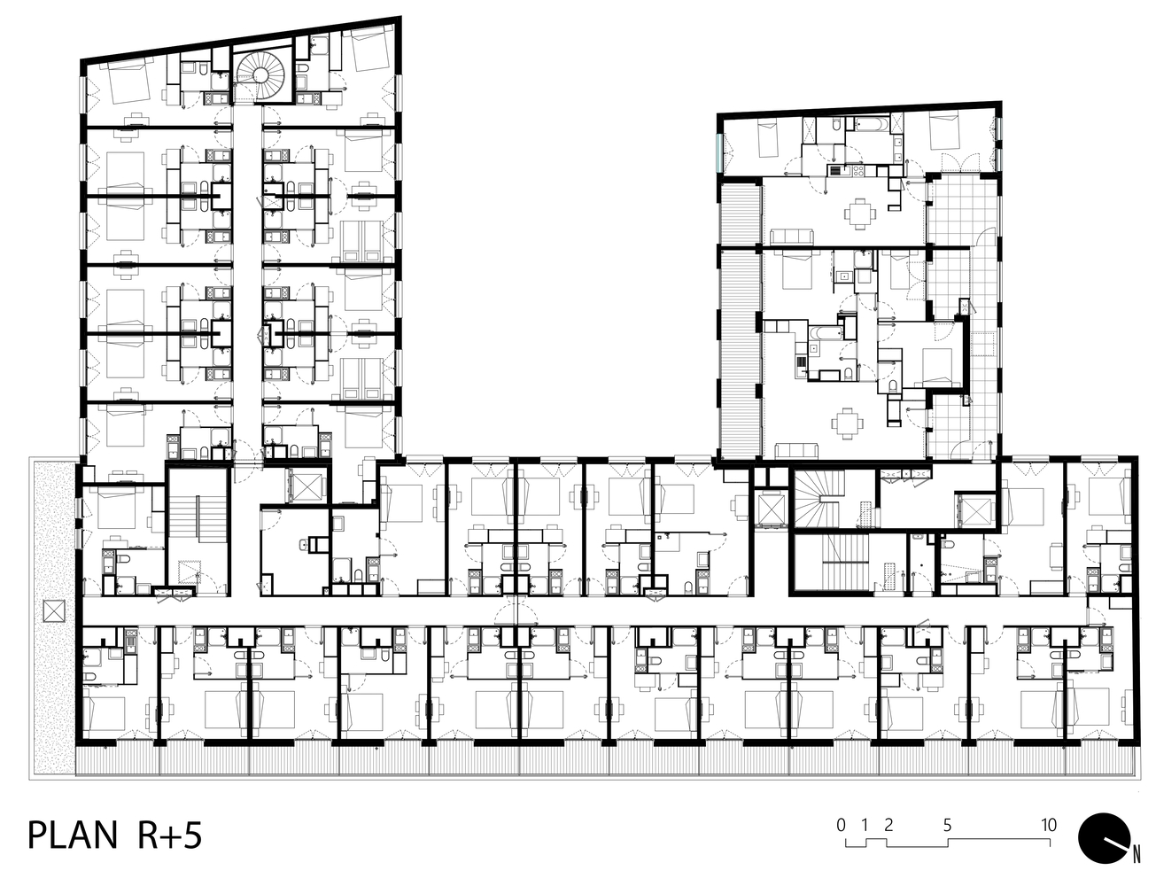
法国公寓式酒店和公寓平面图
法国公寓式酒店和公寓平面图
法国公寓式酒店和公寓平面图
法国公寓式酒店和公寓平面图
法国公寓式酒店和公寓平面图
法国公寓式酒店和公寓平面图
法国公寓式酒店和公寓平面图
法国公寓式酒店和公寓平面图
法国公寓式酒店和公寓剖面图
法国公寓式酒店和公寓剖面图
法国公寓式酒店和公寓立面图
法国公寓式酒店和公寓立面图
法国公寓式酒店和公寓立面图
客服
消息
收藏
下载
最近





























