查看完整案例

收藏

下载
项目名称:摩洛哥深C精品酒店位置:摩洛哥
设计公司:BO工作室
该项目发生在Imsouane村。这是摩洛哥南部索维拉和阿加迪尔之间的一个小渔村。这个村庄是全世界冲浪爱好者的著名去处。他们称之为“魔法湾”。该项目是一个精品酒店,位于魔术湾前的悬崖上。除了位于前线,这座建筑还高出海平面30米。沿着通往Imsouane的国道,我们可以看到这些被beigeish石灰石围墙包围的农田,这些围墙简单地叠放在一起。这是该项目的概念的触发,即地层的工作,第一个体积包含3个较低的水平,悬垂的白色体积包含最后一个较高的楼层。该项目的特殊性在于,它是两个相邻的建筑,是一个R+1,有两个可开发的地下室。从街上看,这座建筑看起来只有两层,而从海边看,有4层可用。这个项目的难点是挖掘石灰石悬崖,让建筑的两个地下室面向大海。这座建筑的整个结构是用混凝土建造的。因为这两个相邻的建筑,某些东西被共享,如楼梯井,或某些服务,如瑜伽室,大堂,或建筑物的休息室。
由于这种汇集,我们能够创建一个天窗,从屋顶到最后一个地下室穿过建筑,为不同的住宅单元带来自然的顶光和自然通风。主要入口在底层,也就是倒数第三层。20个住房单元位于建筑的3个上层。所有这些单元都可以看到“神奇海湾”。该项目的原则是创造一个有几个面向大海的住宅单元的建筑。该建筑提供通往屋顶的通道,带有一个室外酒吧、一个瑜伽区和一个欣赏地平线的休息室。该建筑还提供了进入最后一个地下室的公共区域的通道,其中有厨房、餐饮区、瑜伽室、桑拿浴室和浴室、休息室以及围绕着无限泳池的主露台。使用的材料大相径庭。Zellige beldi涂料用于所有潮湿的房间、厨房和浴室,也用于卧室、更衣室和某些走廊。此外,楼板并没有完全被假天花板覆盖,从而暴露出原始混凝土模板的纹理。这座建筑的所有木制品都是由直接来自巴厘岛的外来木材制成的。游泳池也被巴厘岛的绿色石头覆盖。除了地板覆盖着beldi zellige,建筑的其余部分覆盖着3米×1.5米的陶瓦。
摩洛哥深C精品酒店外部实景图
摩洛哥深C精品酒店外部实景图
摩洛哥深C精品酒店外部实景图
摩洛哥深C精品酒店外部实景图
摩洛哥深C精品酒店外部实景图
摩洛哥深C精品酒店外部实景图
摩洛哥深C精品酒店外部实景图
摩洛哥深C精品酒店外部实景图
摩洛哥深C精品酒店外部实景图
摩洛哥深C精品酒店外部实景图
摩洛哥深C精品酒店内部实景图
摩洛哥深C精品酒店内部实景图
摩洛哥深C精品酒店内部实景图
摩洛哥深C精品酒店内部实景图
摩洛哥深C精品酒店内部实景图
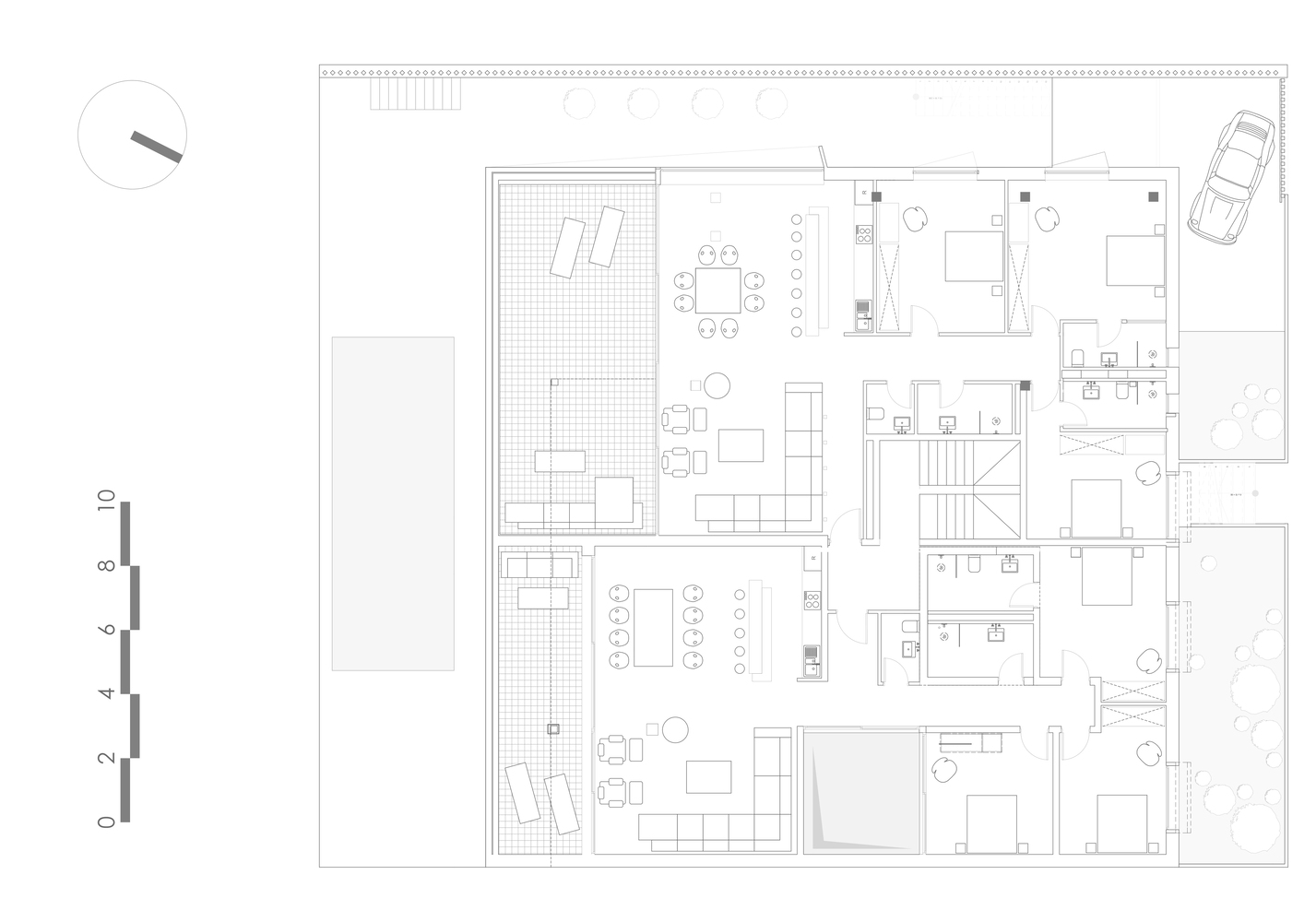
摩洛哥深C精品酒店平面图
摩洛哥深C精品酒店平面图
摩洛哥深C精品酒店平面图
摩洛哥深C精品酒店平面图
摩洛哥深C精品酒店立面图
摩洛哥深C精品酒店立面图
摩洛哥深C精品酒店立面图
摩洛哥深C精品酒店立面图
客服
消息
收藏
下载
最近


























