查看完整案例

收藏

下载
项目名称:日本草津温泉旅馆
位置:日本
设计公司:隈研吾建筑都市设计事务所
建筑师在群马县知名的草津温泉设计了一栋单间旅馆。建筑一层的餐厅直接面向温泉场地。通过在外墙上镶嵌来自温泉的Asama石,建筑与景观结合成为了一片立体的风景。为了进一步与景观达到和谐,弧形的几何形状呼应了缓缓流动的温泉水,体现了建筑师对当地材料的运用技巧。室内,Asama水磨石、日式和纸和碎石等当地材料被混合在一起。湿区铺设的瓷砖常用于温泉地面。通过材料和温泉几何元素的运用,草津古城的物质性被凝聚在了这座小小的建筑之中。
日本草津温泉旅馆外部实景图
日本草津温泉旅馆外部实景图
日本草津温泉旅馆外部实景图
日本草津温泉旅馆外部实景图
日本草津温泉旅馆外部实景图
日本草津温泉旅馆外部实景图
日本草津温泉旅馆内部实景图
日本草津温泉旅馆内部实景图
日本草津温泉旅馆内部实景图
日本草津温泉旅馆内部实景图
日本草津温泉旅馆内部实景图
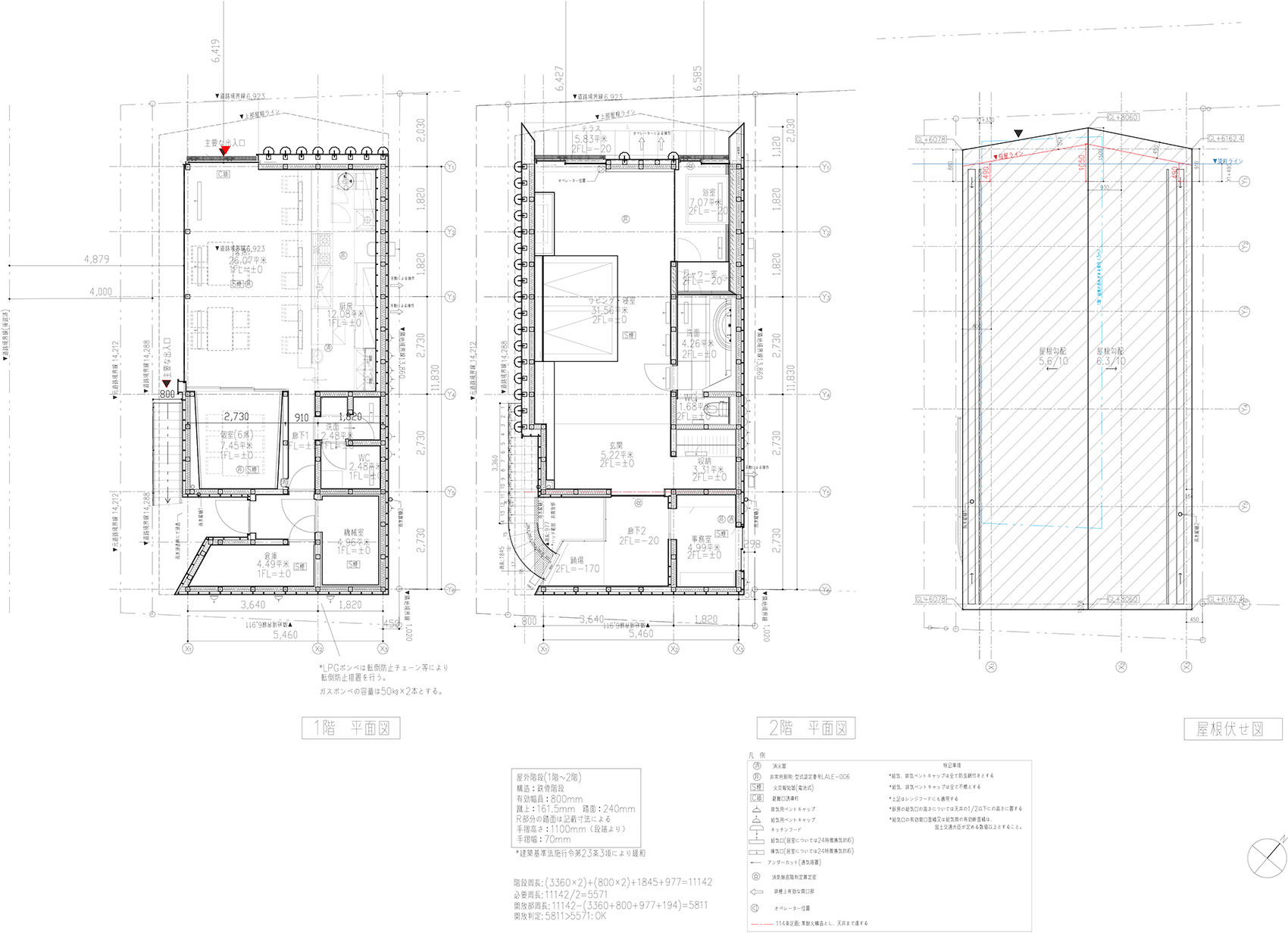
日本草津温泉旅馆平面图
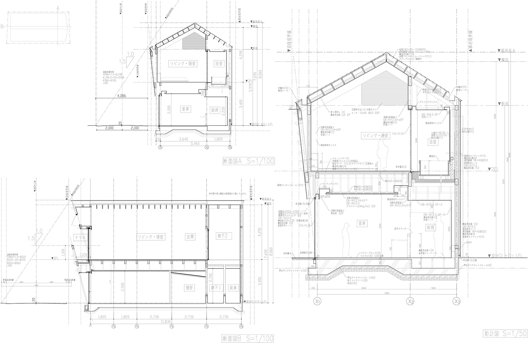
日本草津温泉旅馆剖面图
日本草津温泉旅馆剖面图
客服
消息
收藏
下载
最近

















