查看完整案例

收藏

下载
项目名称:荷兰法尔肯堡美居酒店
位置:荷兰
设计公司:MoederscheimMoonen Architects
照片:Bart van Hoek , Gerlach Delissen
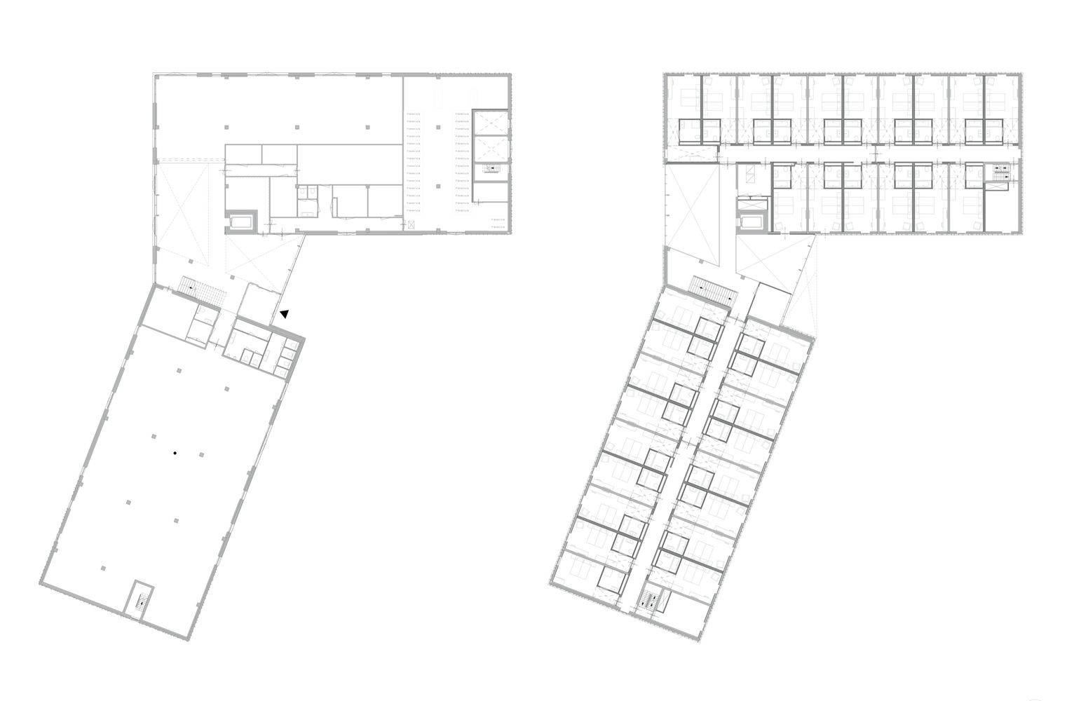
在南林布格丘陵中心的法尔肯堡市,您会找到 Par'Course 体验中心。MoederscheimMoonen Architects 受项目开发商 Wyckerveste 委托,设计了美居酒店所在的混合用途环境。Par'Course 由一个古老啤酒厂的美食中心、一个自行车和体育中心以及 Shimano 体验中心和美居酒店组成。旧 Leeuw 啤酒厂旧址的重建是一个机会,可以在一个特殊的地方以一个新的概念来加强Valkenburg现有的经济和文化。在 Par'Course 的最东部,您会找到酒店。该建筑的主要形状是游荡的,因此在城市设计理念中发挥着重要作用。这座建筑沿着 Geul 河的曲线,以垂直的角度创造了两个广场:主广场和酒店入口广场。从概念上看,这座建筑在城市设计的结构中扮演着重要的角色,因此被赋予了带有屋顶设计的传统主体形状。
精心设计的木质外墙赋予建筑现代气息。由于水平截面,夹层楼是可见的。酒店客房窗户上的垂直木肋已被切掉。在酒店中,MoederscheimMoonen 设计了一个独特的外壳,运营商在其中为 Black Label Hotels 打造了充满活力的内部空间,包括位于底层的一家大型餐厅。自行车赛运动也在酒店中发挥了重要作用。有更衣室和淋浴间以及清洁自行车并将它们安全地停在一楼的地方。 酒店对面是自行车中心所在的大楼,该中心是该地区最大的出行企业之一,在林堡各地组织自行车活动。该建筑遵循酒店的类比。它是场地围墙的一部分,通过物化,被认为是整体中的一个新元素。与酒店和旧别墅一起,形成了一个温馨的入口广场。
荷兰法尔肯堡美居酒店外部实景图
荷兰法尔肯堡美居酒店外部实景图
荷兰法尔肯堡美居酒店外部实景图
荷兰法尔肯堡美居酒店外部实景图
荷兰法尔肯堡美居酒店外部实景图
荷兰法尔肯堡美居酒店外部实景图
荷兰法尔肯堡美居酒店外部实景图
荷兰法尔肯堡美居酒店内部实景图
荷兰法尔肯堡美居酒店内部实景图
荷兰法尔肯堡美居酒店内部实景图
荷兰法尔肯堡美居酒店平面图
荷兰法尔肯堡美居酒店平面图
荷兰法尔肯堡美居酒店剖面图
荷兰法尔肯堡美居酒店立面图
客服
消息
收藏
下载
最近

















