查看完整案例

收藏

下载
项目名称:巴西法萨诺BH酒店
位置:巴西
建筑师:贝尔纳德斯·阿奎蒂图拉
法萨诺必和必拓酒店诞生于典型的米纳斯吉拉斯的混合影响,其品牌为企业游客和前来旅游的人提供了复杂的简单性。从米纳斯吉拉斯历史名城的氛围到横跨陶土花瓶、甜罐铜和殖民地家具古色的色彩和纹理调色板,其建筑以谨慎为特征,将米纳斯吉拉斯的质朴与合法态度相结合。当代和城市。这家酒店位于卢尔德(Lourdes)附近,以高标准的美食和商业而闻名,它是根据一栋已经在地面上的建筑结构设计的,该建筑连接了两条街道,形成了一个“L”。一个邻近的地点被附加到酒店,允许创建一个大堂,具有壮观的高度和自然采光。它的入口是沿着一堵用粘土砖穿孔的墙建造的,稍微倾向于土地的内部,邀请客人和普通公众来享受盖罗餐厅和巴雷托酒吧的活动。在穿孔和光滑表面上交替出现的Corten铝板覆盖并统一了现有结构。那些形成房间窗户和循环的斜坡给立面带来了更大的节奏和深度。酒店的内饰结合了Fasano品牌的精致和回忆米纳斯吉拉斯殖民地历史的元素,同时又不放弃舒适和品质。织布机、粗木、铜锈、皂石、裸露的砖块和其他传统材料将贝尔纳德斯·阿奎蒂塔拉和来自不同时代的巴西设计师的作品结合在一起,提供了一个永恒的环境,尽管受到了丰富的当地剧目的深刻影响。
巴西法萨诺BH酒店外部实景图
巴西法萨诺BH酒店内部实景图
巴西法萨诺BH酒店内部实景图
巴西法萨诺BH酒店内部实景图
巴西法萨诺BH酒店内部实景图
巴西法萨诺BH酒店内部实景图
巴西法萨诺BH酒店内部实景图
巴西法萨诺BH酒店内部实景图
巴西法萨诺BH酒店内部实景图
巴西法萨诺BH酒店内部实景图
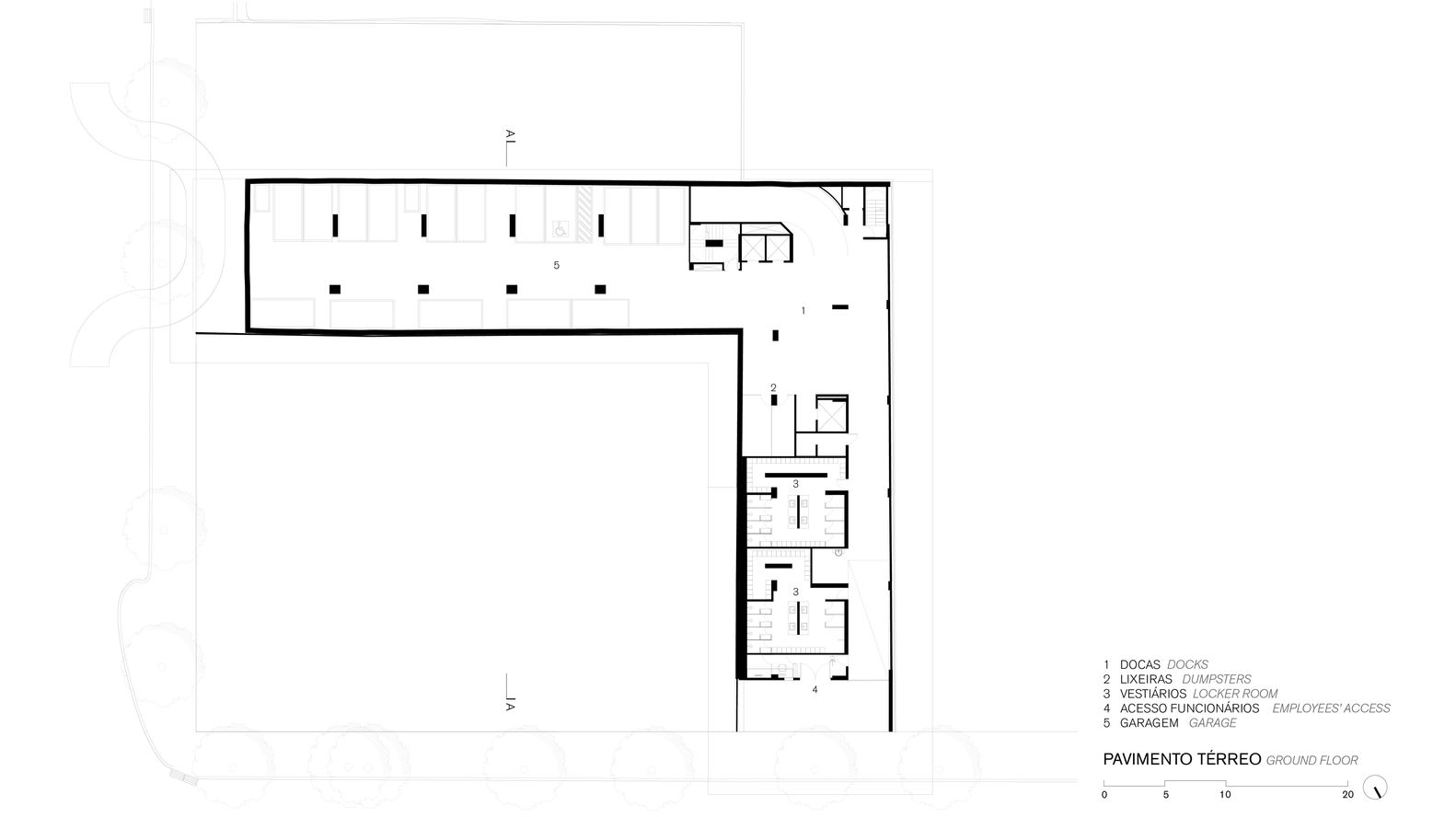
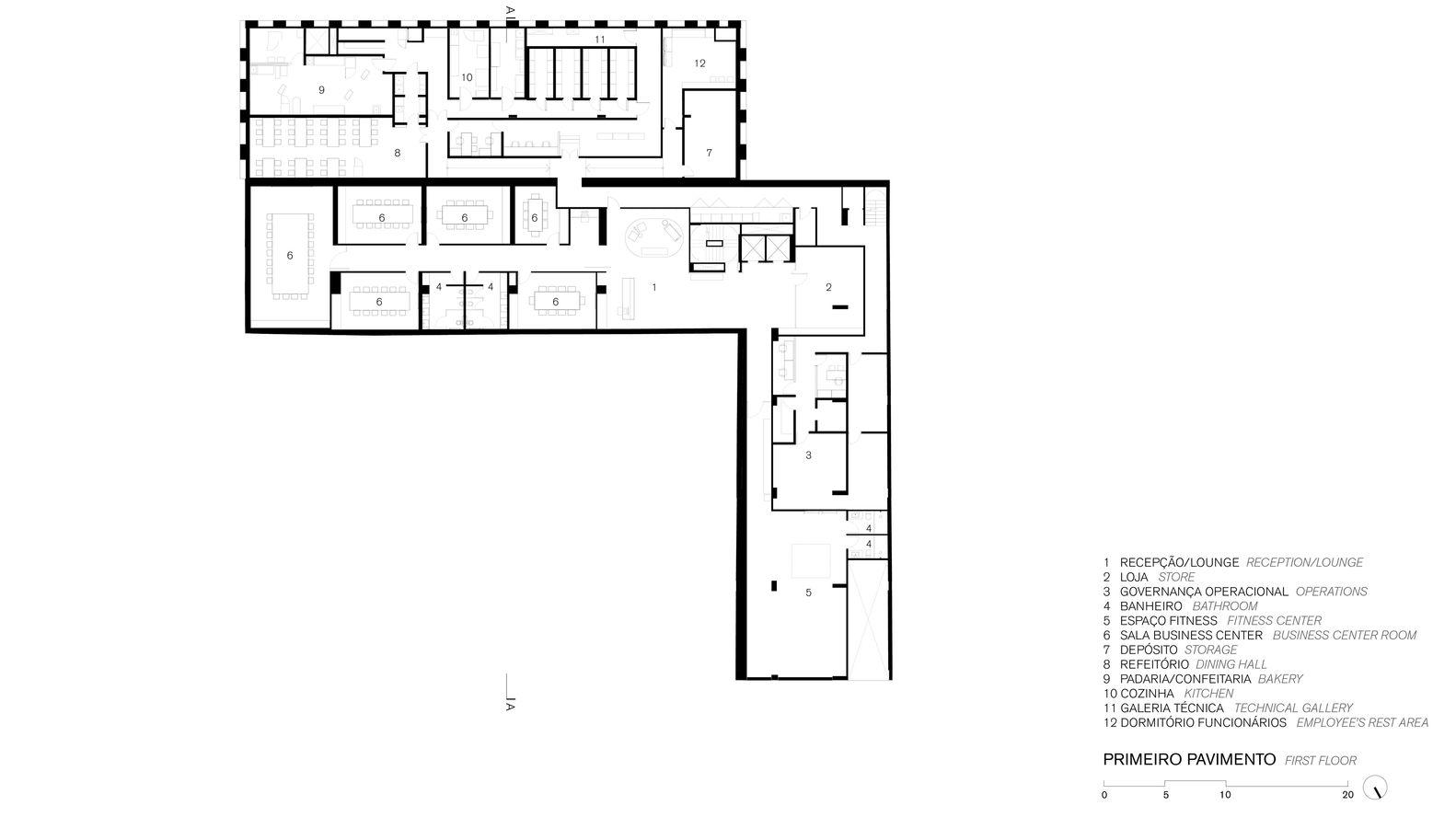
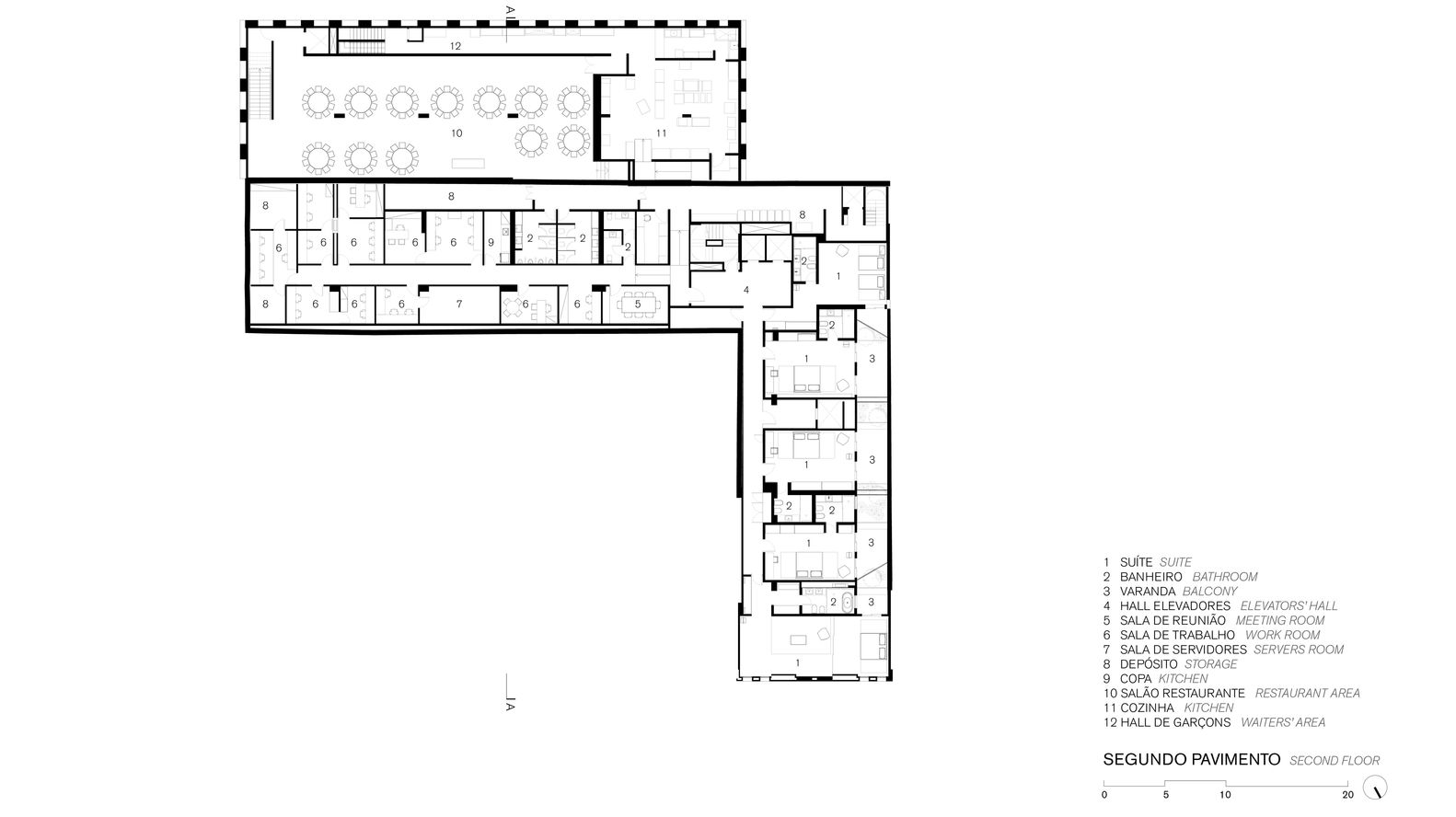
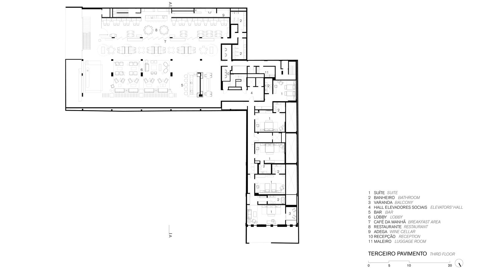
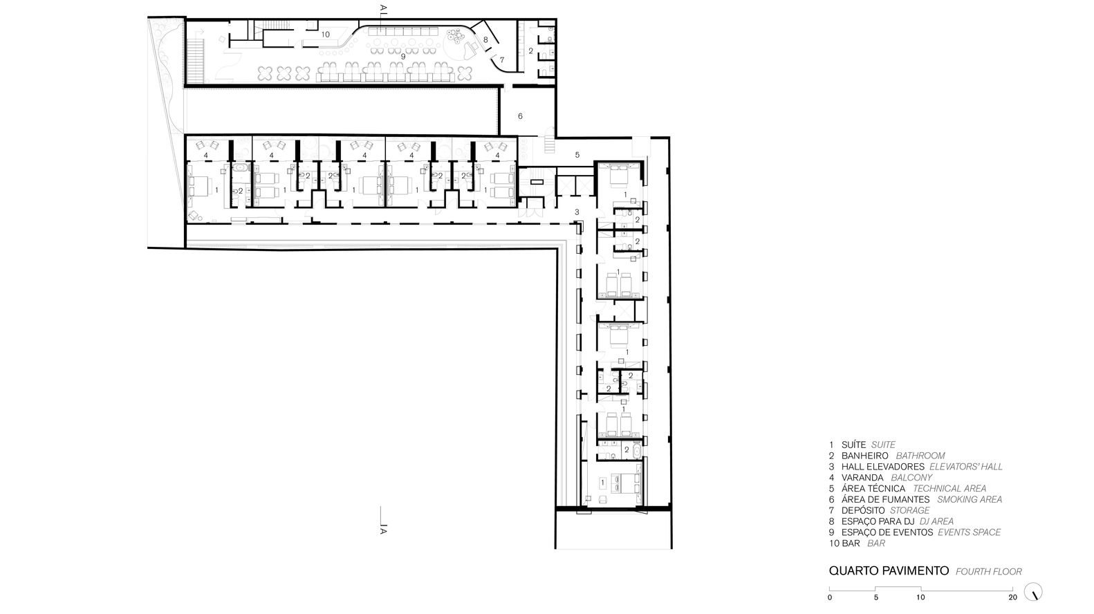
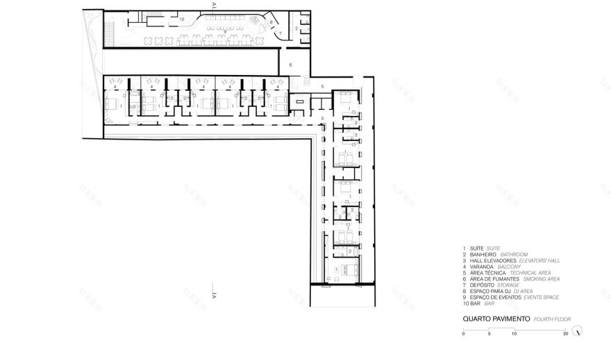
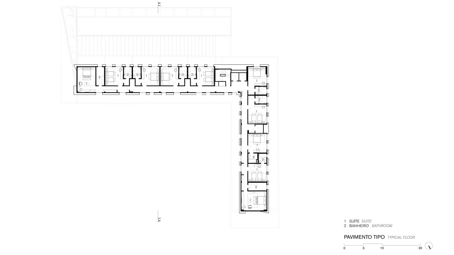
巴西法萨诺BH酒店平面图
巴西法萨诺BH酒店平面图
巴西法萨诺BH酒店平面图
巴西法萨诺BH酒店平面图
巴西法萨诺BH酒店平面图
巴西法萨诺BH酒店平面图
巴西法萨诺BH酒店平面图
巴西法萨诺BH酒店平面图
巴西法萨诺BH酒店剖面图
客服
消息
收藏
下载
最近






















