查看完整案例

收藏

下载
项目名称:北京魔尔艺术主题酒店
位置:北京
设计公司:朗奥建筑
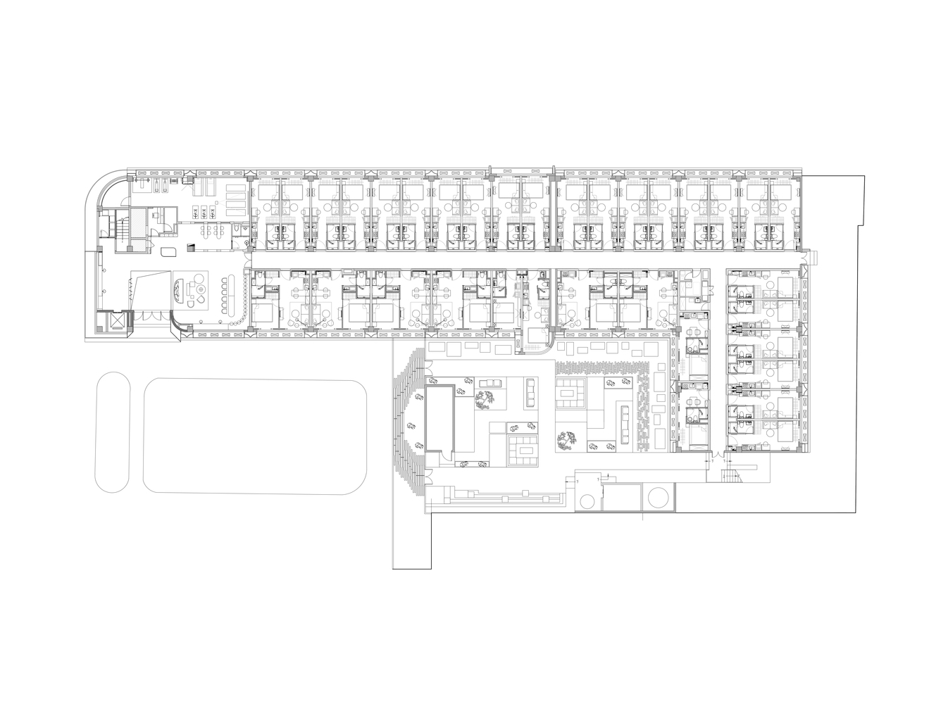
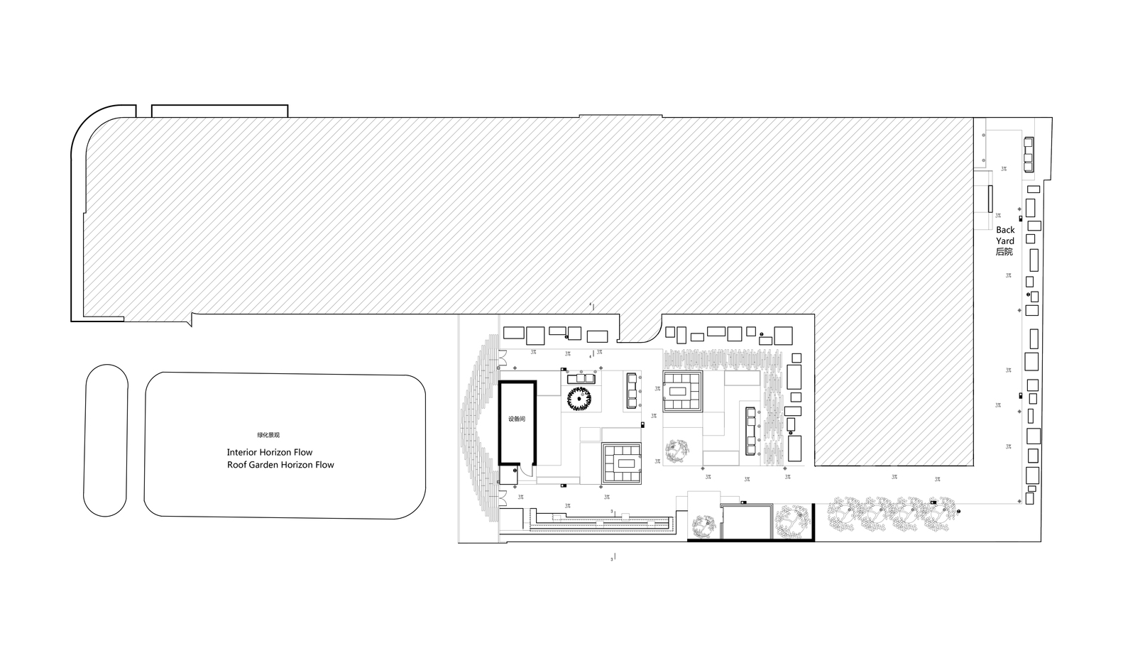
通过在场研究,让新的城市居民能够呈现和恢复到市井烟火气的生活场景中。魔尔公寓项目不止于设计,编织生活哲学,编织魔尔和城市未来的故事。建筑主体结构是一座70年代废弃多年的的纺织厂仓库。用“编织与连接”的概念将老建筑唤醒新生命的设计主旨展开,老去的城市功能构筑物转化为在创意文化区内的精品艺术家主题公寓酒店,空间将历史与社区未来生活场景编制交错,重温场地记忆。项目位于北京市朝阳区半截塔村53号,该项目建设规划用地面积2080㎡,其中景观用地面积为506㎡,建筑占地面积1250㎡。建筑总面积3820.06㎡,共112间客房,公区220㎡。原建筑平面布局为“L”形,由两个厂房组成,总建筑高11.6m。改造过程中采用竖向构件将仅有三层的建筑形体在视觉上拉高比例,同时利用室外空调机位横上布置将原建筑墙面无规律的造型变化进行遮挡;竖横立面构件形成编织的立面图案。主入口为两层挑空空间,并利用深灰色钢板搭建入口雨棚设计;色彩上外立面大面积采用浅灰色肌理漆与深灰色金属构件对比。本项目拥有506㎡私享庭院,利用植物、砾石、铺地划分出独立休闲区、景观台阶,供不同需求及场景氛围使用。庭院作为开放空间也是共享乌托邦概念的社区延伸。
北京郎园魔尔项目,公共区域室内面积220平方米左右。项目本身首要着眼于空间功能性与仪式感的风格相统一,空间中使用拱形及弧形弱化了空间的区域分割,使各功能区域连接在一起。空间规划着重于空间的开放性和互动性。项目室内公区本身面积并不是很大,整体空间布局除必要性封闭空间,更多的采用开放式空间布局。功能包括接待台、休闲区、水吧台、健身房、洗衣房、等候区等,兼具社交性及多功能性,可作为临时的活动场所,如路演及分享会场所。空间主要以复古风为主题,根据主题风格提炼出拱形元素,分别在硬装家具、软装家具、硬装造型中使用拱形及弧形弱化了空间的区域分割,使各功能区域连接在一起,形成统一的主题风格;在空间色调选则也紧扣主题,户型主要分为暖阳灰户型、釉彩蓝户型;整体的软装设计在与室内风格相统一的同时,更注重舒适及实用性。整体的软装设计在着重与室内风格相统一,在空间中通过软装的面料及形式软化整体空间的感觉,使空间的风格更加温暖。家具的多变性增加空间的使用率,同时和硬装家具相结合。灯具的在装饰性之外,更加注重它的功能性。
北京魔尔艺术主题酒店外部实景图
北京魔尔艺术主题酒店外部实景图
北京魔尔艺术主题酒店外部实景图
北京魔尔艺术主题酒店外部实景图
北京魔尔艺术主题酒店外部实景图
北京魔尔艺术主题酒店外部实景图
北京魔尔艺术主题酒店外部实景图
北京魔尔艺术主题酒店内部实景图
北京魔尔艺术主题酒店内部实景图
北京魔尔艺术主题酒店内部实景图
北京魔尔艺术主题酒店内部实景图
北京魔尔艺术主题酒店内部实景图
北京魔尔艺术主题酒店内部实景图
北京魔尔艺术主题酒店内部实景图
北京魔尔艺术主题酒店内部实景图
北京魔尔艺术主题酒店内部实景图
北京魔尔艺术主题酒店平面图
北京魔尔艺术主题酒店平面图
北京魔尔艺术主题酒店平面图
北京魔尔艺术主题酒店平面图
北京魔尔艺术主题酒店平面图
北京魔尔艺术主题酒店立面图
北京魔尔艺术主题酒店立面图
北京魔尔艺术主题酒店立面图
北京魔尔艺术主题酒店立面图
客服
消息
收藏
下载
最近




























