查看完整案例

收藏

下载
项目名称:日本油濑户田附近的酒店
位置:日本
设计公司:Horiuchi Inatomi Architects
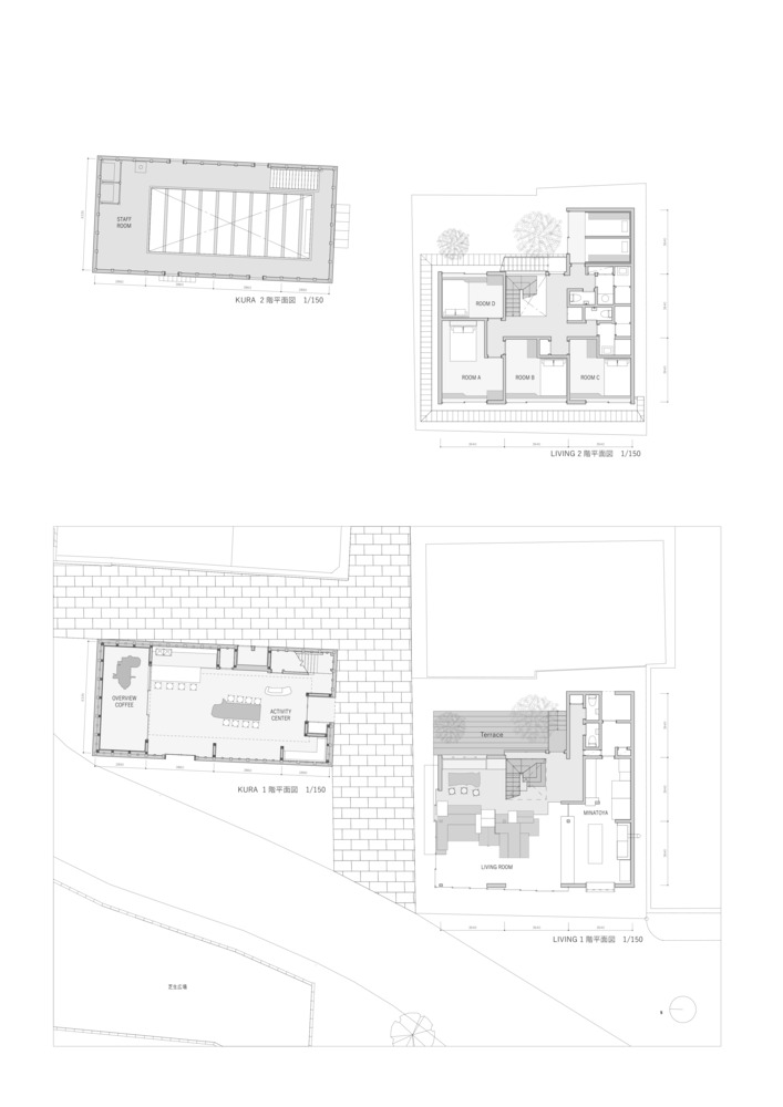
作为岛波海道沿岸岛屿濑户田町尾道市广岛地区振兴项目的一部分。位于濑户田港附近,是通往潮町商店街的门户的两栋建筑群。旅游信息中心是一座拥有 140 年历史的土藏仓库改造,在保留曾经是岛上繁荣象征的外观的同时,通过内部和抗震改造,它已成为可持续发展的建筑。餐厅是从海边到露台的阶梯式空间,人们可以轻松进入,成为一个像小镇客厅一样的地方。从外部看,我们的目标是将人们创造的风景打造成一个新的地标。2楼的酒店有大窗户,人们可以欣赏到前面的濑户田水道。
日本油濑户田附近的酒店外部实景图
日本油濑户田附近的酒店外部实景图
日本油濑户田附近的酒店外部实景图
日本油濑户田附近的酒店外部实景图
日本油濑户田附近的酒店外部实景图
日本油濑户田附近的酒店内部实景图
日本油濑户田附近的酒店内部实景图
日本油濑户田附近的酒店内部实景图
日本油濑户田附近的酒店内部实景图
日本油濑户田附近的酒店内部实景图
日本油濑户田附近的酒店内部实景图
日本油濑户田附近的酒店平面图
日本油濑户田附近的酒店剖面图
日本油濑户田附近的酒店剖面图
客服
消息
收藏
下载
最近

















