查看完整案例

收藏

下载
项目名称:舟山东极尘曦民宿
位置:舟山
设计公司:介隐建筑
“尘曦”民宿是一对80后夫妇在中国大陆东端岛屿的理想家园,民宿原为岛中央山腰上的一处原生的石头民舍。坐看潮起云涌、历经风雨洗礼,石头民舍成就了质朴的海岛文化和岁月沉淀的美。而“在地民居”和“自然肌理”正是 “尘曦”民宿设计的切入点。本案最大程度地保留了老建筑的石墙、木楼板和木屋架、灰瓦的坡屋顶,营造朴素原生的居住空间。同时,在一层入口插入白色体块,使原本分离的公共空间串联而具有纵深感;在大堂中央设置室外中庭,调节采光和气氛;通过框架结构,在三层架空多个白色体块,并对应景观使其方向做了扭转变化;三层以上形成屋顶平台,以满足无边泡池、露天剧场、聚会空间等配套功能。新部分营造当下民宿较高品质的功能体验,老部分保留当地建筑的风貌特征。新老之间目的明确,产生戏剧的对立关系。又依靠中庭、楼梯和挑高的灰空间,将这种分层的冲突模糊并试图调和,最终达到空间上的统一和稳定。
舟山东极尘曦民宿外部实景图
舟山东极尘曦民宿外部实景图
舟山东极尘曦民宿外部实景图
舟山东极尘曦民宿外部实景图
舟山东极尘曦民宿外部实景图
舟山东极尘曦民宿外部实景图
舟山东极尘曦民宿外部实景图
舟山东极尘曦民宿外部实景图
舟山东极尘曦民宿外部实景图
舟山东极尘曦民宿外部实景图
舟山东极尘曦民宿外部实景图
舟山东极尘曦民宿外部实景图
舟山东极尘曦民宿外部实景图
舟山东极尘曦民宿内部实景图
舟山东极尘曦民宿内部实景图
舟山东极尘曦民宿内部实景图
舟山东极尘曦民宿内部实景图
舟山东极尘曦民宿内部实景图
舟山东极尘曦民宿内部实景图
舟山东极尘曦民宿内部实景图
舟山东极尘曦民宿内部实景图
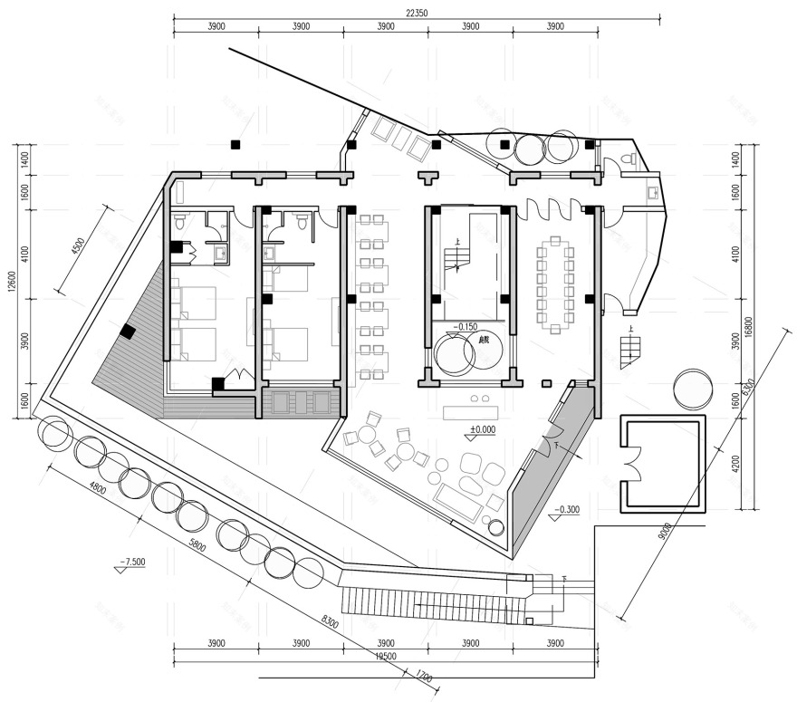
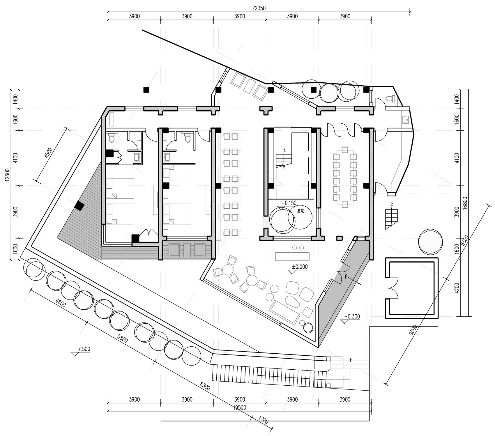
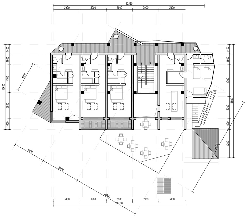
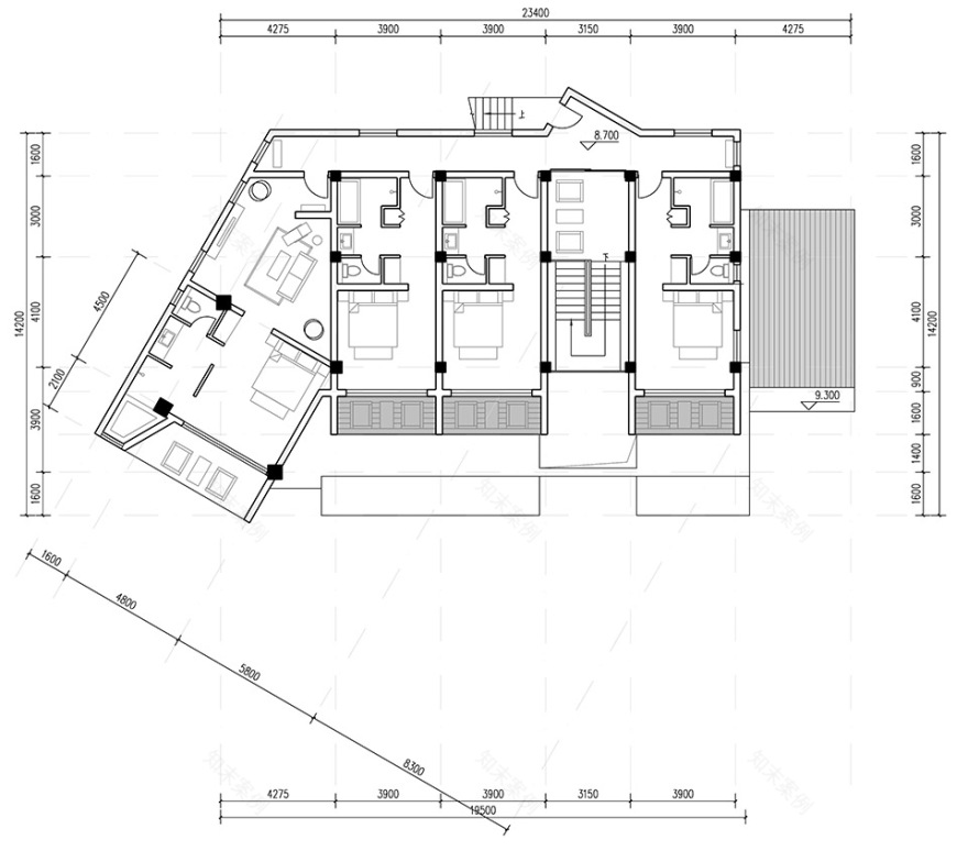
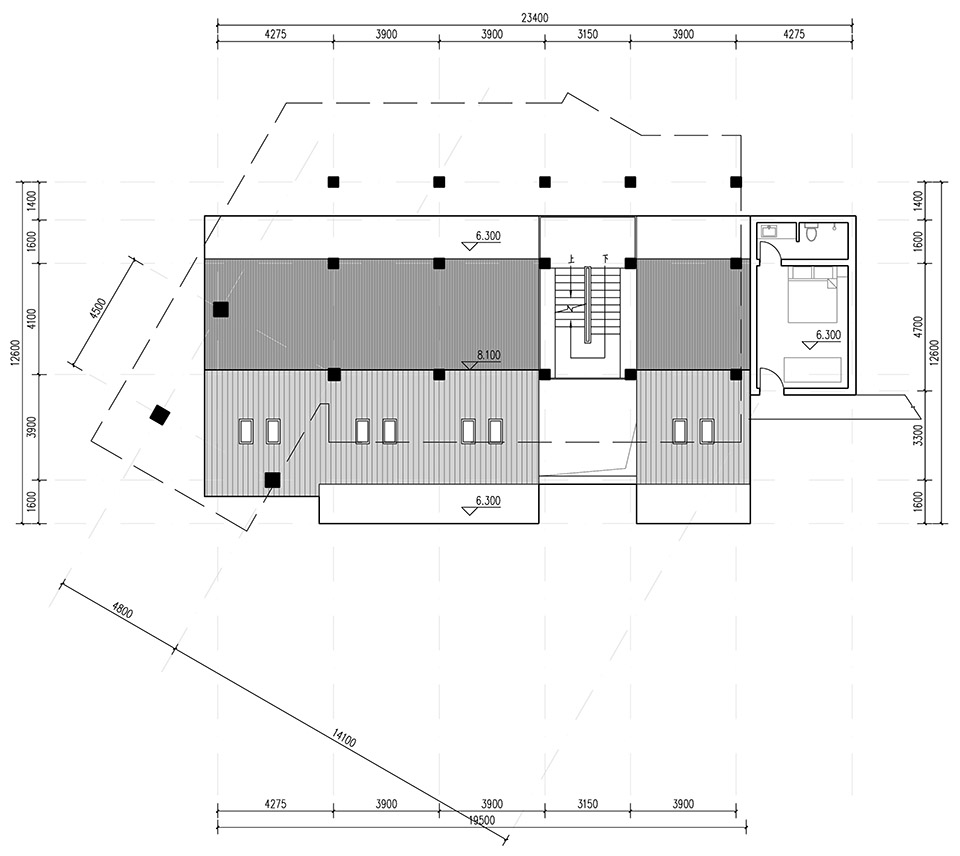
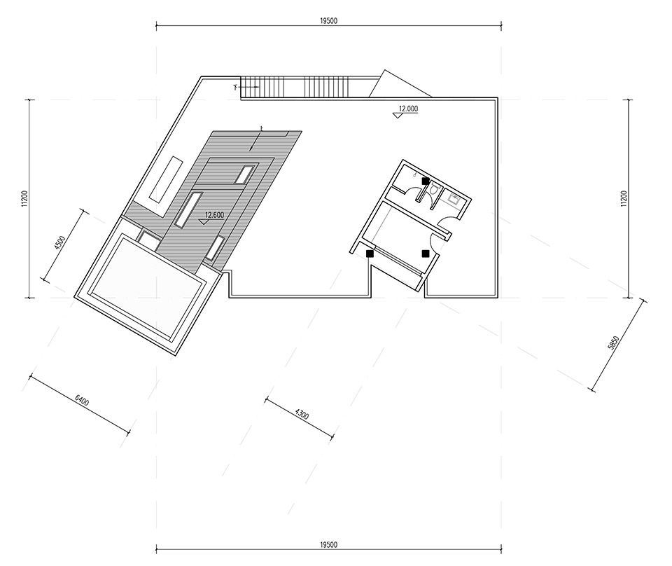
舟山东极尘曦民宿平面图
舟山东极尘曦民宿平面图
舟山东极尘曦民宿平面图
舟山东极尘曦民宿平面图
舟山东极尘曦民宿平面图
舟山东极尘曦民宿平面图
舟山东极尘曦民宿剖面图
客服
消息
收藏
下载
最近































