查看完整案例

收藏

下载

翻译
Firm: AI2 Design
Type: Residential › Private House
STATUS: Built
YEAR: 2020
SIZE: 5000 sqft - 10,000 sqft
BUDGET: Undisclosed
The design idea was to project a floating roof containing the volumes that will interconnect with a detailed management of the architectural tectonics and provides a respectful solution to the immediate surroundings.
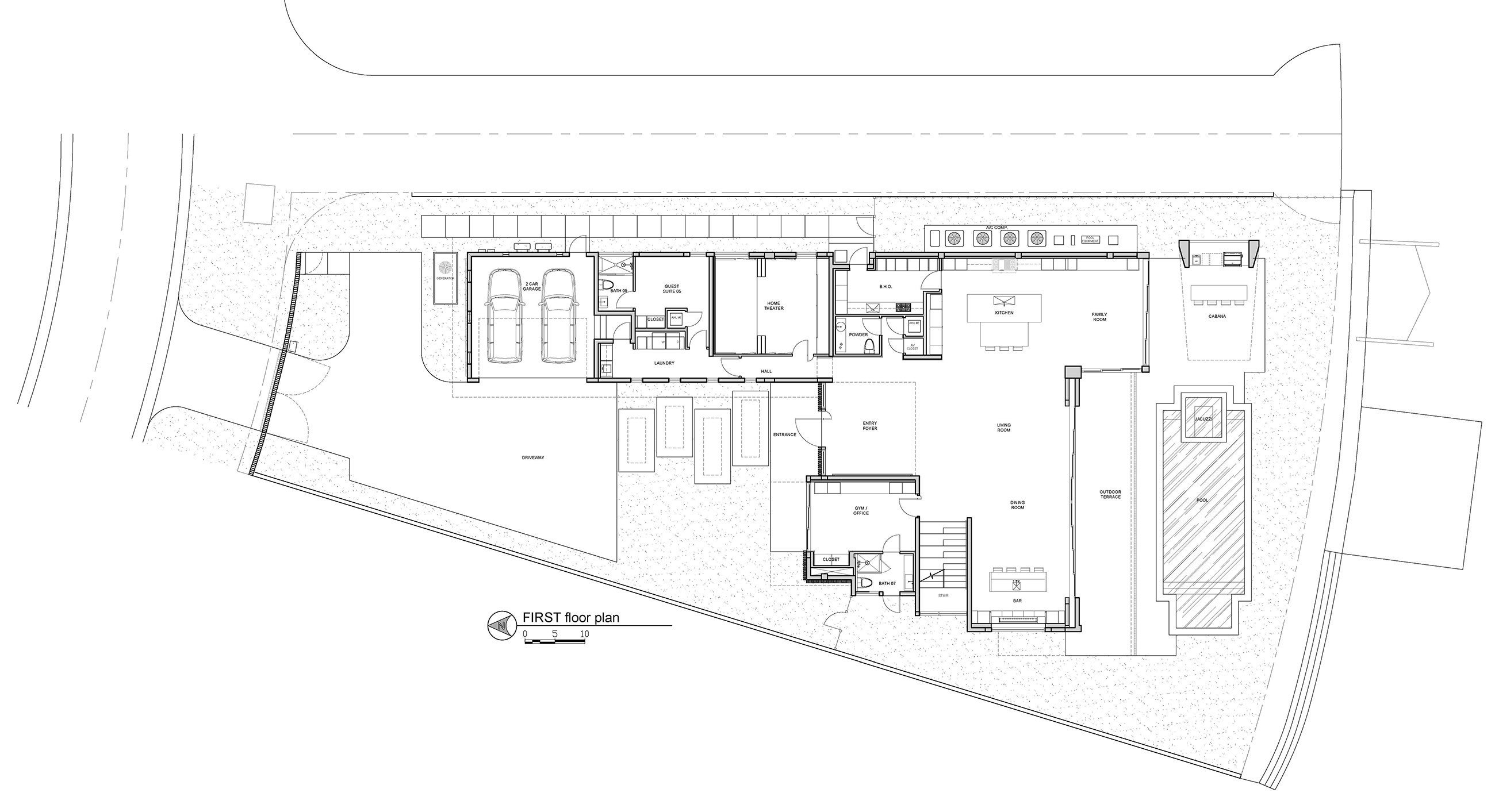
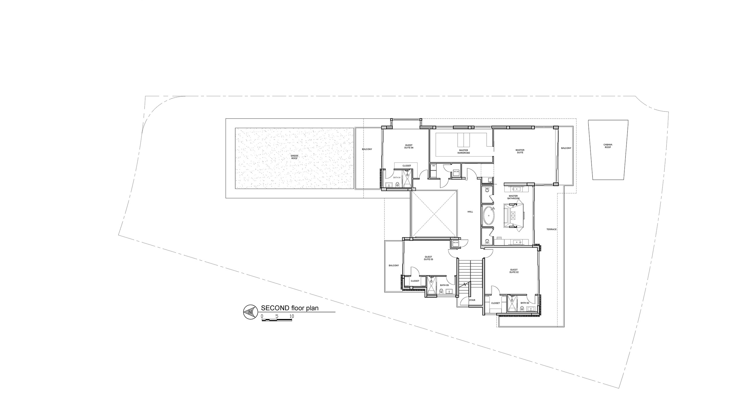
105' Waterfront lot width sits on the south tip of San Marino Island, where we take advantage of this location to provide a roof deck where you have a clear view of Miami Skyline.
Our proposed design volumetric provides 12’-0” clear ceilings on the 1st floor and 10’-6” on the 2nd floor, with a double-height ceiling on the main entrance that provides a dramatic impact.
The distinguish Interior Design studio Dunagan Diverio Design Group delivered an exquisite interior quality that works specifically with the main design intent allowing to celebrate a genuine Miami lifestyle for this luxury residence.
Working remarkably close with Lighting design studio Apure to provide a magnificent detailed ceiling with AC diffusers and Porsche Design Studio lights where kitchen and bathrooms by Italian manufacture Boffi, shine up in an accurate and scaled space.
The residence provides 6 bedrooms, 6.5 bathrooms, Home theater, Main & Service Kitchen, 2 Car Garage with Tesla Chargers and Subzero/Wolf appliances.
客服
消息
收藏
下载
最近



























