查看完整案例

收藏

下载
项目名称:上海千墨民宿
位置:上海
设计公司:偏离设计
千墨(HOUSE OF MO)位于上海浦东川沙新镇,临近迪士尼度假区,周边建筑多为上世纪七八十年代所建,几经变迁,整个镇子呈现混乱与无序的状态。第一次勘察场地,门前巨大的稻田占据了整个视野,田边水杉的竖向线条与稻田所形成的几何感呈现出塞尚般的画面。建筑所占据的独特地理位置给这个场地提供了一个很好的景观支撑。原建筑为4幢上世纪80现代居民楼,砖体预制板结构,外加东西各一幢两层瓦房,原有的宅基地限定出了建筑的红线范围,也使整个建筑边界框定在了长条形的体积内。设计之初,希望最终矗立在稻田尽头的不单单只是个民宿,而是带有某种精神性感知的建筑物。因此摒弃了传统民宿的固有概念,选用带有凝聚性力量的黑色作为建筑的主基调,极简的建筑形态与周边混乱的建筑肌理形成对立美学,以守望者的姿态出现在稻田尽头,打开一种全新的日常体验。考虑到原有建筑结构的脆弱性和混乱的表皮肌理,决定从建造这一思考逻辑出发,对建筑进行由结构至形体的整体改建。
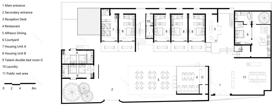
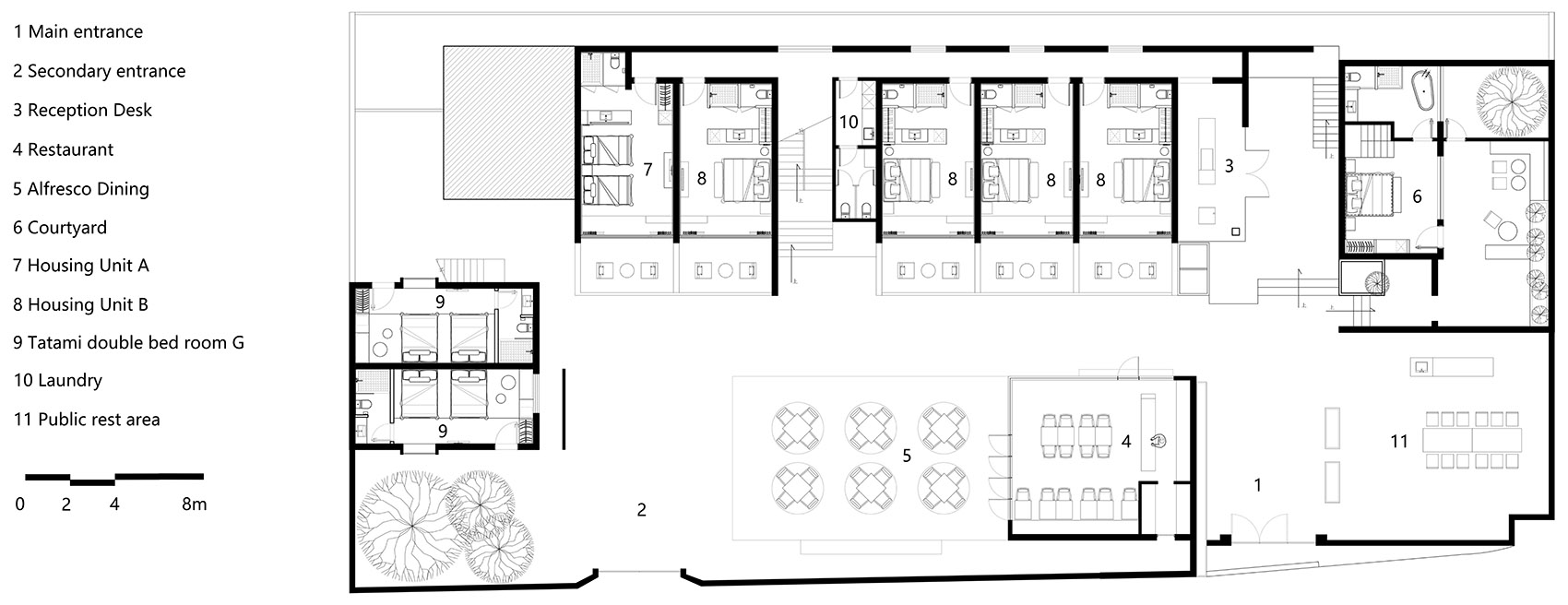
强化结构保证建筑稳定性,简化形体,以纯粹回应眼前的这片稻田。作为主体的长条形建筑体,在4m*9m的开间模度下,强化地基,增加钢筋混凝土立柱作为结构支撑,同时依据南北方位界定出辅助空间与使用空间两大区域,将房间按4m的柱间距模度在南面依次排开,给入住者提供最佳的景观支持。餐厅部分沿用整体的黑色基调,在8m*8m的建筑红线内,利用对角拉出整个屋面的受力结构体,使整个屋面呈现悬浮感,斜面的处理也弱化了由于尺度限制所带来的空间局促感,在视觉上形成多维度的空间纵深感。将辅助空间作为整个建筑的通道路径,串联起各个功能区,受制于场地条件,通道呈现狭长的形态,设计上,以纯白色柔和光线不足带来的幽闭感,二层部分使用了挑高处理,增加空间的层次,顶面狭长的天窗将自然光线引入通道,给行走的路径带来一份不确定的惊喜。作为主体的住宿空间,采用模块化设计方式,在节约成本的同时方便施工管理,17个房间共分5个模块处理,用极简的手法与建筑形成统一关系。
上海千墨民宿外部实景图
上海千墨民宿外部实景图
上海千墨民宿外部实景图
上海千墨民宿外部实景图
上海千墨民宿外部实景图
上海千墨民宿外部实景图
上海千墨民宿外部实景图
上海千墨民宿外部实景图
上海千墨民宿外部实景图
上海千墨民宿外部实景图
上海千墨民宿外部实景图
上海千墨民宿外部实景图
上海千墨民宿外部实景图
上海千墨民宿内部实景图
上海千墨民宿内部实景图
上海千墨民宿内部实景图
上海千墨民宿内部实景图
上海千墨民宿内部实景图
上海千墨民宿内部实景图
上海千墨民宿内部实景图
上海千墨民宿内部实景图
上海千墨民宿内部实景图
上海千墨民宿内部实景图
上海千墨民宿内部实景图
上海千墨民宿内部实景图
上海千墨民宿内部实景图
上海千墨民宿内部实景图
上海千墨民宿内部实景图
上海千墨民宿内部实景图
上海千墨民宿内部实景图
上海千墨民宿内部实景图
上海千墨民宿内部实景图
上海千墨民宿内部实景图
上海千墨民宿平面图
上海千墨民宿平面图
上海千墨民宿平面图
上海千墨民宿剖面图
客服
消息
收藏
下载
最近








































