查看完整案例

收藏

下载
项目名称:西班牙索米特鲁特酒店
位置:西班牙
设计公司:XavierAndrésArquitecte
摄影师:阿德里亚古拉
Somiatruites是由两个兄弟(一个建筑师和一个厨师)组成的项目,希望一起走上美食和建筑融合的旅程,并将共享的融合价值传递到一个社区,一个城市以及一个非常特定的社会群体中。文化背景。该项目始于2013年,当时是对位于伊瓜拉达(Rec de Igualada)街区的一家老制革厂进行整修,并将其转变为一家餐馆。位于围墙和河流之间的雷克(Rec)社区已有500多年的历史了,该地区的大型制革厂与河畔环境中的小花园并存。尽管那里仍然有制革厂,生产出的皮革被认为是世界上最好的皮革之一,但连续的危机使巨大的建筑遗产空缺了。 其中一项任务是,在维持历史联系的同时,为有能力促进邻里再生的项目做出贡献。该酒店是一家不断发展的餐厅项目,为制革公司提供了可以接待其客户的空间。
Hotel Somiatruites的创建具有将自己以可持续的方式融入社区建筑的意愿,并成为全球美食项目的一部分。覆盖整个屋顶的是一个花园,Rec社区的起源(制革厂之间的花园)汇聚在一起,是对未来可持续社区转型的承诺,也是设计和解释Somiatruites美食的主要工具。花园里的鸡被施肥,工厂下方的井水灌溉。在内部皮革,木材和灯光是用来创造适应客人需求的舒适温馨空间的工具。许多客人是商务旅客的事实意味着,房间不仅是房间,而且是会议和起居空间,这可以通过将床藏在天花板上而桌子也消失了而实现,从而使空间变得可变和动态。
西班牙索米特鲁特酒店外部实景图
西班牙索米特鲁特酒店外部实景图
西班牙索米特鲁特酒店内部实景图
西班牙索米特鲁特酒店内部实景图
西班牙索米特鲁特酒店内部实景图
西班牙索米特鲁特酒店内部实景图
西班牙索米特鲁特酒店内部实景图
西班牙索米特鲁特酒店内部实景图
西班牙索米特鲁特酒店内部实景图
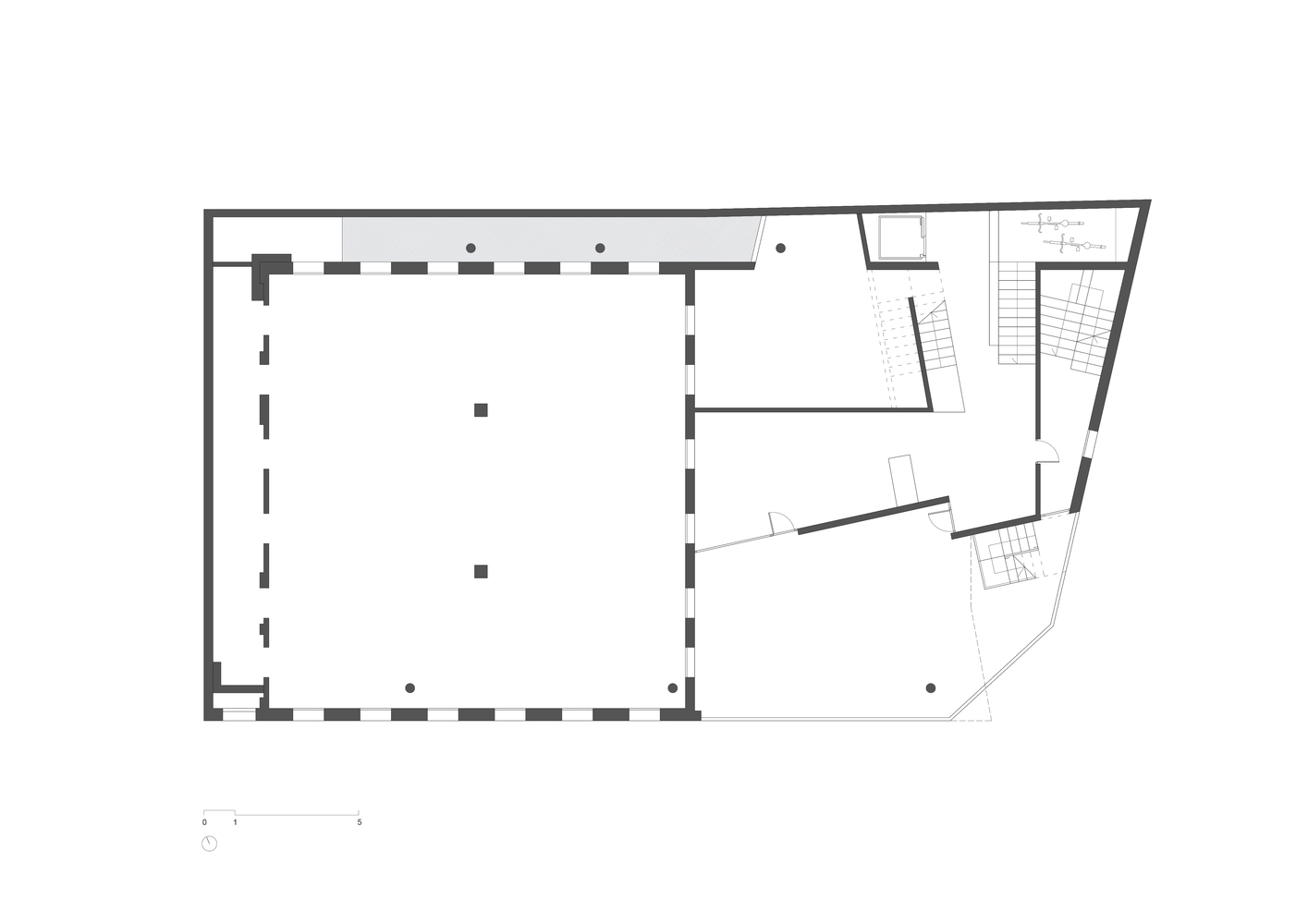
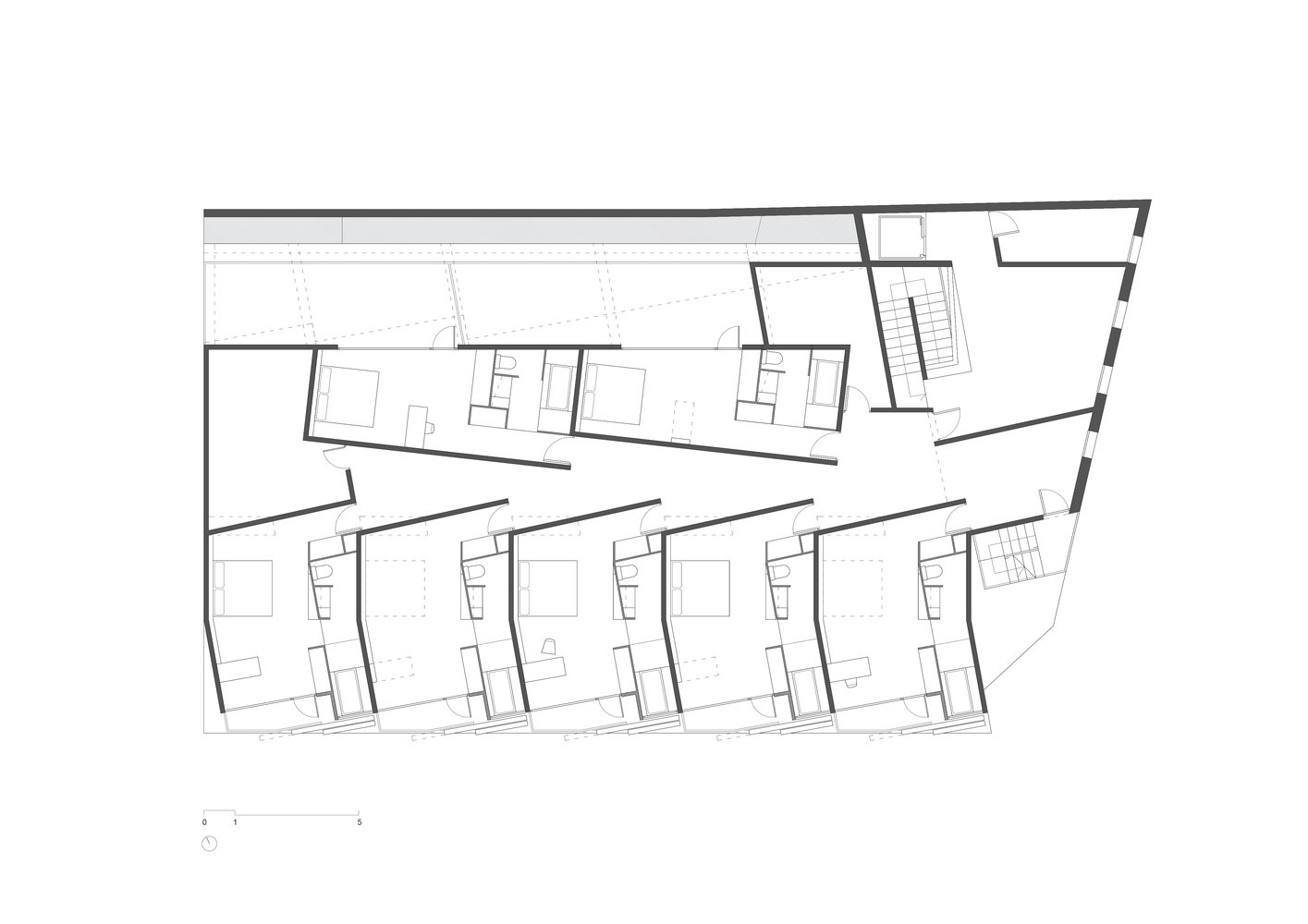
西班牙索米特鲁特酒店平面图
西班牙索米特鲁特酒店平面图
西班牙索米特鲁特酒店平面图
西班牙索米特鲁特酒店平面图
西班牙索米特鲁特酒店剖面图
西班牙索米特鲁特酒店剖面图
西班牙索米特鲁特酒店立面图
客服
消息
收藏
下载
最近



















