查看完整案例

收藏

下载
项目名称:德国包霍夫大街酒店
位置:德国
建筑师:VON M
Bauhofstrasse酒店是一栋可持续发展的可持续建筑,着眼于未来。由于历史建筑旁边的敏感城市融合,酒店为振兴周围地区做出了贡献。通过选择木制房间模块的引领潮流的建造原理,它设定了有关生态,效率,建造周期和质量的标准。这些模块在奥地利生产,运输到路德维希堡,并在五个工作日内就地安装。白色Eternit板的木瓦并不能说明这是一栋木制建筑。内部的表面在其固有的构造中仍然可见,因此激发了特殊的气氛。这座四层楼的建筑物采用了紧邻建筑物的高度,但最初看上去是白色的奇怪物体。立面和屋顶明亮,几乎致盲,开口是插入的,直立格式的盒子,带有固定的窗户和白色的窗扇。由于倾斜的地形,朝北挖入斜坡的房屋还要多布置一层。带有白色纤维水泥板的瓦片没有丝毫暗示这是一栋木制建筑。朝向城市露台的小酒馆和酒吧区,其次是接待室,办公室和行政室以及行李寄存室。在这里,建筑师自己设计了吧台和柜台以及桌子,并由当地工匠用纯白蜡木制造它们。实木复合地板也由相同的木材制成。由材料产生的这种空间质量也可以在其他楼层看到。
在地下室中,除了三间面向斜坡的房间之外,还有一些用于废物处理,自行车出租,员工出入口以及洗衣服务和运送的房间,这些房间均为酒店业务提供服务,并可通过与主入口分离的坡道进入。这些由当地木材制成并在福拉尔贝格州/奥地利生产的设备齐全的房间模块被运送到路德维希堡并在五个工作日内当场安装。旅馆房间的墙壁,地板和天花板在工厂中是用计算机控制的交叉层压木材组装成类似容器的模块。混凝土楼梯使建筑物坚固。无论是在楼梯还是在房间中,其固有结构均能看到其表面:一方面是光洁的混凝土和带漆金属,另一方面是山毛榉木和天然织物。总共使用了440立方米的木材,因此通过存储和替代效果永久性地提取了总计880吨的CO2。二氧化碳密集型材料混凝土的使用可通过所用木材来补偿:结果是二氧化碳中性建筑。
德国包霍夫大街酒店外部实景图
德国包霍夫大街酒店外部实景图
德国包霍夫大街酒店外部实景图
德国包霍夫大街酒店内部实景图
德国包霍夫大街酒店内部实景图
德国包霍夫大街酒店内部实景图
德国包霍夫大街酒店内部实景图
德国包霍夫大街酒店内部实景图
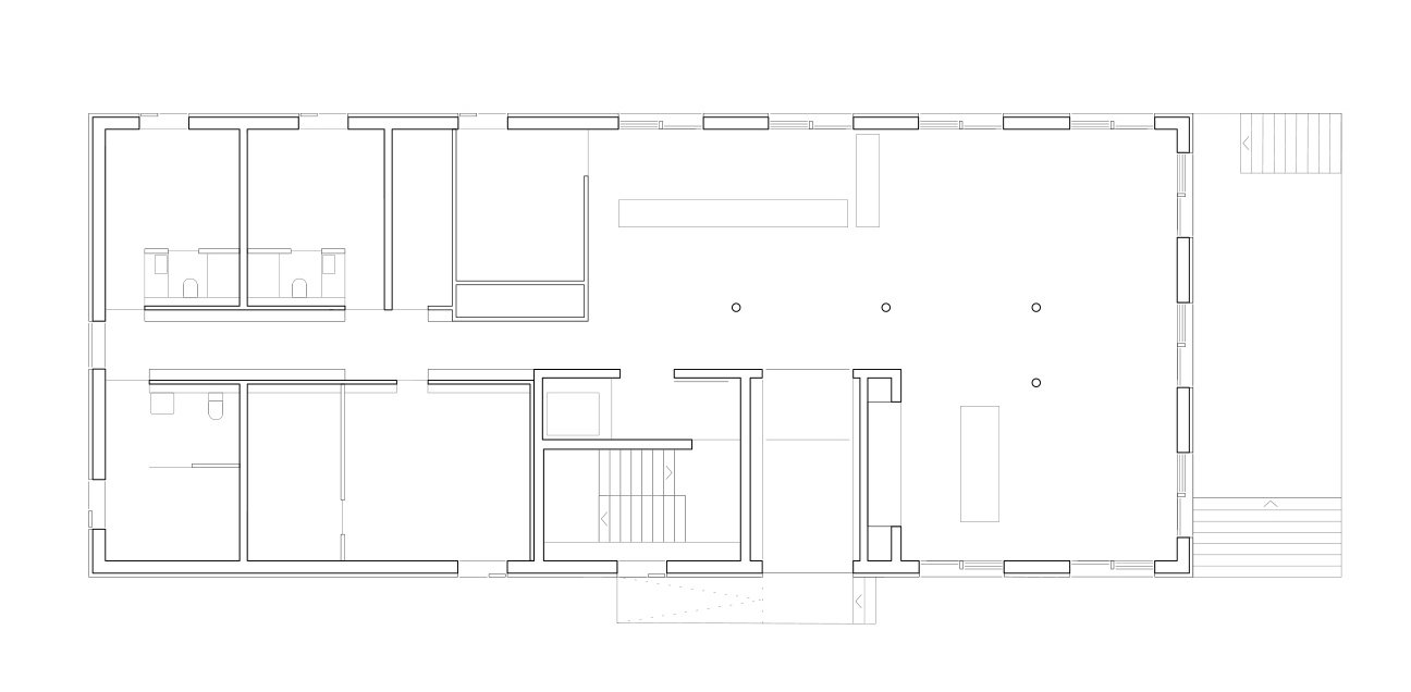
德国包霍夫大街酒店平面图
德国包霍夫大街酒店内部实景图细节图
德国包霍夫大街酒店平面图
德国包霍夫大街酒店平面图
德国包霍夫大街酒店平面图
德国包霍夫大街酒店平面图
德国包霍夫大街酒店剖面图
德国包霍夫大街酒店剖面图
德国包霍夫大街酒店剖面图
客服
消息
收藏
下载
最近




















