查看完整案例

收藏

下载
TBo 最近完成了位于纽约布鲁克林一栋 1899 年联排别墅的翻修和扩建工作。 门罗街别墅 (Monroe Street House) 坐落在绿树成荫的安静街区,为一个家庭 3 代人提供起居和工作室空间。 该设计将原始朴素的联邦风格砖房与宽敞的阳光照射延伸部分结合在一起,构成了重新发现的后花园。 我们仔细考虑了一座古老住宅的构成,保留了其历史规模和前室的私密功能,但在后部留出了更宽敞的公共区域。 这片狭窄的地块两侧都被邻近的建筑物所包围,创造了一系列具有挑战性的条件。 将光线引入房屋是客户最关心的问题。 新的后部延伸满足了增加占地面积的需求,同时最大限度地利用日光和与户外的连接。 它采用现浇混凝土框架建造,占地 200 平方英尺,旨在补充但不压倒原建筑的比例。 这个框架融入了家庭的功能需求:整个底层都是为了容纳一个绘画工作室而建造的,该工作室通向一个阳光斑驳的下沉式花园; 在客厅层,厨房湾与露天用餐平台共享空间; 顶层的 L 形主卧室套房设有音乐附件空间,可欣赏树顶景观。 每层楼都有多个门窗,提供自然通风和充满活力和俏皮的外观。 客户和他们年幼的孩子住在上面两层,而底层公寓属于祖父母,其中一位是画家。 祖父母想要一个光线充足的工作室,既可以作为艺术创作空间,又可以作为照顾孙子的游戏空间。 厨房和新工作室之间的砖砌拱廊是原建筑的遗迹,形成了一条多孔通道,突出了新旧结构之间的过渡。 底层工作室被挖掘以增加天花板高度,并允许无缝流入花园——其新的混凝土地板被浇注并抛光至低光泽,地板中显露的砾石纹理与豌豆砾石相呼应 花园露台就在外面,将空间连接在一起。 扩建部分作为原来的房屋和花园之间的过渡区,创造了温和的对立,并提供了一组具有功能复杂性的多功能空间。 这座房子的特色是天然、原始和经过最低限度处理的材料的调色板,这将使它们能够在适当的位置优雅地产生铜绿和老化。 浇筑的混凝土框架是裸露的,光滑透气的石灰抹灰墙与现有的砖砌建筑形成鲜明对比,而表达的混凝土结构布置在横跨餐厅湾的深花旗松天花板梁上重复和加固。 新的后立面涂有粗糙和光滑的灰泥处理的简单混合,构成了内部景观。
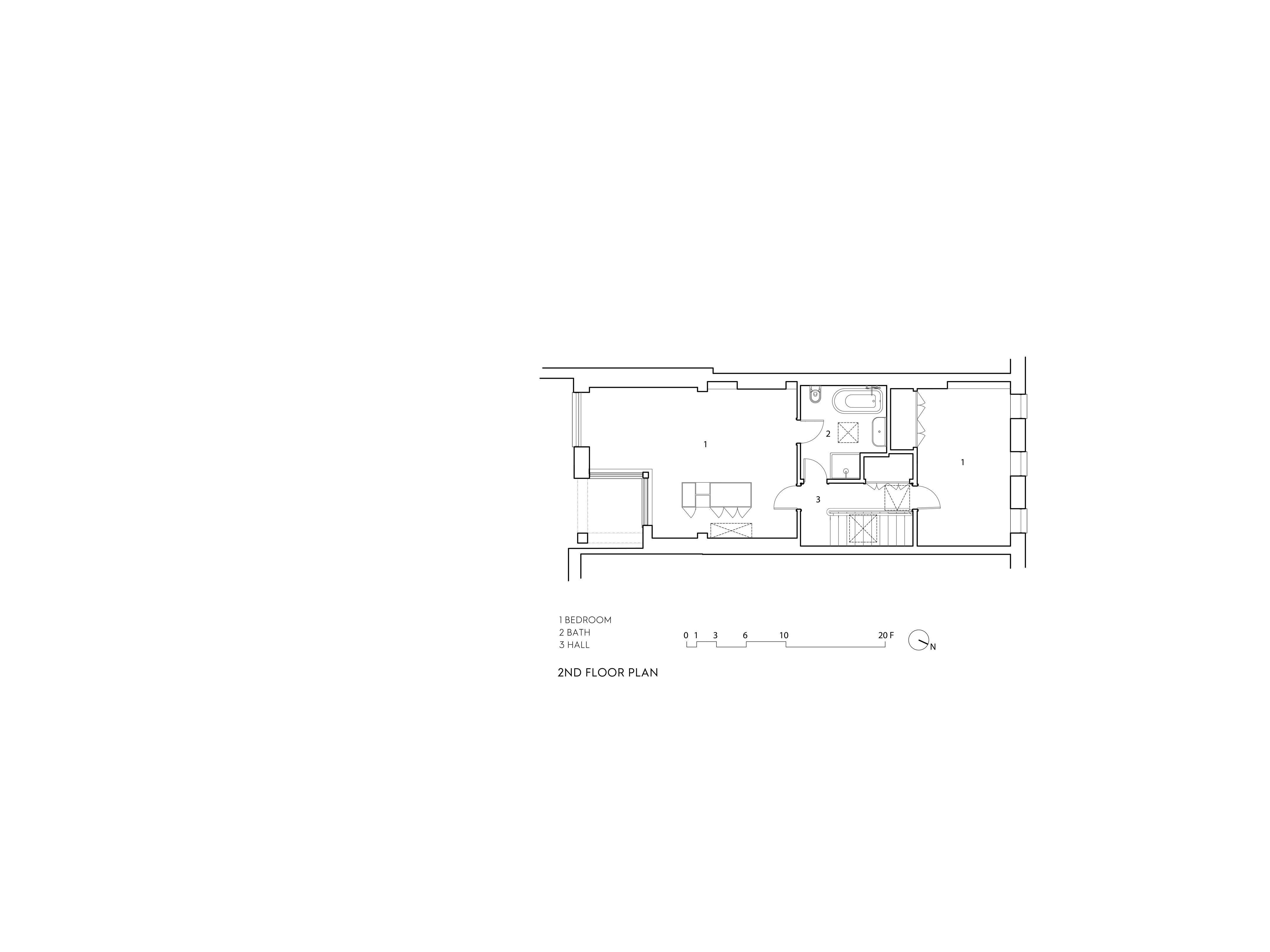
平面与结构图:
设计师:TBo
坐落:Brooklyn / United States / 2023
语言:English
客服
消息
收藏
下载
最近





























