知末
知末
创作上传
VIP
收藏下载
登录 | 注册有礼

四月卡皮塔斯公寓丨葡萄牙丨estúdio AMATAM

2023/08/06 18:33:38
查看完整案例
微信扫一扫
收藏
下载
四月卡皮塔斯公寓丨葡萄牙丨estúdio AMATAM-0
四月卡皮塔斯公寓丨葡萄牙丨estúdio AMATAM-1
这套 51 平方米的公寓完美地展示了如何将最小的空间改造成优雅而实用的住宅。
四月卡皮塔斯公寓丨葡萄牙丨estúdio AMATAM-3
四月卡皮塔斯公寓丨葡萄牙丨estúdio AMATAM-4
一打开门,映入眼帘的是一个明亮、优雅的空间,以白色为主色调。 一个内衬木头的小壁龛经过精心设计,可让您清空口袋,并将鞋子放在几乎不引人注意的垂直模块中。
四月卡皮塔斯公寓丨葡萄牙丨estúdio AMATAM-6
四月卡皮塔斯公寓丨葡萄牙丨estúdio AMATAM-7
四月卡皮塔斯公寓丨葡萄牙丨estúdio AMATAM-8
四月卡皮塔斯公寓丨葡萄牙丨estúdio AMATAM-9
四月卡皮塔斯公寓丨葡萄牙丨estúdio AMATAM-10
四月卡皮塔斯公寓丨葡萄牙丨estúdio AMATAM-11
四月卡皮塔斯公寓丨葡萄牙丨estúdio AMATAM-12
四月卡皮塔斯公寓丨葡萄牙丨estúdio AMATAM-13
四月卡皮塔斯公寓丨葡萄牙丨estúdio AMATAM-14
四月卡皮塔斯公寓丨葡萄牙丨estúdio AMATAM-15
四月卡皮塔斯公寓丨葡萄牙丨estúdio AMATAM-16
四月卡皮塔斯公寓丨葡萄牙丨estúdio AMATAM-17
四月卡皮塔斯公寓丨葡萄牙丨estúdio AMATAM-18
四月卡皮塔斯公寓丨葡萄牙丨estúdio AMATAM-19
四月卡皮塔斯公寓丨葡萄牙丨estúdio AMATAM-20
四月卡皮塔斯公寓丨葡萄牙丨estúdio AMATAM-21
四月卡皮塔斯公寓丨葡萄牙丨estúdio AMATAM-22
四月卡皮塔斯公寓丨葡萄牙丨estúdio AMATAM-23
四月卡皮塔斯公寓丨葡萄牙丨estúdio AMATAM-24
四月卡皮塔斯公寓丨葡萄牙丨estúdio AMATAM-25
四月卡皮塔斯公寓丨葡萄牙丨estúdio AMATAM-26
四月卡皮塔斯公寓丨葡萄牙丨estúdio AMATAM-27
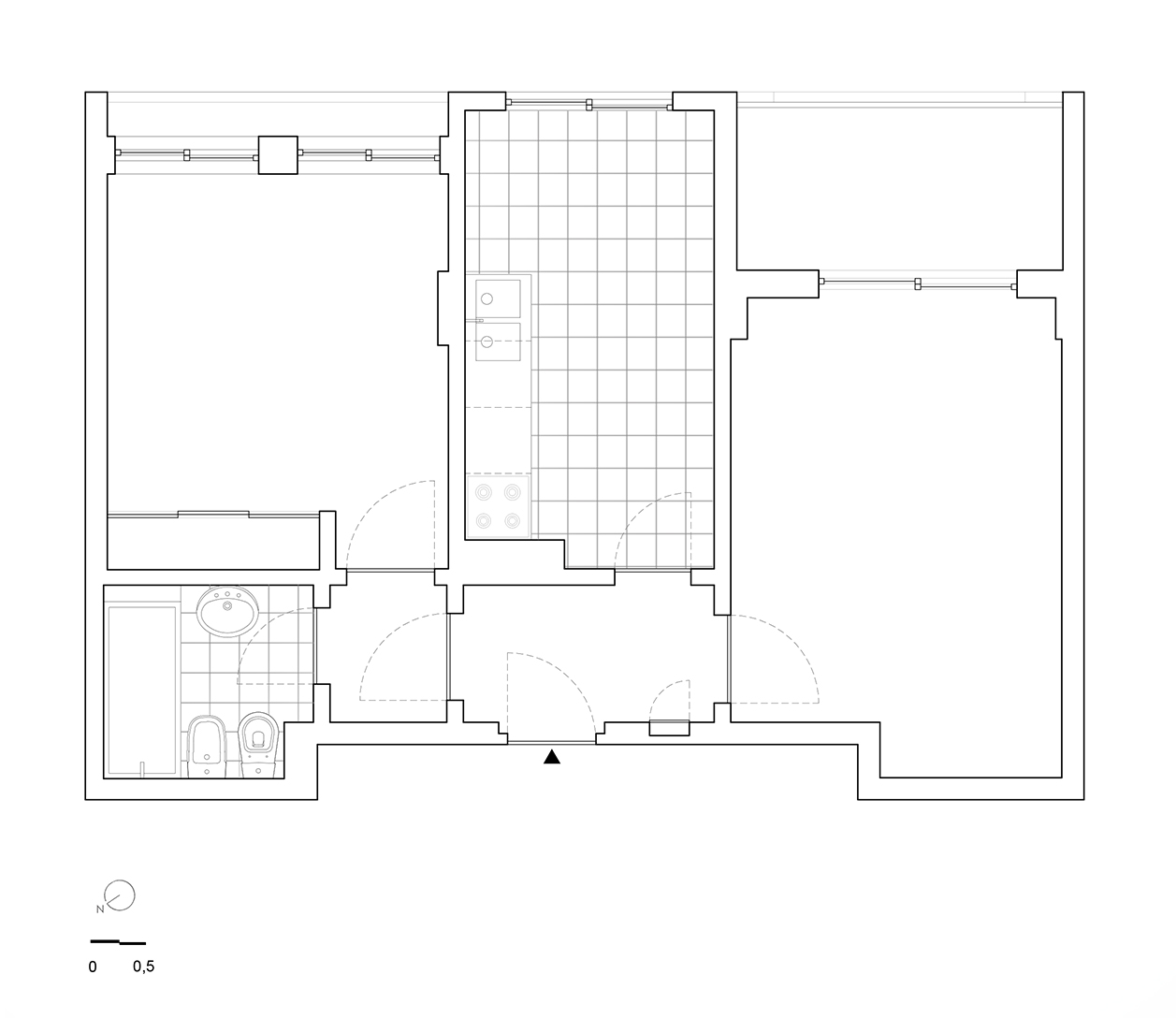
平面与结构图:
四月卡皮塔斯公寓丨葡萄牙丨estúdio AMATAM-29
四月卡皮塔斯公寓丨葡萄牙丨estúdio AMATAM-30
四月卡皮塔斯公寓丨葡萄牙丨estúdio AMATAM-31
设计师:est& dio AMATAM
坐落:Almada / Portugal / 2023
语言:English
南京喵熊网络科技有限公司 苏ICP备18050492号-4知末 © 2018—2020 . All photos and trademark graphics are copyrighted by their owners.增值电信业务经营许可证(ICP)苏B2-20201444苏公网安备 32011302321234号
客服
消息
收藏
下载
最近