查看完整案例

收藏

下载
项目名称:西塘næra良壤酒店
位置:浙江
设计公司:水平线设计
应该说几乎每个同行、媒体人都曾让我比较西塘næra良壤和阳朔Alila之间的异同。时隔三年,苟日新日日新,身体内部细胞们都更新了将近一半,总会有些类似于“风格”或者“手法”的东西还是延续下了的。但,的确是完全不同的。我最喜欢的应该是门口的朦胧感。这处应该是“果”而不是“因”——城市主路转村道,右拐不远进入,心理还没有缓冲便需要见面,不够含蓄。于是就有了门口那弯弯折折的非文化物质遗产竹编隔断出来的小径模式,那是却扇诗。入住通常是下午,彼时的光会通过内部的水池庭院,经过风的折射,自西边散落进大堂迎客。那种需要在不经意间调节了瞳孔大小转换后的心情,会静,会安享于那一刻。空间里明亮,但又不太过于明亮;竹篾间的空隙和花纹细致,但又不过于繁琐;可以留意到并欣赏通道中间的古董隔断,也可以完全不……我一直喜欢那种舒适的恰到好处感,没有任何的负担。晨起后,光会从东边大堂朝内转入,与清风契,或伴鸟啼。又或者自然醒来已近午时,树影时晃,枝条载荣。不管走了多少次,我仍然很喜欢在那明暗关系中穿行,不经意时的一抬眼,很有种岁月感在其间。或许有人会奇怪于建筑外形的常规,这符合着当地要求的江南风貌,与整个西塘古镇相呼应。人与大环境的关系一直介于“适应”与“改造”的意图之中,建筑得兼顾。
在内部场地中有五个深色盒子,不同长度地坐落在水边,与室内、景观相统一,于建筑主体中分离,自成体系,形成了一种具有当代感的视线关系,并与古亭间形成轻微的视觉上的对抗。与此同时也界限出了“游园”的路径以及动线,包括光的进入、变化模式。彼此相望,独立存在,又相互映衬。这几处空间情境的设定,或者说意图营造的,其实是种较生活之上的更具有仪式感的概念,这种概念的延伸同时暗示了其内部与外部,将五个盒子位于一个更大的背景当中,并不需要孤立地去感受。那是一个综合纬度,于平面上下之间跃迁。如果说水平方向代表着人平日里具体行为的常规,那这些个高低错开的综合平面则共同组成了一个更为立体的空间模型,衍生出了别样的可能性。餐厅、琴室、茶室、书房、酒吧……选取这种长卷的打开或者说解读方式,是照顾了实用功能的现实后,也能兼顾得了审美情趣。下沉、抬升,仿乐章,一咏五叹。我喜欢这种能同时提供情感归属和文化认同的空间,相关联叠加后的丰富性,既温情又有趣。或倚水而歇,或凭栏而望,或拾级而闻茶香,借着特定空间营造仪式感,唤醒内心,与自己相处,与所爱的人或书相处。
水景的距离也是恰到好处的,虽浅,但仍有种宏大且浑然一体的体验。风皱时反而更有种时光凝聚感,恍然间不知道身处何方,只觉得江南以及江南本身所代表的一切美好属性都在意象中待感知、待触碰,又或者什么都不去想,只在日光翻起的白边上,眯了眯眼,笑了笑。到了夜里,灯光会加入进来。每晚整点两场不长的灯光“秀”,恰到好处地捕捉了内心的敏感。如果说白天里的良壤是日常美人,那夜晚,则是带妆的。我一直很喜欢灯光下的场景,人会被晕染,心境会变得更微妙。那是种单看照片或视频不足以领会的别样美感,需要参与其中,需要身临其境。未来会随时光老去的原木色亭应该会是酒店里最恒定的观察记录者,如果有延时摄影,可以看到天色在变云在变,水波在动人在动,唯亭是静止的,是风景本身,又承载人情。夜半时,可以听见人与人的私语、人与境的对话,还能看见物和时空间的关联。将传统建筑与当代生活榫接在一起,古今碰撞的同时,又呼应了地域感。在此处上演过不止一次的“游园惊梦”,亭是载体,又是主角本身。
亭内可做雨丝风片、烟波画船,四周花明月暗,衣袂色彩明快翻飞,池里或有容颜倒影,亭中央音节谐婉,随着水面流淌开去,拍击回卷渐散……好时节,像极了好梦里的场景。其实格物,本来就可以解读为以己身来观物,或者以物来证己身。“良壤”应该是呈现最多当代艺术的酒店之一,是三十五位艺术家原作的最佳承载处。每一处的陈设艺术品,都有着各自的生命,在“良壤”中盛开绽放着。所有艺术品在契合酒店的同时并散发着各自气场与魅力外,也体现着一部分人群的审美以及想营造的心境,还代表着此时此刻这个时代审美所凝练所积淀出的独特力量。客房内的人文关怀、舒适以及各种细节属于“老本行”;其他空间内部愿待且待得住的配套设施的思考,包括各经典的,以及我自己设计的座椅,等等,可能更需要住客切身体验后的评价而不是出于设计师角度的“自夸”。三年多的设计过程中,平均一个月在场一次。客房走廊里挂着的过程中的旧照片,于参与者是个记忆点,会感而慨,于住客也是个记忆点,会比而对……我们都在时间中穿行,积累着成长着。
西塘næra良壤酒店外部实景图
西塘næra良壤酒店外部实景图
西塘næra良壤酒店外部实景图
西塘næra良壤酒店外部实景图
西塘næra良壤酒店外部实景图
西塘næra良壤酒店外部实景图
西塘næra良壤酒店外部实景图
西塘næra良壤酒店外部实景图
西塘næra良壤酒店外部夜景实景图
西塘næra良壤酒店外部夜景实景图
西塘næra良壤酒店外部夜景实景图
西塘næra良壤酒店外部夜景实景图
西塘næra良壤酒店外部夜景实景图
西塘næra良壤酒店外部夜景实景图
西塘næra良壤酒店外部夜景实景图
西塘næra良壤酒店外部夜景实景图
西塘næra良壤酒店外部夜景实景图
西塘næra良壤酒店外部夜景实景图
西塘næra良壤酒店外部夜景实景图
西塘næra良壤酒店外部夜景实景图
西塘næra良壤酒店外部夜景实景图
西塘næra良壤酒店内部实景图
西塘næra良壤酒店内部实景图
西塘næra良壤酒店内部实景图
西塘næra良壤酒店内部实景图
西塘næra良壤酒店内部实景图
西塘næra良壤酒店内部实景图
西塘næra良壤酒店内部实景图
西塘næra良壤酒店内部实景图
西塘næra良壤酒店内部实景图
西塘næra良壤酒店内部实景图
西塘næra良壤酒店内部实景图
西塘næra良壤酒店内部实景图
西塘næra良壤酒店内部实景图
西塘næra良壤酒店内部实景图
西塘næra良壤酒店内部实景图
西塘næra良壤酒店内部实景图
西塘næra良壤酒店内部实景图
西塘næra良壤酒店内部实景图
西塘næra良壤酒店内部实景图
西塘næra良壤酒店内部实景图
西塘næra良壤酒店内部实景图
西塘næra良壤酒店内部实景图
西塘næra良壤酒店内部实景图
西塘næra良壤酒店内部实景图
西塘næra良壤酒店内部实景图
西塘næra良壤酒店内部实景图
西塘næra良壤酒店内部实景图
西塘næra良壤酒店内部实景图
西塘næra良壤酒店内部实景图
西塘næra良壤酒店内部实景图
西塘næra良壤酒店内部实景图
西塘næra良壤酒店内部实景图
西塘næra良壤酒店内部实景图
西塘næra良壤酒店内部实景图
西塘næra良壤酒店内部实景图
西塘næra良壤酒店内部实景图
西塘næra良壤酒店内部实景图
西塘næra良壤酒店内部实景图
西塘næra良壤酒店内部实景图
西塘næra良壤酒店内部实景图
西塘næra良壤酒店内部实景图
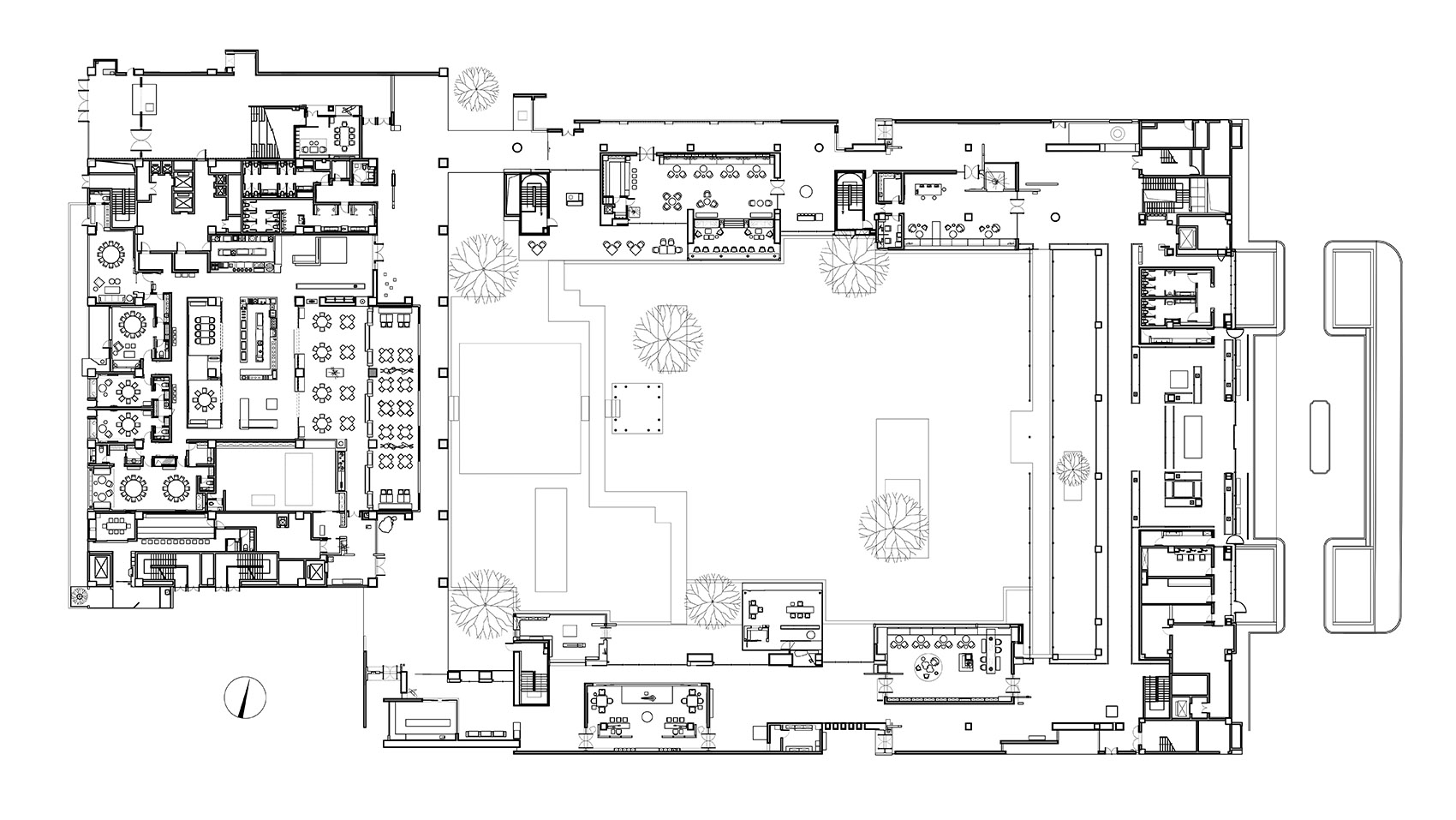
西塘næra良壤酒店平面图
客服
消息
收藏
下载
最近


































































