查看完整案例

收藏

下载
项目名称:葡萄牙猫犬酒店
位置:葡萄牙
设计公司:Raulino Silva Arquitecto
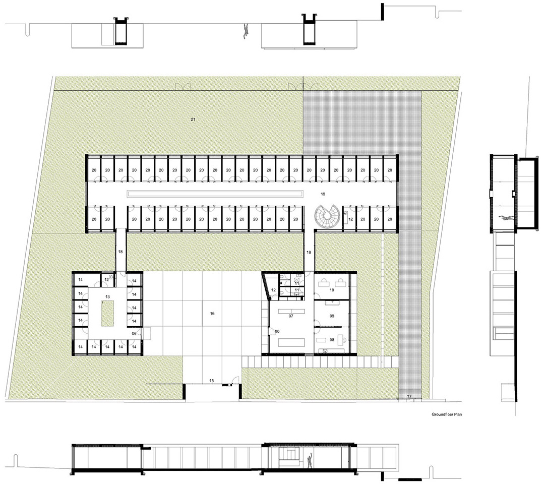
猫犬酒店位于葡萄牙孔迪镇帕拉达区,以宠物的临时住宿、主人外出度假或公务出差期间的短期寄养为主营业务。兽医办公室、美容室、户外训练区和宠物游泳池等空间和设施,为不同宠物活动的开展提供了条件。该项目利用三栋相连的建筑来打造了三个独立功能区。通过这种方式来将猫、狗区分开,避免它们相遇而发出恼人的噪音,并将所有的公共服务空间都设置在第三栋建筑中。结合规划布局的需要,三个体量的设计在减少了建筑面积影响的同时,促进了景观的整合。第一栋建筑只有一层,容纳了包括服务台、便利店、储藏室、卫生设施、办公室、兽医办公室和美容室在内的接待和服务空间。设计团队利用现有地形将占地最广的第二栋楼打造为两层,充当了最高点(入口区域)和较低部分(动物游乐场)之间的连接。在二楼,41间狗舍被中央走廊隔开,中间的小花园则可以避免动物们的目光接触。一座螺旋楼梯通道将空间引向一楼,这里有多功能空间、技术室、洗衣房、员工更衣间和浴室。
被用作猫舍的第三栋楼体积最小,拥有十二个独立隔间。隔间中央有一个被阳光普照的室内花园,它在作为中央流通空间的同时,也是小猫们最喜爱的游玩空间。在室内,所有的空间都采用了连续且防水的环氧树脂自流平地板。一种浅灰色的微水泥涂料被广泛运用到在浴室的墙壁、更衣室、楼梯和狗舍的室内花园中。所有的门和橱柜等木制品均采用白色烤漆中密度纤维板制成。房屋的外墙和天花板都覆盖了由浅灰色涂层和保温材料组成的ETICS(外墙外保温系统)。所有屋顶均采用了沥青片状薄膜和保温隔热材料,并利用天然卵石来提供保护。供游客使用的阳台和停车场采用了深灰色的混凝土地板,通往地下室的通道上(用于装卸服务)则使用了本地的花岗岩块。外部的花岗岩石墙经过传统的施工方法进行了清理和维护。在训犬营的围栏内,花岗岩桩加固了围栏网。这些场地自带的花岗岩柱子,还在葡萄园靠近种植区墙壁的地方被使用。
葡萄牙猫犬酒店外部实景图
葡萄牙猫犬酒店外部实景图
葡萄牙猫犬酒店外部实景图
葡萄牙猫犬酒店外部实景图
葡萄牙猫犬酒店外部实景图
葡萄牙猫犬酒店外部实景图
葡萄牙猫犬酒店外部实景图
葡萄牙猫犬酒店外部实景图
葡萄牙猫犬酒店外部实景图
葡萄牙猫犬酒店外部实景图
葡萄牙猫犬酒店外部实景图
葡萄牙猫犬酒店局部实景图
葡萄牙猫犬酒店局部实景图
葡萄牙猫犬酒店内部实景图
葡萄牙猫犬酒店内部实景图
葡萄牙猫犬酒店内部实景图
葡萄牙猫犬酒店内部实景图
葡萄牙猫犬酒店内部实景图
葡萄牙猫犬酒店内部实景图
葡萄牙猫犬酒店平面图
葡萄牙猫犬酒店平面图
葡萄牙猫犬酒店平面图
客服
消息
收藏
下载
最近

























