查看完整案例

收藏

下载
项目名称:芬兰桑拿和旅馆
位置:芬兰
设计公司:Mer Architects
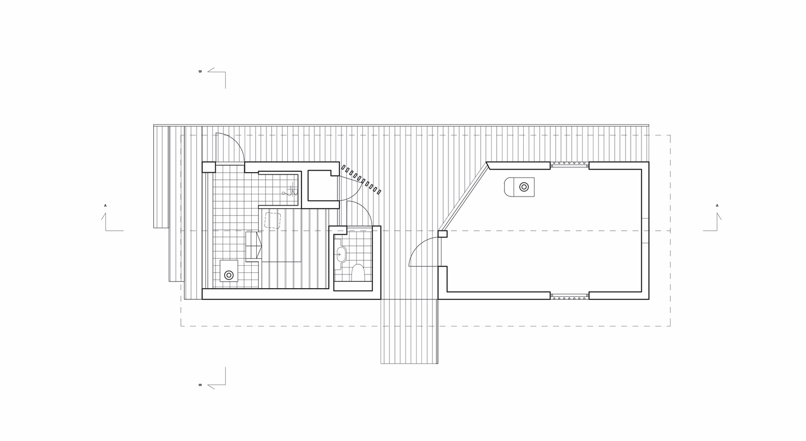
这家桑拿浴室和旅馆位于埃斯波群岛(Espoo archipelago)的岩石岛的北岸。小型建筑物分为两部分,位于一个大屋顶下。蒸气室(桑拿浴室)和客房,也可作为更衣室。该场地有各种现有的木制建筑,未经处理的外墙随着年龄的增长而变灰。设计的目的不是在视觉上添加其他灰色小屋,而是将其更多地与海岸上的松树和云杉植被融合在一起,并具有自己的特色。根据场地地形,傍晚太阳的方向和大海的景色来确定建筑物的方向。雪松木覆盖的桑拿房可俯瞰船道,并通过弧形窗户欣赏傍晚的阳光。通过简单地减少音量,客房还享有日落美景。该建筑完全由交叉层压木材建造而成。外墙覆盖着云杉,并涂有传统的黑色“ Falu”涂料,并且镀锌的屋顶也将在几年后涂成深色。
芬兰桑拿和旅馆外部实景图
芬兰桑拿和旅馆外部夜景实景图
芬兰桑拿和旅馆内部实景图
芬兰桑拿和旅馆内部实景图
芬兰桑拿和旅馆内部实景图
芬兰桑拿和旅馆内部实景图
芬兰桑拿和旅馆平面图
芬兰桑拿和旅馆立面图
芬兰桑拿和旅馆立面图
芬兰桑拿和旅馆剖面图
芬兰桑拿和旅馆剖面图
客服
消息
收藏
下载
最近














