查看完整案例

收藏

下载
项目名称:法国圣多米尼克关明生高中学院和体育馆
位置:法国
设计公司:泰基建筑师事务所
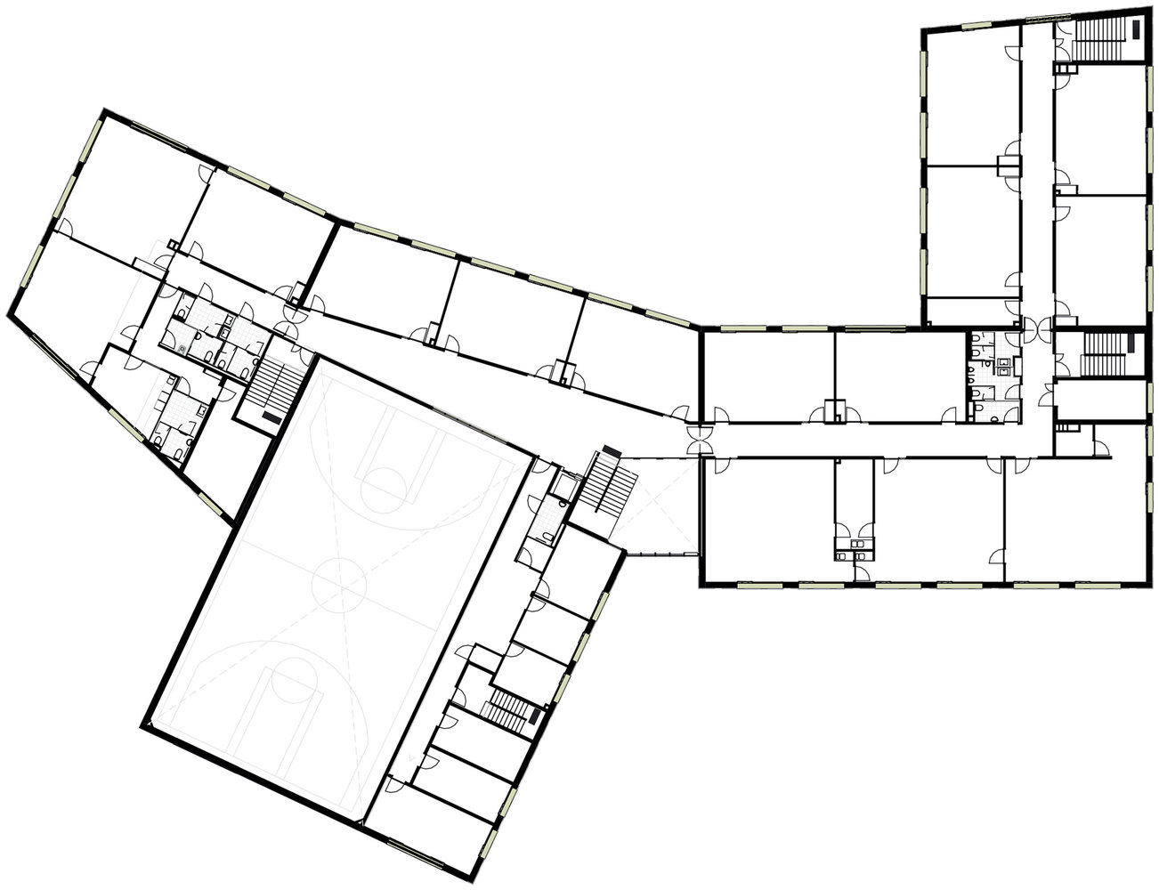
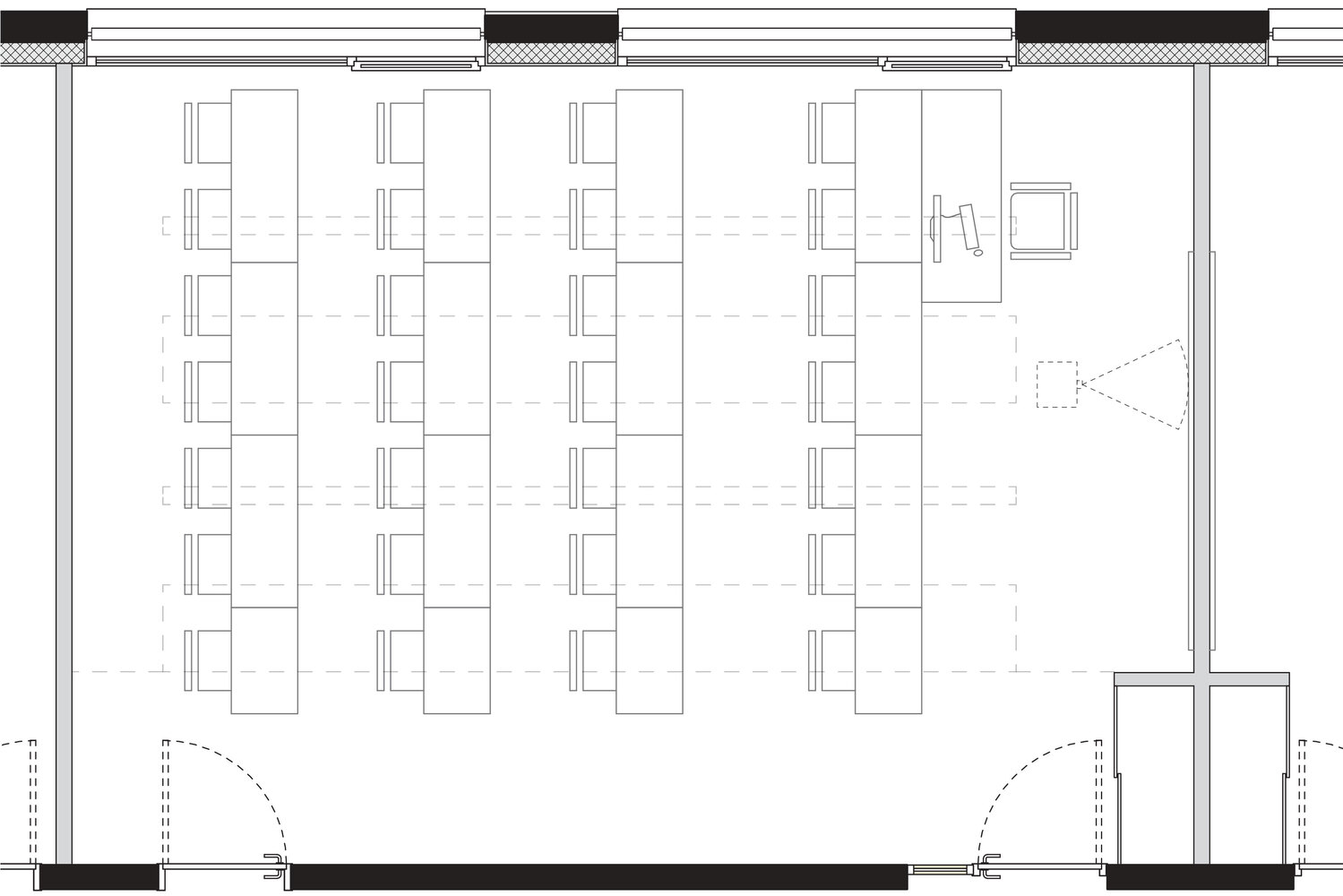
该项目是围绕一个中央走廊组织的,该走廊分布了所有空间并与建筑折叠在一起,从而构建了一个“坚固的形式”,在适应场地的同时组织了内部和外部空间。这座建筑有两层。一楼专门用于大型场所,包括学院的所有次要活动(体育馆、学习资源中心、学校生活、餐饮等。).一楼由10个普通教育室、技术教学室以及教学团队专用空间组成。混凝土、橡木和玻璃构成了围护结构的主要材料,通过提供耐久性、耐用性、抵抗力以及简单和廉价的维护,有力地证明了该项目的合格性。金属和细木工元素的色调为青铜色,冲压部分为浅混凝土色和浅赭色,光滑着色部分为深色调,与橡木细木工色调相协调。细木工用橡木制成,带有可调节板条的外百叶窗。教室的设计得益于最佳照明。由于没有假天花板,木质纤维板的物质性得以凸显,组合了照明、声学设备和供暖网络。配备了一个健身房,允许进行各种体育活动,其顶部开口确保室内光线良好。
木梁允许大跨度,不需要任何中间支柱。整个建筑形成了几个不同的户外空间。在北部,沉思花园为学生提供了一个穿越乡村山丘的植物和树木景观。露天看台也安装在这个户外空间中,创造了一个有利于聚会和户外活动的绿色剧场。东部容纳了一个可以俯瞰学院庭院的长庭院,在那里安装了长凳和体育游戏家具,以及田径跑道。该建筑旨在提供宁静的教育环境和优化的空间,以满足21世纪学院的人口需求、教育挑战和功能要求。新学院的建设也是一个节俭的项目,经济手段与为用户设计舒适建筑的雄心相结合。生物气候设计让自然光进入建筑的中心;空间功能齐全,宽敞大方,流通方便合理。材料的选择考虑到了耐久性和耐用性,倾向于最环保的材料,如木质纤维板天花板。还安装了光伏板,允许自行消耗电力,收集雨水用于浇灌户外空间。
法国圣多米尼克关明生高中学院和体育馆外部实景图
法国圣多米尼克关明生高中学院和体育馆外部实景图
法国圣多米尼克关明生高中学院和体育馆外部实景图
法国圣多米尼克关明生高中学院和体育馆外部实景图
法国圣多米尼克关明生高中学院和体育馆外部实景图
法国圣多米尼克关明生高中学院和体育馆外部实景图
法国圣多米尼克关明生高中学院和体育馆外部实景图
法国圣多米尼克关明生高中学院和体育馆外部实景图
法国圣多米尼克关明生高中学院和体育馆内部实景图
法国圣多米尼克关明生高中学院和体育馆内部实景图
法国圣多米尼克关明生高中学院和体育馆内部实景图
法国圣多米尼克关明生高中学院和体育馆内部实景图
法国圣多米尼克关明生高中学院和体育馆内部实景图
法国圣多米尼克关明生高中学院和体育馆内部实景图
法国圣多米尼克关明生高中学院和体育馆内部实景图
法国圣多米尼克关明生高中学院和体育馆内部实景图
法国圣多米尼克关明生高中学院和体育馆内部实景图
法国圣多米尼克关明生高中学院和体育馆内部实景图
法国圣多米尼克关明生高中学院和体育馆平面图
法国圣多米尼克关明生高中学院和体育馆平面图
法国圣多米尼克关明生高中学院和体育馆平面图
法国圣多米尼克关明生高中学院和体育馆平面图
法国圣多米尼克关明生高中学院和体育馆剖面图
法国圣多米尼克关明生高中学院和体育馆剖面图
客服
消息
收藏
下载
最近



























