查看完整案例

收藏

下载
项目名称:德国儿童保护协会综合家庭中心
位置:德国
设计公司:亚历山大·波茨施建筑事务所
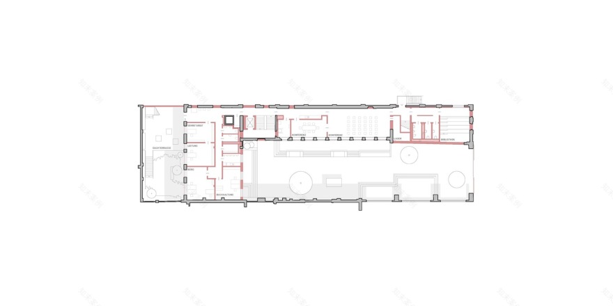
位于德累斯顿约翰施塔特区的德国儿童保护协会(DKSB)综合家庭中心对一家前巧克力制造商的破旧厂房进行了翻新改造。这座20世纪初的建筑空置了很长时间,必须彻底翻新。现有的建筑尽可能保留下来,并在一些地方进行了扩建和延伸。以前的工厂大厅从破旧的屋顶中解放出来,现在形成了一个露天的内部庭院。该中心将实现各种功能,包括咨询中心、行政办公室、会议室和未成年人治疗室。通过新建的Lili-Elbe-strae可以到达该建筑,并可通过内部庭院进入。一楼有一个青年俱乐部和一个工作室,二楼和阁楼是年轻人的辅助生活社区。建筑的设计特点是内部和外部都采用拼贴材料,混凝土与砖墙和灰泥墙相接。现有结构尽可能保持原样,让建筑的历史保持可见。内部和外部区域的现有墙壁要么粉刷成白色,要么未经处理。通过未经处理的混凝土固定装置可以识别出新的元素。旧烟囱被保留下来作为该地区的特色。这种方法可以实现现有建筑和原材料的可持续利用,以及具有成本效益的建筑。
德国儿童保护协会综合家庭中心外部实景图
德国儿童保护协会综合家庭中心外部实景图
德国儿童保护协会综合家庭中心外部实景图
德国儿童保护协会综合家庭中心外部实景图
德国儿童保护协会综合家庭中心外部实景图
德国儿童保护协会综合家庭中心外部实景图
德国儿童保护协会综合家庭中心外部实景图
德国儿童保护协会综合家庭中心外部实景图
德国儿童保护协会综合家庭中心外部实景图
德国儿童保护协会综合家庭中心内部实景图
德国儿童保护协会综合家庭中心内部实景图
德国儿童保护协会综合家庭中心内部实景图
德国儿童保护协会综合家庭中心内部实景图
德国儿童保护协会综合家庭中心内部实景图
德国儿童保护协会综合家庭中心平面图
德国儿童保护协会综合家庭中心平面图
德国儿童保护协会综合家庭中心剖面图
德国儿童保护协会综合家庭中心立面图
客服
消息
收藏
下载
最近





















