查看完整案例

收藏

下载
项目名称:东莞千年古城里的百年小学
位置:东莞
设计公司: 见筑社
摄影师:刘中, 刘健星, 范兆昆
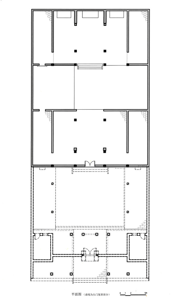
东莞莞城自古与东江相接,城市水脉交错。位于其中的阮涌小学的名字由来便以“水涌”相关。过去更有船只在校门口过往,几大本土祠堂曾为其教学空间。适逢2023年市重点工程“东莞记忆”的推进。千年古城面临重新思考城市活化的痛点和机遇。阮涌小学作为东莞市还在原地的最老小学。其更新逻辑一分为二:沿街区域和校园区域,并分别由企业和政府各自推进。我们担任了该项目的统一规划部署,本次重点改造了沿街空间。学校与老城的边界是重点思考的问题。由于过去学校空间的外扩,学校边界形成与民居、店铺相互嵌合的关系。改造前,学校沿街面左右两端为混泥土仿古门楼,次门旁边是上世纪80年代的国企物业,中间则为马赛克与砖块混搭的民居。校园内环境混杂且破旧,且没有保留任何历史痕迹。在上层规划尽量保留原有建筑,且不改动民居的原则下,校园沿街的空间提升被整合为:校园特色语言和城市原生语言。由四个部分进行:通过研究阮涌小学历代祠堂的形制,把古代祠堂门前与街道相接的空间关系,转译成主次门与街道的两个过渡空间,供人们停留和休憩。
功能连接。通过廊道的设计,把本来完全独立的建筑连接起来,并进行形式和功能上的优化。使教师休息区、就餐区、次门阁楼上的舞蹈区,以及主教学楼的流畅连接。在不拆除原有墙柱体系的前提下,借鉴了东莞仅存的古代教育类标志构筑物-明代进士牌楼的构建方式,把传统斗拱搭建简化为木构件的榫卯叠合,在呈现传统氛围的同时,新旧结构也做到有效结合。主次门墙体的青砖是沿用城市更新的老砖,墙裙则选用了具有本土建筑特色的麻石,此两种材料延续到了校园内部,成为连接校园内外的统一语言。细颗粒灰白相间的水刷石和具有西洋风格的扶手文样,则反映了近代沿海城市建筑特色,设计也中沿用了这些本土元素。千年城市,百年学府,这次阮涌小学的改造虽然只用了约4个月的时间,却开启了老城的一次空间和人文上的一次别具意义的延续和蜕变。
东莞千年古城里的百年小学外部实景图
东莞千年古城里的百年小学外部实景图
东莞千年古城里的百年小学外部实景图
东莞千年古城里的百年小学外部实景图
东莞千年古城里的百年小学外部实景图
东莞千年古城里的百年小学外部实景图
东莞千年古城里的百年小学外部实景图
东莞千年古城里的百年小学外部实景图
东莞千年古城里的百年小学外部实景图
东莞千年古城里的百年小学外部实景图
东莞千年古城里的百年小学外部实景图
东莞千年古城里的百年小学外部实景图
东莞千年古城里的百年小学外部实景图
东莞千年古城里的百年小学外部实景图
东莞千年古城里的百年小学平面图
东莞千年古城里的百年小学平面图1.jpg
东莞千年古城里的百年小学平面图
东莞千年古城里的百年小学平面图
东莞千年古城里的百年小学平面图
东莞千年古城里的百年小学平面图
东莞千年古城里的百年小学平面图
东莞千年古城里的百年小学立面图
东莞千年古城里的百年小学立面图
东莞千年古城里的百年小学立面图
客服
消息
收藏
下载
最近



























