查看完整案例

收藏

下载
项目名称:斯洛文尼亚Koč evje幼儿园
位置:斯洛文尼亚
建筑师: SVET·VMES
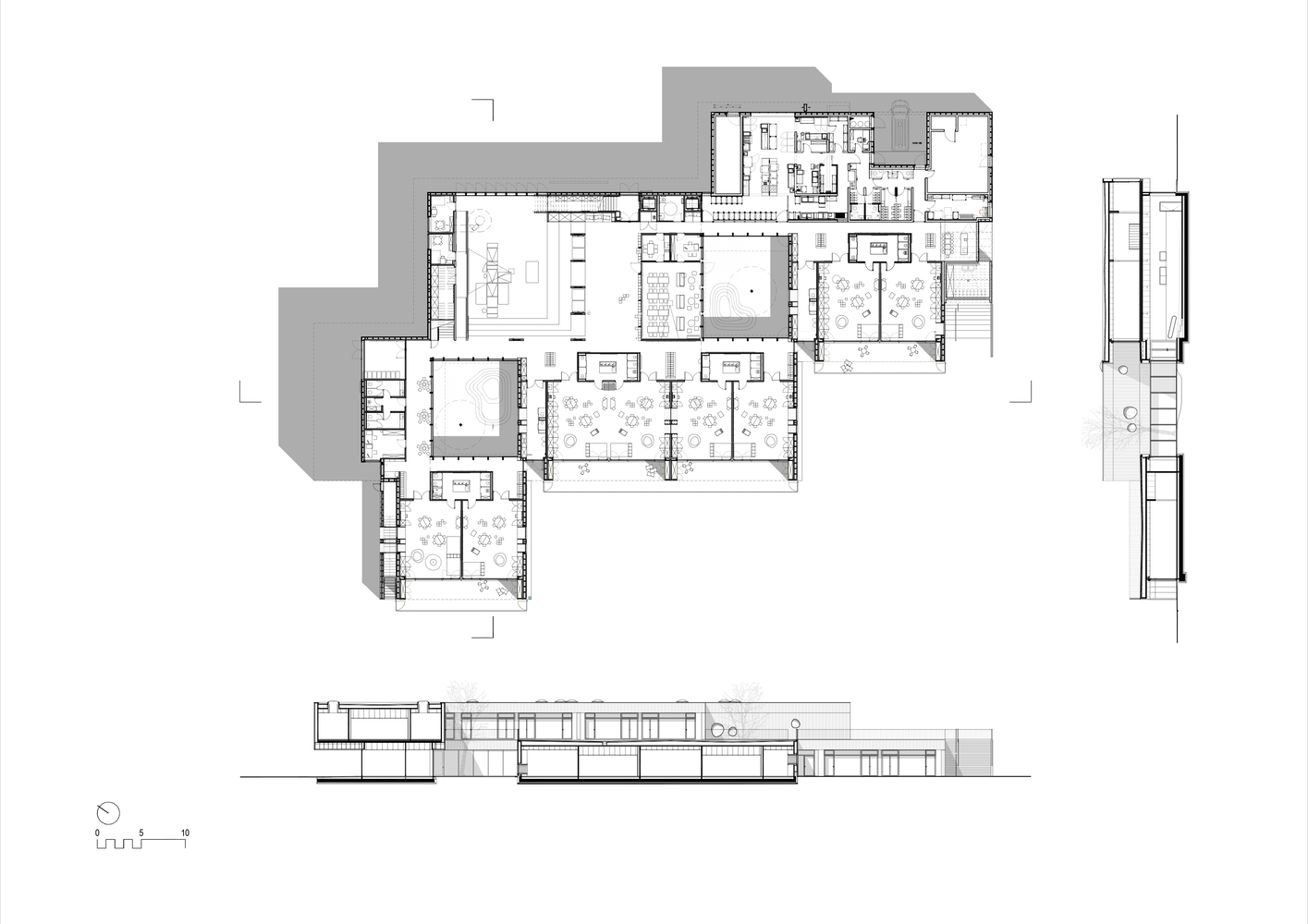
幼儿园建于科切夫耶在棕色地块上,通过浓缩先前分散在不适宜建筑中的项目,部分城镇得以再生。它提供了一个新的学习环境,通过创造各种角落强调儿童的选择自由,通过隔离空间的隐私权,通过观察学习的可能性,通过不同的空间体验发展空间敏感性,包括真诚地使用350名儿童及其看护人的有触觉表面的建筑材料。幼儿园的外壳靠近地块的城市北侧,创造了一个外观,并向南部操场开放,暴露了游戏室的温暖木材内部,创造了与其环境的对话。建筑本身围绕两个中庭——“水坑”和“小山”——组织单元,允许光线到达底层,增加空间体验,年幼的孩子住在底层,直接连接到外部操场,而较大的孩子的家庭房间住在一楼,直接通往屋顶操场。这样,建筑的占地面积最小化,同时为所有游戏室创造了足够的室外游戏区和直接通道。不规则形状的立面角落,使建筑变得柔和,让孩子们像演员一样出现在活生生的立面上——每个人都想在窗户上玩耍。
建筑通过使用者而存在,并成为孩子们、他们的父母、老师、厨师和清洁工日常生活的舞台。建筑的内部尽可能地展示其木质结构,给室内一种对比强烈的温暖。内部厚实的游戏室墙壁可以存放沙发床、玩具和创作品,形成有趣的软垫角落,让孩子们可以窥视外面的世界,观察他们的朋友早上到达或他们的祖父母下午来接他们。主楼梯由一个只有孩子可以使用的隧道加倍,试图击败他们的父母到达顶部,在那里一个滑梯消失在地板上等着他们。从一开始,市政当局就努力争取一所幼儿园,这将体现可持续发展的理想。该建筑几乎全部由木材和木质建筑材料构成。该结构主要是暴露在室内的交叉层压木材,用木质纤维隔热,并由木质通风立面保护,饰面为热处理云杉。该建筑达到了“Passiv Haus”标准,还利用了由木材生物质燃烧提供动力的区域供暖。
斯洛文尼亚Koč evje幼儿园外部实景图
斯洛文尼亚Koč evje幼儿园外部实景图
斯洛文尼亚Koč evje幼儿园外部实景图
斯洛文尼亚Koč evje幼儿园外部实景图
斯洛文尼亚Koč evje幼儿园外部实景图
斯洛文尼亚Koč evje幼儿园外部实景图
斯洛文尼亚Koč evje幼儿园外部实景图
斯洛文尼亚Koč evje幼儿园外部实景图
斯洛文尼亚Koč evje幼儿园内部实景图
斯洛文尼亚Koč evje幼儿园内部实景图
斯洛文尼亚Koč evje幼儿园内部实景图
斯洛文尼亚Koč evje幼儿园内部实景图
斯洛文尼亚Koč evje幼儿园内部实景图
斯洛文尼亚Koč evje幼儿园内部实景图
斯洛文尼亚Koč evje幼儿园平面图
斯洛文尼亚Koč evje幼儿园平面图
斯洛文尼亚Koč evje幼儿园平面图
客服
消息
收藏
下载
最近




















