查看完整案例

收藏

下载
空间上营造出内敛且含蓄的独特气韵,回归宁静的状态,一个更好的让人与人聚焦的空间。
文鼎天瑞“闽商精神”空间致力于传播和弘扬其代表性文化,提供一个高雅、有内涵的圈层交流场所,引领时代潮流的商业资源汇集的标杆属性。01.ORIENTALIMPRESSION 东方印象,东方美学新传递。东方印象的界定,不仅止乎于符号的表象,而是对于空间建造的气场的营造。有限制的自由构造的手法、围合、穿透,而又冲破、再糅合,凸现光影在构造中塑形。
P. 01
P. 02 静谧“场域”的酝酿是构造东方美学的核心,将东方的场地精神尽致地契合空间的气场,或静谧,或隐现......
P. 03
P. 04
P. 05 这一切都在传达一种似是而非的感知,同时又融合建筑语言符号,将当代东方美学的一种新传递,赋予了空间更多的属性。
P. 06
P. 07 02 ENTRANCE 入口 张弛有度 引人入胜 入口的转折关系,移步异景,运用了建筑的语言增进空间仪式感的同时又将空间进行延伸,让主体空间隐藏于空间内部。
P. 08
P. 09 远处的大厅品茗区让人产生更加强烈的求知愿望,/ 狭小的廊道让空间产生强烈的神秘色彩。
P. 10
P. 11
P. 12
P. 13
以小见大的空间逻辑,让空间的窥探感感觉强烈,一种不经意的设计逻辑在空间中不断的强调与重复,形成了一种隐晦的空间语境。
P. 14
P. 15
P. 16
P. 17
• 03
THE LOBBY
大 厅
悠然自得
气韵生动
会所空间大厅为最为常用的区域,在空间的设计上设计师最大程度地放大了大厅的位置,同时大厅全落地窗与户外空间进行链接,让外面的景观与室内相得益彰。
P. 18
P. 19
P. 20
P. 21
P. 22 通望二楼区域极具雕塑感及色彩鲜艳的楼梯,增加整体品茗区氛围的品茗感受与互动性。同时,在通道设置了功能柜,增加空间私密感的同时让整体的服务更具品质感,营造一种不经意的空间品味及气韵。
P. 22
P. 24
P. 25 • 04 ACTIVITY AREA 活动区 空间场域 在空间的设计上,我们模糊了关于茶空间东方印象的界定,弱化了符号的表现,而是更多表达着茶文化无国界的理念,意图创造更多融合及可能性,打造一个模糊边界性,让体验者更好地享受空间带来的趣味。
P. 26
P. 27
P. 28
在空间中追寻自然光的变化,以阵列的方式铺满,半遮半掩地将光和影映入。随着白天黑夜、季节的变幻,在这里充满了时间流转的浪漫,创造出各种令我们感动的画面。
P. 29
P. 30
P.31•05BUSINESSRECEPT AREA 冷静与解放空间整体营造冷静商务气息的同时,设计师希望让场地产生轻松愉悦的氛围,而设计师想冲突可以获得结果是最合适的方式。通过形体以及灯光制造出来不同的场域及环境的变换,解放空间的冷静。
P. 32
P. 33
P. 34 正是这种不确定感,空间无时无刻都在交融与分离,这是一种纠结的情绪。强调空间私密性的同时,让人在空间中游走时产生不同的场景与情绪,幽暗的光环境强调了人在空间的事件才是设计核心,一种新的享乐主义。
P. 35
P.36 • 06 PRIVATE ROOM 情亲与友情。包间设计上则化繁为简,拒绝浮华,给人视觉上的“静”与“净”。团聚于清幽高雅的包厢之中,品滚烫至味,将人间百味融于诗情画意之中。
P. 37
P. 38
P. 39
P. 40 朦胧糅合的灯光洒落,烘托恰到好处的气氛,用餐的仪式感与体验感被强化。恰到好处的空间尺度,未经打扰的舒适感,让诗意在交谈中流淌,留下内心隽永的回忆。
P. 41
P. 42
• 07
ANALYSIS
DIAGRAM
分析图
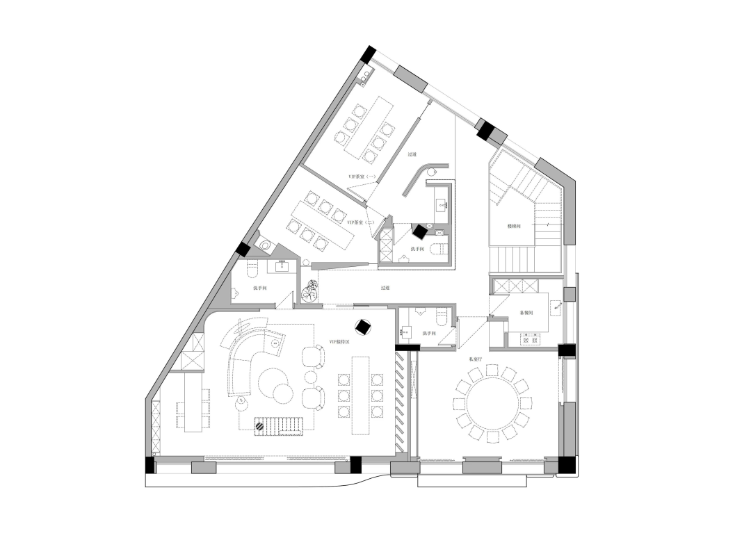
1F 平面图 P. 43
2F 平面图 P. 44 / INFO / - 项目名称:文鼎天瑞私人会所 - 设计机构:HHD 恒合立创设计机构 潘自立 林祥棋 / - 设计团队:张弓 杨洋 陈榕 陈明强 王俊杰 潘宏伟 软装陈设:极所艺术 项目施工:福建尚成装饰 / 主要材料:艺术涂料 天然木皮 金属制品 / - 项目面积:600 ㎡ / - 项目地址:福建 福州 / - 项目摄影:徐义稳 / DESIGNER
潘自立恒合立创创始人 - 总设计师
林祥棋
恒合立创联合创始人 - 设计总监
HHD-恒合立创是一个正在成长和壮大中的团队,有着前瞻性设计思维的设计事务所。恒合立创,一个融合“恒心、合作、立基、创新”四大核心价值的品牌。恒合立创,是恒心与合力的完美结合,我们深谙“持之以恒,执行合一”之道。
我们坚守初心,追求卓越,用心打造每一个项目,确保完美呈现。我们不仅是设计者,更是理念的践行者,致力于为客户创造真正的价值。
在建筑设计、室内设计、景观设计、产品设计等领域开拓深耕,坚持以探究性的态度来实践空间创作过程中人与环境、人与人的交互关系,深入挖掘空间的真实需求。其作品囊括诸多国内外权威赛事殊荣。
MAGNUM OPUS
HHD 恒合立创 • 和光同尘
客服
消息
收藏
下载
最近




















































