查看完整案例

收藏

下载
项目名称:西安高新第一中学(高中部)改扩建
位置:西安
设计公司:中国建筑西北设计研究院
“我们希望创造一所面向未来、自然生长的立体化校园,学生们不再受到城市密集逼仄空间的制约。身处校园之中,就如在城市中漂浮的绿岛雨林中穿梭,书声琅琅,拾级而上,通过立体的交通廊道,到达空中平台,天空田野,雨水花园,在开放舒朗的空间中交流学习,成为记忆中最闪亮的青春时光。”在我国城市发展逐渐进入到精细化的新时期下,建筑的设计、建设、使用三个环节的融会贯通是提升建筑品质的关键源头。如何在一线实践工作中去落实相关要求,也成为了设计团队所面临的主要挑战。西安高新第一中学(简称西安高新一中)创办于1995年,2009年学校被批准为陕西省首批示范高中。建校27年以来,数千名学子由此踏入了世界名校的大门,创造了一个又一个的辉煌,是西安高新区一张靓丽的“名片”,更是高新区持续发展的核心竞争力。本次项目为西安高新一中高中部校区,位于西安高新区腹地,用地面积约45.6亩,东临唐延路,南临科技三路。
现状由三栋教学楼,一栋宿舍楼组成。随着城市核心区域的快速发展,以及国家新高考改革背景下对办学条件的更高需求,高新一中高中部面临着校内各类教学空间不足,校外交通拥堵等多重压力,原有校园亟需进行更新改造。本项目伊始于2021年8月,历经两年的设计建设期,于2023年8月底正式交付。项目名称——西安高新第一中学(高中部)改扩建暨社会共享停车场建设项目充分体现了前期策划中不同维度的定案。项目总建筑面积78549.31㎡,地上总建筑面积49886.68㎡(其中计容面积48831.17㎡),地下总建筑面积28662.63㎡,容积率1.61。项目原建筑保留原主教学楼(博学楼),其余辅助建筑予以更新重建。新建建筑包含综合教学楼(含宿舍)、架空操场(含架空下体育馆和报告厅)、下沉庭院及庭院周边教学辅助空间、地下2层停车区和室外交通连廊。
设计团队从城市、校园、造型、功能、成本的建设全程中赋予相关理念和管控措施,保证了项目的完整落地。为了最大程度利用原有建筑、保留校园场所记忆,我们在改扩建设计中保留了校园西北角原有教学楼博学楼,并将延续其功能继续使用。在剩余的有限用地内,将原200米操场扩大至300米标准大小。综合考虑周边住宅日照及规范退距等因素,将新建学校建筑区域形成U型布局设置在用地南侧,300米架空操场布置于用地东侧。整体规划呈现出“西主南辅、西静东动、西低中高”的特点,校园西侧主出入口、综合教学楼U型区和博学楼东侧三处庭院空间。三院直接互相贯通,张弛有度,较原建筑割裂的校园空间更适合于小地块中的将室外空间形成最大化感受的效果。项目流线组织结合规划布局和策划定位,基本分为校园内部流线和校社共享流线。校园内部流线主要体现了立体化校园的特点。
保留教学楼、综合教学楼和架空运动场三处主建筑体结合西侧主入口之间利用室外连廊进行连接,形成类十字型的立体交通空间。校社共享流线主要由两处做为起始点。一处是架空操场的东南角部,由楼电梯组合在校园围墙外形成社会群众进入校园共享区域的入口,可直接进入地下停车区、室内体育馆和300M操场区域,主要解决校社共享中社区运动配套和停车两个问题;另一处是下沉庭院西侧,此区域与地下停车场直接联通,组织开车接送学生的家长集中等候。项目建筑风貌充分考虑高新一中的“高新名片”效应和高新区发展定位两大要素。设计以简洁而有力的语言来诠释高新一中的文化特质,学校色彩以灰白色为主色调,辅以校标中的浅黄色于立面和浅蓝色于运动场。建筑形体采用纯粹的几何体块,新建综合教学楼从唐延路开始拾级而上,通过书山绿岛的理念既体现了对城市界面的尊重,同时塑造高新一中多元、开放、创新的教育理念。
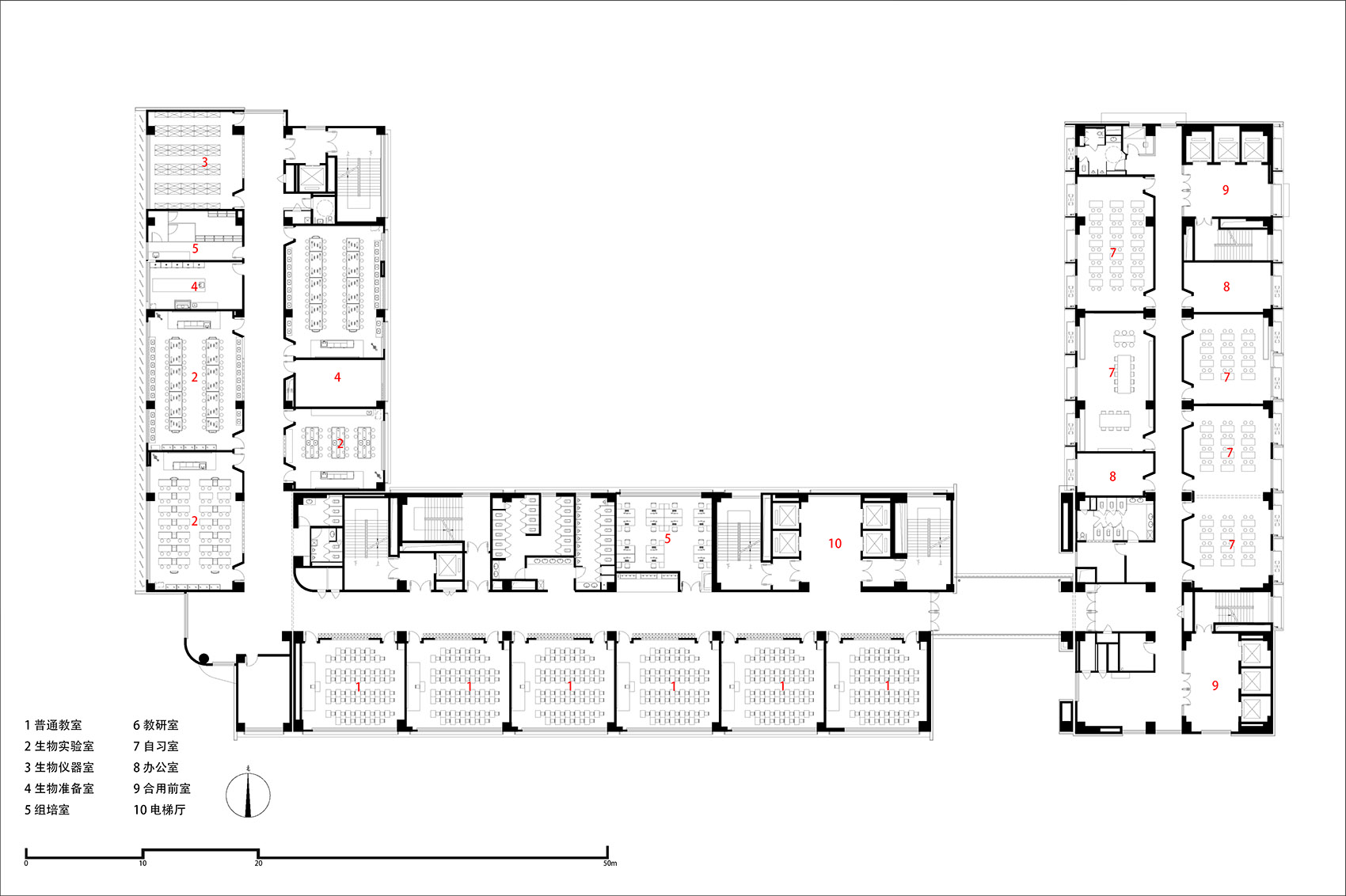
建筑灰白色主墙面主要采用通层通高的划分模式,为保证效果,造型的外轮廓区域采用单层通高的蜂窝铝板,综合教学楼南北主墙面窗洞口上下沿选用铝型材直线拉通;同时因综合楼实验单元延展面延城市主干道(唐延路)且向西,故从减噪和遮阳的角度在本次项目的唐延路界面采用了多层通高的穿孔金属百叶。建成后一方面达到了外立面造型简约现代又不失创新的目标,另一方面通过现场实测结果,减噪和遮阳也达到了很好的效果。建成的高新一中高中部教学规模为36班,校园内部管控在规划建设的基础上从功能分布和管理流线组织上均进行了更为紧密的贴合利用,并结合教育理念形成了一系列同类型建筑中的差异化空间。校园内部功能分为主教学区域、社团活动区域、行政综合区域、生活宿舍区域、生活配套区域、运动演艺区域和设施设备区域七个版块。
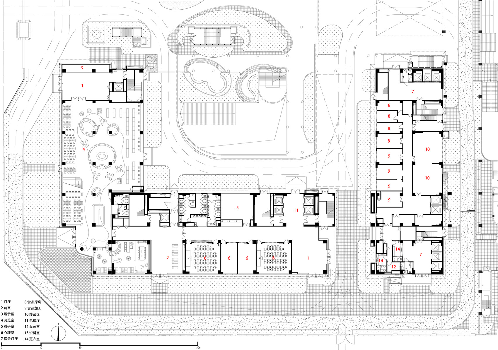
主教学区域分布在保留教学楼、综合教学楼实验单元和综合单元,共含标准教室56间、实验教室15间,可充分满足新高考要求下的走班制教学需求。社团活动区域布局在综合教学楼综合单元7-10层,以舞蹈、音乐、陶艺、美术等社团使用为主。行政综合区域布局在保留教学楼1层和综合教学楼综合单元6层,一方面可直接接待外来人员,另一方面也可纵览校园全景。生活宿舍区域分布在综合教学楼宿舍单元4-13层,其中4-12层为学生宿舍,每层均设置宿管用房,13层为临时教师宿舍,以供值班老师和外校培训老师使用。生活配套区域包含餐厅、厨房、便利店等。其中餐厅分布在综合教学楼宿舍单元2层和地下一层下沉庭院东侧,可满足2000人同时就餐;厨房位于综合教学楼宿舍单元1层,临近南侧次入口,方便货物装卸,同时与餐厅均通过专用餐梯联通。
运动演艺区域以架空操场为空间主体,包含300m室外运动场一处、架空区域室外篮球场3处、室内体育馆一座(内含篮球、乒乓球、健身等多项功能)、700人报告厅一座。设施设备区域主要集中在地下一层东南和东北区域,结合车库坡道设置,既方便管理又相对远离教学区域。充分有效的利用好资金,以实现“不多花一分钱,不乱花一分钱”的原则,是项目参与各方共同的目标。设计、建设、施工三方在本项目中采用了“动态实时模拟成本,设计统筹管控标准,施工即时反馈质量”的措施,同步结合高新管委会相关部门具有前瞻性的政策支撑、高新一中校方为时创新的教育理念。在项目设计伊始即对建设资金从场地整理、主体、外立面、室内、景观、土方开挖等分版块估算和复核,为实际施工奠定了坚实的基础。在时间紧迫的建设工程中,多方持续的进行沟通,将建设成本进一步细化和修正。
以形成动态成本的完整版本。多方对建设成本资金进行了多达20余次的修正和验算。最终在项目交付之际,在参与各方的高效配合之下,完成了动态成本目标原则。项目最终呈现质量效果获得了政府、校方、验收专家、学生及学生家长、社会群众等多方的高度认可。本项目的全程设计管控也为设计团队在建筑师负责制的试运行的趋势下,积累了丰富且有效的实际经验。西安高新第一中学(高中部)改扩建暨社会共享停车场建设项目现已交付使用。本项目是对高密度城区内学校建设的一次深入探索。设计团队希望不仅通过一次建设行为,而是通过持续的运维跟踪将“立体化”和“校社融合”的理念贯彻始终。因此设计团队在以完成常规本职工作的前提下,继续积极跟进项目的实际运用。设计团队在后评估理论的指导下,制定了“短期配合提升修正,中期优化建筑使用,远期数据完整收集”的后评估跟进计划。一方面总结设计与实施的经验,另一方面协助高效的使建筑对城市产生更为深远的影响和意义。
西安高新第一中学(高中部)改扩建外部实景图
西安高新第一中学(高中部)改扩建外部实景图
西安高新第一中学(高中部)改扩建外部实景图
西安高新第一中学(高中部)改扩建外部实景图
西安高新第一中学(高中部)改扩建外部实景图
西安高新第一中学(高中部)改扩建外部实景图
西安高新第一中学(高中部)改扩建外部实景图
西安高新第一中学(高中部)改扩建外部实景图
西安高新第一中学(高中部)改扩建外部实景图
西安高新第一中学(高中部)改扩建外部实景图
西安高新第一中学(高中部)改扩建外部实景图
西安高新第一中学(高中部)改扩建外部实景图
西安高新第一中学(高中部)改扩建外部实景图
西安高新第一中学(高中部)改扩建外部实景图
西安高新第一中学(高中部)改扩建外部实景图
西安高新第一中学(高中部)改扩建外部实景图
西安高新第一中学(高中部)改扩建外部实景图
西安高新第一中学(高中部)改扩建外部实景图
西安高新第一中学(高中部)改扩建外部实景图
西安高新第一中学(高中部)改扩建外部实景图
西安高新第一中学(高中部)改扩建外部实景图
西安高新第一中学(高中部)改扩建外部实景图
西安高新第一中学(高中部)改扩建外部实景图
西安高新第一中学(高中部)改扩建外部实景图
西安高新第一中学(高中部)改扩建外部实景图
西安高新第一中学(高中部)改扩建外部实景图
西安高新第一中学(高中部)改扩建外部实景图
西安高新第一中学(高中部)改扩建外部实景图
西安高新第一中学(高中部)改扩建外部实景图
西安高新第一中学(高中部)改扩建外部实景图
西安高新第一中学(高中部)改扩建外部实景图
西安高新第一中学(高中部)改扩建外部实景图
西安高新第一中学(高中部)改扩建外部实景图
西安高新第一中学(高中部)改扩建外部实景图
西安高新第一中学(高中部)改扩建外部实景图
西安高新第一中学(高中部)改扩建外部实景图
西安高新第一中学(高中部)改扩建外部实景图
西安高新第一中学(高中部)改扩建外部实景图
西安高新第一中学(高中部)改扩建外部实景图
西安高新第一中学(高中部)改扩建外部实景图
西安高新第一中学(高中部)改扩建外部实景图
西安高新第一中学(高中部)改扩建内部实景图
西安高新第一中学(高中部)改扩建内部实景图
西安高新第一中学(高中部)改扩建内部实景图
西安高新第一中学(高中部)改扩建内部实景图
西安高新第一中学(高中部)改扩建内部实景图
西安高新第一中学(高中部)改扩建内部实景图
西安高新第一中学(高中部)改扩建内部实景图
西安高新第一中学(高中部)改扩建内部实景图
西安高新第一中学(高中部)改扩建内部实景图
西安高新第一中学(高中部)改扩建内部实景图
西安高新第一中学(高中部)改扩建内部实景图
西安高新第一中学(高中部)改扩建内部实景图
西安高新第一中学(高中部)改扩建内部实景图
西安高新第一中学(高中部)改扩建内部实景图
西安高新第一中学(高中部)改扩建内部实景图
西安高新第一中学(高中部)改扩建内部实景图
西安高新第一中学(高中部)改扩建内部实景图
西安高新第一中学(高中部)改扩建内部实景图
西安高新第一中学(高中部)改扩建内部实景图
西安高新第一中学(高中部)改扩建内部实景图
西安高新第一中学(高中部)改扩建内部实景图
西安高新第一中学(高中部)改扩建内部实景图
西安高新第一中学(高中部)改扩建内部实景图
西安高新第一中学(高中部)改扩建内部实景图
西安高新第一中学(高中部)改扩建内部实景图
西安高新第一中学(高中部)改扩建平面图
西安高新第一中学(高中部)改扩建平面图
西安高新第一中学(高中部)改扩建平面图
西安高新第一中学(高中部)改扩建平面图
西安高新第一中学(高中部)改扩建平面图
西安高新第一中学(高中部)改扩建平面图
西安高新第一中学(高中部)改扩建剖面图
西安高新第一中学(高中部)改扩建立面图
西安高新第一中学(高中部)改扩建立面图
客服
消息
收藏
下载
最近














































































