查看完整案例

收藏

下载
项目名称:嘉兴陌桑幼儿园新建工程
位置:嘉兴
设计公司:上海交通大学城镇空间文化与科学研究中心
本项目位于浙江省海盐县中心城区,南侧为桑蚕文化代表的陌桑公园。项目包括两栋教学楼、门厅、食堂、行政楼以及地下车库等,设计内容包括建筑与室内环境一体化设计。本次方案设计构思主题为将“桑蚕文化”融入“自然主义教育”的叙事场景中,致力于塑造一个自然、生态的幼儿园环境。总平布局是基于场地肌理演化而来,如同桑叶的肌理,从而形成12个形态各异的院落空间。通过这些不同类型、标高的院落组织通风采光,达到“以小见大”的效果,充分利用有限场地,解决项目用地紧张的挑战;同时借助坡道、楼梯、走廊等路径,将这些场景与其物像、界面、活动等编排为一系列幼儿日常生活的时空情节。
通过4种不同的拱顶以及相互间不同的组合方式形成主要建筑造型,适应幼儿多样化功能需求,满足不同年龄段儿童的心理需求;利用“阡陌”概念来对平面与立面进行组构,形成各种尺度的界面与布局、适合幼儿认知的特点。设计技术创新方面,其一是运用了基于空间句法(SPACE SYNTAX)的线索甄选技术,优化平面布局,利用楼梯、坡道、廊道等线索串联不同功能场景;其二是运用了基于视域分析(ISOVIST)的界面设计技术,去除主庭院与室外活动主空间的阻隔,增强空间连续性与开阔视野。明确视线焦点,确定需要营造和处理的关键界面;其三是运用了基于符号隐喻(SEMIOTIC INDEX)的立面形式设计技术,在蚕茧意象主题下,大中小班、不同功能的建筑单体在色彩材质立面形式等方面有所区分,营造出多样的跳跃的建筑立面。
嘉兴陌桑幼儿园新建工程外部实景图
嘉兴陌桑幼儿园新建工程外部实景图
嘉兴陌桑幼儿园新建工程外部实景图
嘉兴陌桑幼儿园新建工程外部实景图
嘉兴陌桑幼儿园新建工程外部实景图
嘉兴陌桑幼儿园新建工程外部实景图
嘉兴陌桑幼儿园新建工程外部实景图
嘉兴陌桑幼儿园新建工程外部实景图
嘉兴陌桑幼儿园新建工程外部实景图
嘉兴陌桑幼儿园新建工程外部实景图
嘉兴陌桑幼儿园新建工程外部实景图
嘉兴陌桑幼儿园新建工程外部实景图
嘉兴陌桑幼儿园新建工程内部实景图
嘉兴陌桑幼儿园新建工程内部实景图
嘉兴陌桑幼儿园新建工程内部实景图
嘉兴陌桑幼儿园新建工程内部实景图
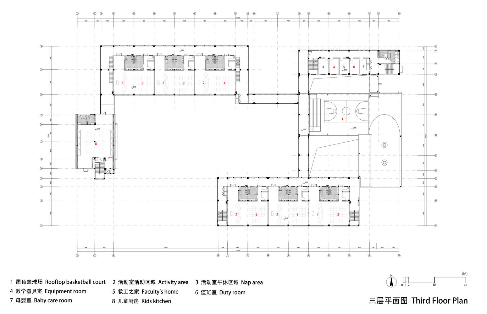
嘉兴陌桑幼儿园新建工程平面图
嘉兴陌桑幼儿园新建工程平面图
嘉兴陌桑幼儿园新建工程平面图
嘉兴陌桑幼儿园新建工程平面图
嘉兴陌桑幼儿园新建工程平面图
嘉兴陌桑幼儿园新建工程平面图
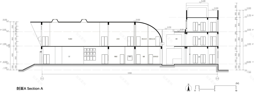
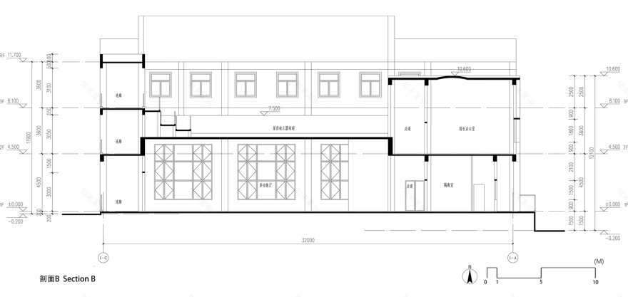
嘉兴陌桑幼儿园新建工程剖面图
嘉兴陌桑幼儿园新建工程剖面图
嘉兴陌桑幼儿园新建工程立面图
嘉兴陌桑幼儿园新建工程立面图
客服
消息
收藏
下载
最近





























