查看完整案例

收藏

下载
项目名称:泰国法政大学学习科学与教育学院
位置:泰国
建筑师: Arsomslip社区和环境建筑师
建筑是21世纪学习教育的宣言——法政大学是一所学术机构,在其八十年的历史中,为泰国的社会经济和政治体制改革做出了贡献。该大学已同意建立学习科学和教育学院,以支持泰国的教育制度改革。该学院旨在支持和教育教师,他们将成为学术领域变革的领导者和推动者。除了教学改革,目标是建立一个社会发展、研究和创新的社区,以实现长期可持续发展。因此,该建筑必须满足课程要求,并成为展示、支持和改进教学和学习方法的空间,同时推动大学和社会的教育改革。这座4层楼的建筑位于大学的主学习中心附近,因此是开放的,作为大学所有学生的聚会和学习空间。开放式的设计使得建筑可以从各个方向进入,有覆盖的走道连接着轴线。为了支持和培养新一代教师和学者相信社会发展和持续学习,项目的总体设计创建了一个学习社区。
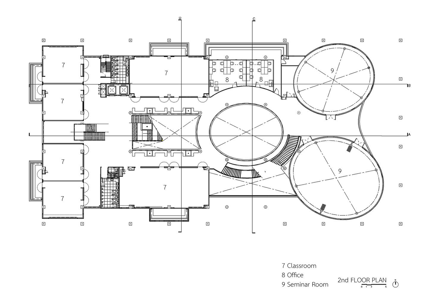
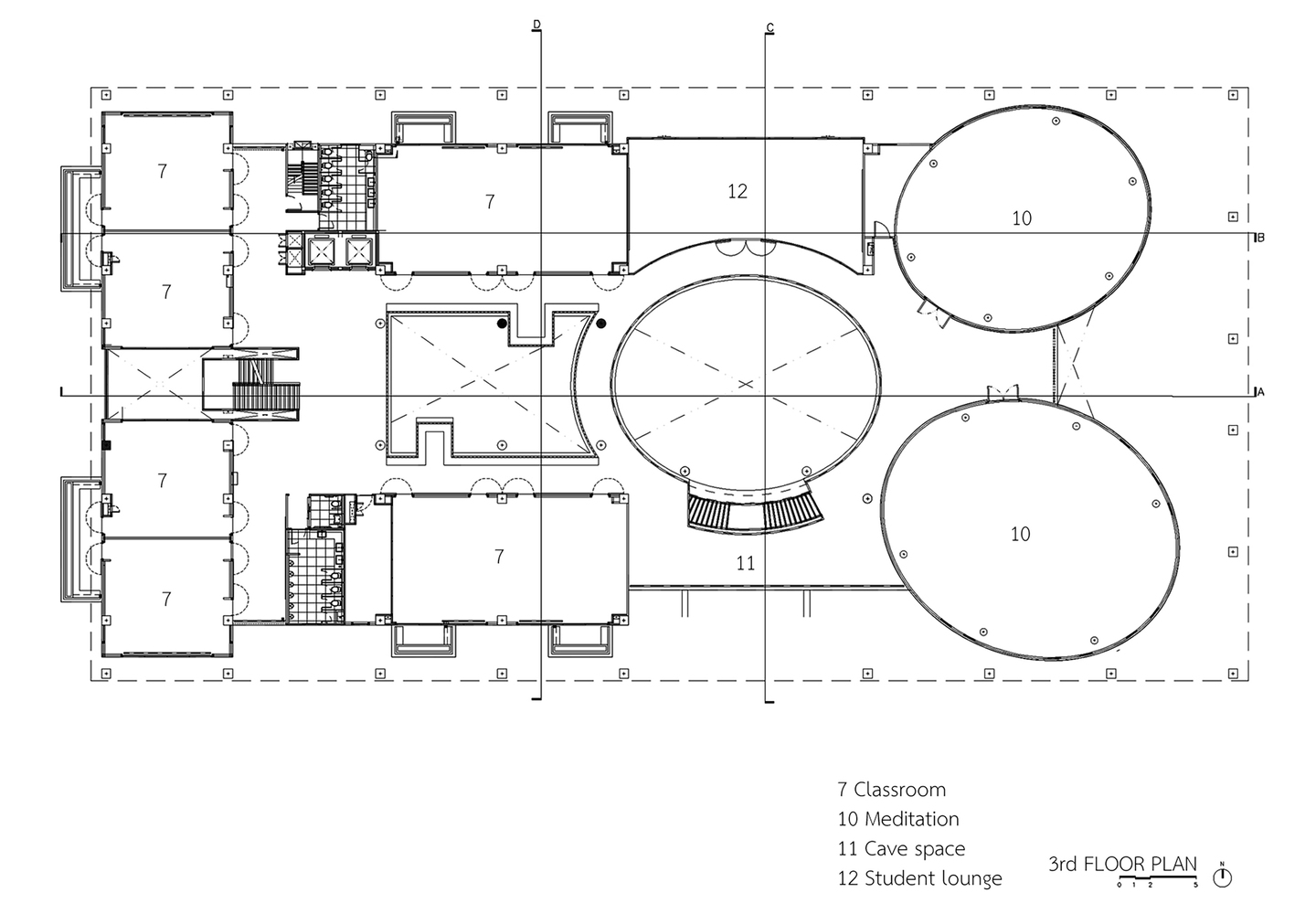
教育空间通过创建各种风格的互动和学习交流来促进21世纪的学习,同时鼓励社区意识。随着开放计划而来的是学习的开放、所有学生的开放和机会的开放。教员充当了法政学生的可靠家园,融合了学生、教授、访问者和他们的环境之间的关系。室内空间旨在促进人们之间的互动,并通过简单的形式,如见面和相互问候,催化学习机会。因此,建筑的每个区域都适合坐;椭圆形庭院的主要木制楼梯(“学习台阶”)的设计比例允许人们随意坐在集成的树下。所用材料简单;结构材料由混凝土制成,但任何允许人类接触的表面都由木材制成,以强调人类的愈合效果。从木质坐梯到所有的扶手。建筑的底层(传统上称为“tai-toon”)是一个大的开放空间,允许充分的通风通过椭圆形的庭院。一楼是用于研讨会和合作咖啡馆的多功能厅。2楼和3楼是演讲室,教师休息室和院长办公室在顶楼。
该建筑还提供不同的学习环境,从用于反思、自学或小组活动的私人空间(“洞穴空间”)到通过互动进行学习的社交空间(“水坑”)以及通过讨论和对话进行学习的公共空间(“篝火”)。整体空间足够灵活,可以容纳不同类型的学习活动。它强调祈祷室是组织内部批判性学习(“深度学习”)的一个例子,可以灵活地调整为组织各种活动,从研讨会的正式桌子到坐在地板垫子上进行小组活动。鼓励学生和教师成为一个有强烈良知的开发者,开发一个不脱离社会的学习过程。该设计还考虑了环境质量、能源节约以及在土地使用、空间、交通和合适的公共设施方面与总体规划的统一。该建筑可以成为学习型社会发展的良好典范,并与校园优美的环境和氛围相联系。
泰国法政大学学习科学与教育学院外部实景图
泰国法政大学学习科学与教育学院外部实景图
泰国法政大学学习科学与教育学院外部实景图
泰国法政大学学习科学与教育学院外部实景图
泰国法政大学学习科学与教育学院外部实景图
泰国法政大学学习科学与教育学院外部实景图
泰国法政大学学习科学与教育学院外部实景图
泰国法政大学学习科学与教育学院外部实景图
泰国法政大学学习科学与教育学院内部实景
泰国法政大学学习科学与教育学院内部实景图
泰国法政大学学习科学与教育学院内部实景图
泰国法政大学学习科学与教育学院内部实景图
泰国法政大学学习科学与教育学院内部实景图
泰国法政大学学习科学与教育学院内部实景图
泰国法政大学学习科学与教育学院内部实景图
泰国法政大学学习科学与教育学院内部实景图
泰国法政大学学习科学与教育学院平面图
泰国法政大学学习科学与教育学院平面图
泰国法政大学学习科学与教育学院平面图
泰国法政大学学习科学与教育学院平面图
泰国法政大学学习科学与教育学院平面图
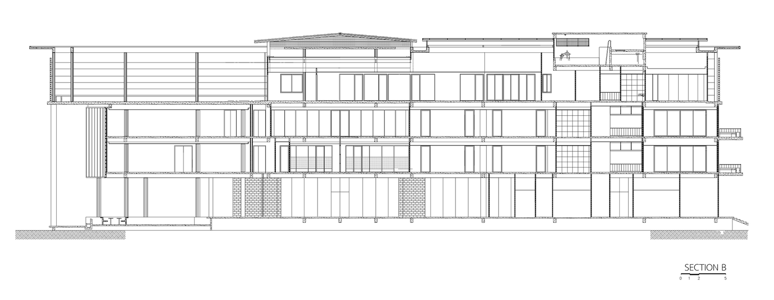
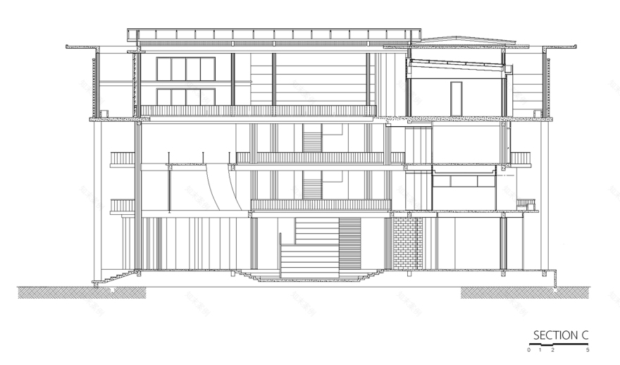
泰国法政大学学习科学与教育学院剖面图
泰国法政大学学习科学与教育学院剖面图
泰国法政大学学习科学与教育学院剖面图
泰国法政大学学习科学与教育学院剖面图
泰国法政大学学习科学与教育学院立面图
泰国法政大学学习科学与教育学院立面图
泰国法政大学学习科学与教育学院立面图
泰国法政大学学习科学与教育学院立面图
客服
消息
收藏
下载
最近
































