查看完整案例

收藏

下载
项目名称:日本Kashimada托儿所
位置:日本
建筑师: 地形建筑师
这个托儿所项目位于Kashimada,这是东京郊区的一个地区,以吸引许多有孩子的家庭而闻名,毗邻一个被住宅楼包围的工业区。该场地位于一条繁忙的道路和一条被当地人广泛使用的绿色步道之间。它周围有不同的公共设施,如消防局,水务局和住宅区。这座两层的木质建筑建在一个以前的配水设施位置,避开了调压井的圆形地基。从邻近的以大落叶树和长凳为特色的绿色通道,人们可以体验到儿童在操场上玩耍的景象,在露台上进行的活动,以及父母和儿童在接送时间的互动,从托儿所,人们可以观察到老年人散步和其他托儿所的儿童散步。它旨在成为一个托儿所,在与当地社区共同发展的同时,继承过去的历史。
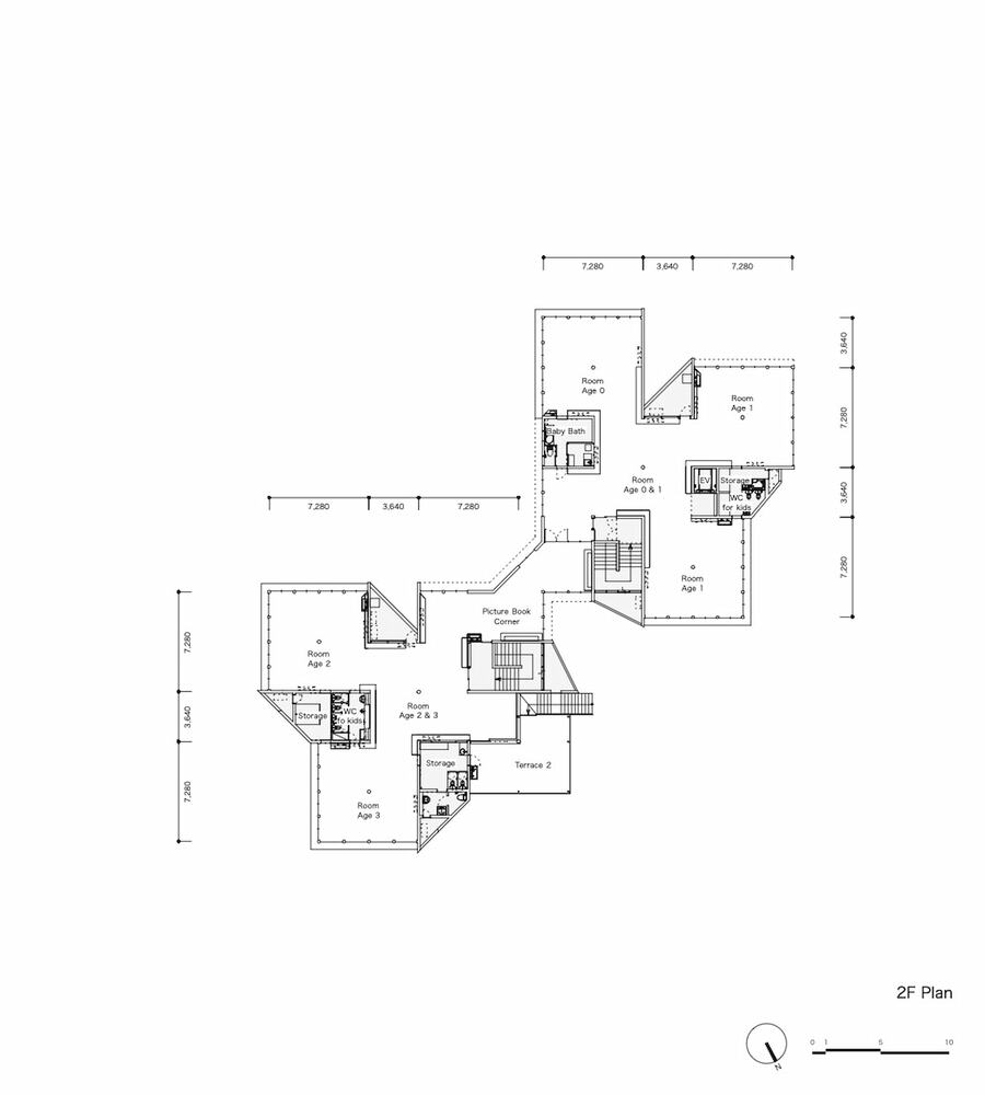
通过我们在标准材料尺寸有限的乌干达进行的几个项目的经验,我们认识到,我们从乌干达标准中得出的木结构的具体尺寸(3米、4.5米和5米)也可以证明在苗圃建筑中是有效的。在与幼儿相处了一段时间后,我们发现8个榻榻米(八幡马)与他们的身体尺寸和靠近地板的动作非常匹配。每个保育室由四个这样的房间组成八代马斯围绕中心杆柱,移动了3640毫米(长度由两个榻榻米创造;福塔马)相互脱离,形成风车计划。这一系列的福塔马斯创造一个温和的空间感觉像是一个重要的维度,与儿童保育领域的感官体验产生共鸣。此外,四个保育室共用一个称为“垃圾箱”的房间。这个空间继承了搬迁前公立幼儿园存储教材的精髓。这是一个小尺寸积累的空间,如从储物区内外轻松取出文具和图画书的机制,以及儿童可见但伸手不可及的高度。
此外,其他服务,如厕所,也包括在这个空间,它也将作为一个通道连接两个育儿室。整个建筑由两栋建筑组成,中间连接着一个类似风车的单坡屋顶,一楼有一个入口,一楼有一个阅读图画书的空间。这个结构由两个同样大小的建筑组成,由一个狭窄的部分连接起来。每个建筑在结构上是独立的,应用相同的结构机制。通过在“垃圾箱”周围战略性地放置承重墙,垃圾箱作为一个存储空间或核心服务空间,创造了一个可以体验室外和室内之间以及花园、通道和育儿室之间联系的空间。框架的存在不是用不可移动的墙壁来限制孩子的活动,而是用一种温和的方式来暗示活动和地点,使用诸如原木和横梁这样的结构元素。
日本Kashimada托儿所外部实景图
日本Kashimada托儿所外部实景图
日本Kashimada托儿所外部实景图
日本Kashimada托儿所外部实景图
日本Kashimada托儿所外部实景图
日本Kashimada托儿所外部实景图
日本Kashimada托儿所外部实景图
日本Kashimada托儿所内部实景图
日本Kashimada托儿所内部实景图
日本Kashimada托儿所内部实景图
日本Kashimada托儿所内部实景图
日本Kashimada托儿所内部实景图
日本Kashimada托儿所内部实景图
日本Kashimada托儿所平面图
日本Kashimada托儿所平面图
日本Kashimada托儿所平面图
客服
消息
收藏
下载
最近



















